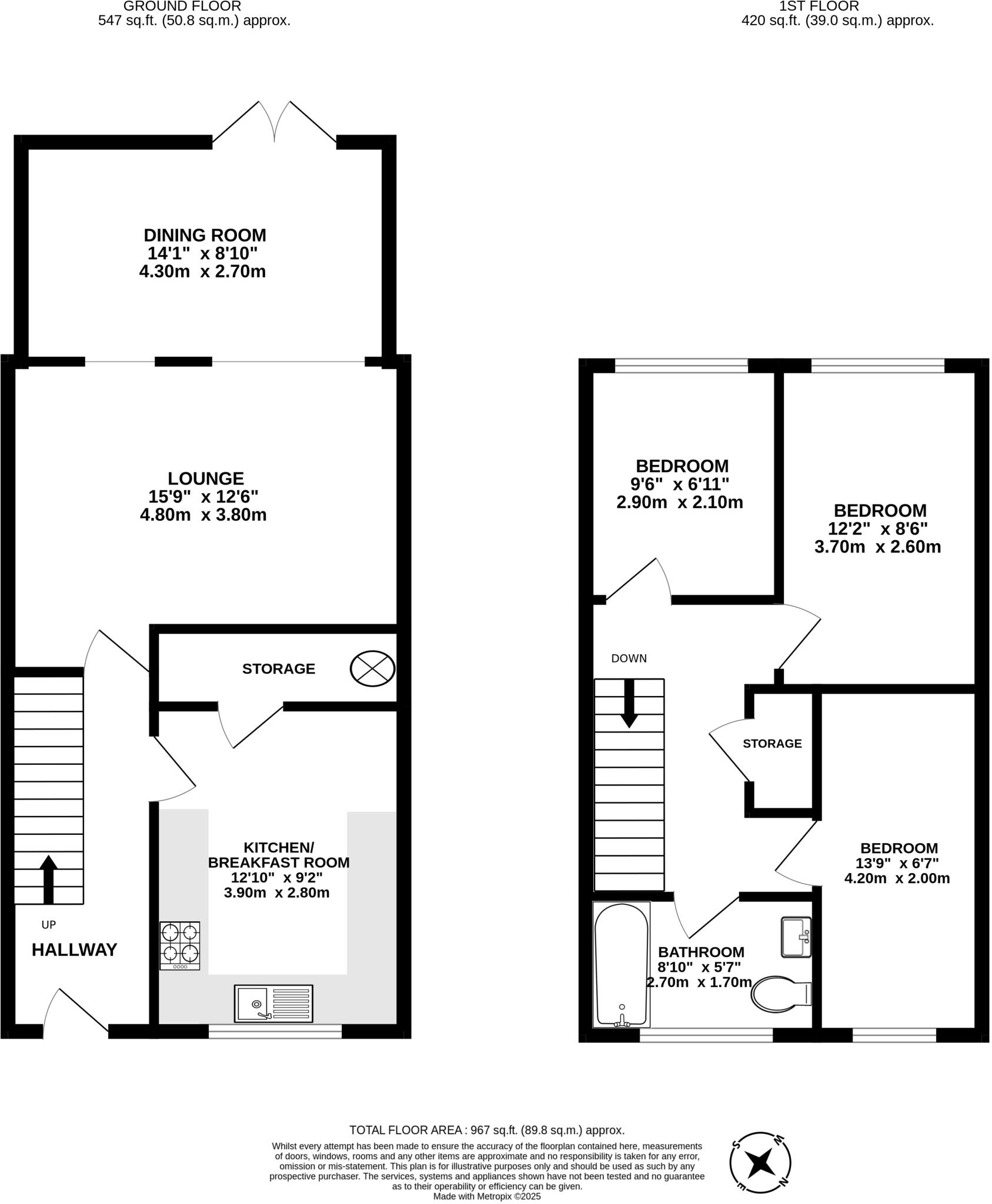
**Standout Features:**
- Three bedrooms on the first floor
- Spacious lounge with a seamless flow to the dining area
- Separate re-fitted kitchen and family bathroom with modern fixtures
- Total internal area of approximately 967 sq ft
- Driveway for off-street parking
- Located just 0.3 miles from Markyate village center
- Excellent mobile signal and fast broadband speeds
- Low crime rate in a very affluent area
**Summary:**
Discover comfort and convenience in this charming three-bedroom end-terrace home in a desirable residential area, just a short stroll from Markyate village center. Spanning approximately 967 sq ft, this property features an inviting lounge that effortlessly connects to a light-filled dining area, making it perfect for family gatherings or entertaining friends. The modern re-fitted kitchen and family bathroom elevate the home's appeal, ensuring you enjoy contemporary living.
With a private driveway offering off-road parking and accessible outdoor space that invites gardening or relaxation, this home is ideal for families or first-time buyers seeking space and comfort without the upkeep of a larger property. While the property's exterior is well-maintained, it offers plenty of potential for personal touches or future renovations, allowing you to create your dream home. This opportunity won't last long in such a sought-after, low-crime community, so seize the chance to make this delightful property yours!
3 bedroom terraced house for sale in Sebright Road, Markyate, St. Albans, Hertfordshire, AL3 — £400,000 • 3 bed • 1 bath • 1007 ft²
3 bedroom end of terrace house for sale in Ver Brook Avenue, Markyate, St. Albans, Hertfordshire, AL3 — £475,000 • 3 bed • 2 bath • 1305 ft²
3 bedroom end of terrace house for sale in High Street, Markyate, St. Albans, Hertfordshire, AL3 — £500,000 • 3 bed • 1 bath • 1939 ft²
4 bedroom semi-detached house for sale in Corner Wood, Markyate, St. Albans, Hertfordshire, AL3 — £575,000 • 4 bed • 2 bath • 1368 ft²
4 bedroom end of terrace house for sale in Pickford Road, Markyate, Hertfordshire, AL3 — £595,000 • 4 bed • 2 bath • 1436 ft²
4 bedroom end of terrace house for sale in Pickford Road, Markyate, St. Albans, AL3 — £600,000 • 4 bed • 2 bath • 1512 ft²






















































