Move-in ready two-bedroom home or rental opportunity near town amenities.
- Newly renovated kitchen, new carpets and fresh neutral decoration
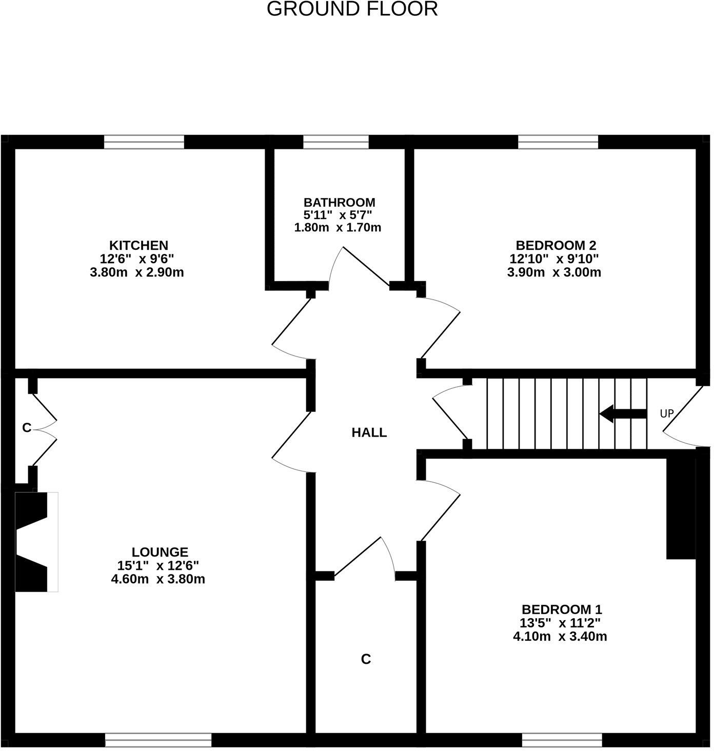
- Two large double bedrooms, 775 sq ft total space
- Private rear garden with patio and communal drying area
- Off-street parking and excellent mobile, fast broadband
- Gas central heating and double glazing throughout
- Living room shows dated 1950s features; may need modernising
- Ex-council building; tenure currently unspecified
- Located in a very deprived area with constrained renter profile
A freshly refreshed two-bedroom upper flat, ready to move into and well suited to first-time buyers or buy-to-let investors. The property has a newly fitted kitchen with integrated appliances, new carpets and neutral decoration throughout, so day-one occupation is straightforward.
Accommodation includes a generous front lounge, two large double bedrooms and a three-piece bathroom. Outside there is a private rear garden with patio and lawn, a communal drying area and off-street parking. Practical features include gas central heating, double glazing and fast broadband/mobile signal.
The building is ex-local authority and sits in a neighbourhood with easy walking access to shops, public transport and local amenities. Prospective buyers should note the wider area is described as very deprived with a high proportion of constrained renters, and the flat’s tenure is not specified. The living room retains dated 1950s features and may appeal to those who prefer original character or who want to modernise further.
2 bedroom apartment for sale in Church Court, Alloa, FK10 — £100,000 • 2 bed • 1 bath
2 bedroom flat for sale in Ashley Terrace, Alloa, FK10 — £94,995 • 2 bed • 1 bath • 578 ft²
2 bedroom apartment for sale in Old Brewery Lane, Alloa, FK10 — £120,000 • 2 bed • 2 bath • 696 ft²
3 bedroom flat for sale in Park Place, Alloa, FK10 — £165,000 • 3 bed • 1 bath • 760 ft²
2 bedroom flat for sale in Carmuirs Avenue, Falkirk, FK1 — £84,995 • 2 bed • 1 bath • 597 ft²
2 bedroom flat for sale in 107B Greenfield Street, Alloa, FK10 2AL, FK10 — £108,000 • 2 bed • 1 bath • 957 ft²










































