Spacious family home with garden studio and modern comforts near stations.
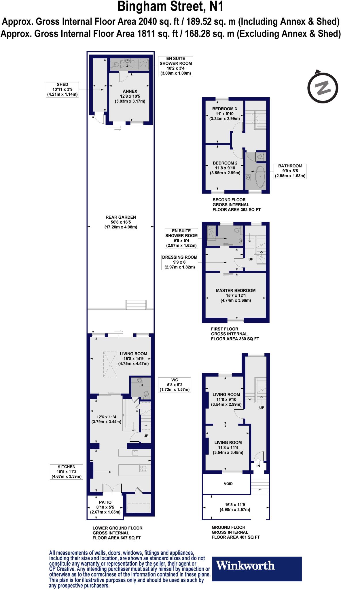
Grade II listed Georgian townhouse, fully refurbished throughout
This Grade II listed Georgian townhouse blends period character with a full, sympathetic refurbishment to offer 2,040 sq ft of flexible family living in Canonbury. The house is bright and well-planned across multiple floors, with high ceilings, sash windows, decorative fireplaces and modern finishes throughout. Practical upgrades include double-glazed sash windows, underfloor heating to the lower floors, an insulated loft and a new boiler.
A landscaped back garden with layered seating, fountain and a fully serviced garden studio/annex (king bed, en-suite, underfloor heating) extends the living space and suits guests or home-working. The ground and lower floors open well for entertaining: a fitted kitchen, extended dining area with skylight, and sliding doors that connect directly to the garden. There is off-street resident parking and excellent transport links — Canonbury, Dalston and Highbury stations are within walking distance.
Buyers should note the property’s listed status: any external or structural changes will be restricted and subject to approvals. The plot is compact, so the garden, while thoughtfully landscaped, is modest in size. Council tax is described as quite expensive. The house was newly renovated, but the original solid brick construction means external wall insulation may be limited without listed-consent work.
Overall this home suits families or professionals seeking a large, characterful London townhouse with modern comforts and a self-contained studio. It offers immediate move-in condition and strong local amenities, but prospective purchasers should factor in restrictions from the Grade II listing and ongoing local taxation costs.
4 bedroom terraced house for sale in Canonbury Grove, London, N1 — £3,250,000 • 4 bed • 2 bath • 2152 ft²
5 bedroom house for sale in Northampton Park, London, N1 — £5,750,000 • 5 bed • 3 bath • 3100 ft²
4 bedroom house for sale in Canonbury Street, LONDON, N1 — £3,000,000 • 4 bed • 4 bath • 2435 ft²
3 bedroom terraced house for sale in Canonbury Road, Canonbury, N1 — £2,000,000 • 3 bed • 2 bath • 1779 ft²
4 bedroom terraced house for sale in Barnsbury Street,
Barnsbury, N1 — £3,500,000 • 4 bed • 3 bath • 2548 ft²
4 bedroom terraced house for sale in Burgh Street, Angel, Islington, N1 — £2,250,000 • 4 bed • 2 bath • 2000 ft²














































































