Exceptional storage and parking for growing families.
Dual aspect living room with abundant natural light
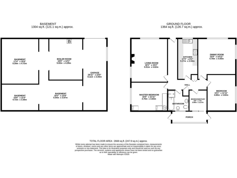
Integral tandem garage plus c.1,300 sq ft basement storage/workshop
Generous corner plot with mature lawns and two separate driveways
Three good-sized bedrooms; third currently used as a study
Single main bathroom only (five-piece suite but one bathroom)
Built late 1970s/early 1980s; some original fittings require updating
EPC rating D; solar water heating installed
Council Tax Band F — higher annual running costs
A spacious three-bedroom detached bungalow on a generous corner plot, offering single-level living with exceptional storage. Dual aspect reception rooms and large windows create bright, comfortable living spaces suited to family life. The layout includes a sizable kitchen, dining room and a versatile third bedroom currently used as a study.
The property's standout asset is the integral tandem garage and an expansive basement/workshop of approximately 1,300 sq ft — rare for this type — ideal for a hobbyist, workshop, large-scale storage or conversion subject to consents. Two separate driveways provide plenty of off-street parking for multiple vehicles, and the plot has mature lawns and garden areas for children and outdoor activities.
Practical considerations: the bungalow dates from the late 1970s/early 1980s and shows some original fittings and dated décor, so updating will be needed to modernise interiors. There is only one main bathroom for three bedrooms. Energy efficiency is moderate (EPC rating D) but the house benefits from mains gas central heating and solar water heating. Council tax sits at Band F, reflecting higher running costs.
Located in a residential area within good school catchments and low-crime surroundings, this freehold property suits families seeking generous space and storage potential, or buyers wanting a project with strong scope to add value through refurbishment or repurposing the basement.
4 bedroom detached bungalow for sale in Brimington Road, Chesterfield, S41 — £375,000 • 4 bed • 1 bath • 1922 ft²
3 bedroom detached bungalow for sale in The Glade, Brampton, Chesterfield, S40 — £425,000 • 3 bed • 2 bath • 1435 ft²
2 bedroom detached bungalow for sale in Woodleigh Close, Chesterfield, S40 — £250,000 • 2 bed • 1 bath • 968 ft²
3 bedroom detached bungalow for sale in Oldridge Close, Holme Hall, Chesterfield, S40 — £400,000 • 3 bed • 1 bath • 1518 ft²
3 bedroom detached bungalow for sale in Stanage Way, Holme Hall, Chesterfield, S40 — £295,000 • 3 bed • 2 bath • 1035 ft²
3 bedroom bungalow for sale in Church View, Clowne, Chesterfield, S43 — £280,000 • 3 bed • 2 bath • 1446 ft²










































































