Ready-to-move luxury two-bed with premium amenities and Wood Wharf views.
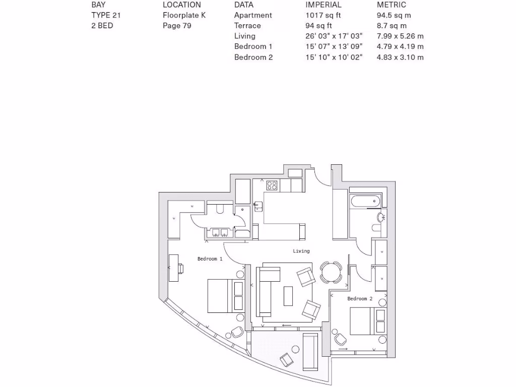
41st-floor two-bedroom, 1,017 sq ft with 94 sq ft private terrace
Perched on the 41st floor of Herzog & de Meuron’s One Park Drive, this 1,017 sq ft two-bedroom apartment delivers high-floor living, generous ceiling heights (approx. 2.65m) and a 94 sq ft private terrace with east-facing Wood Wharf views. Finished to a high specification—engineered wood floors, marble bathroom, framed kitchen with Siemens appliances (including a wine fridge), underfloor heating and comfort cooling—it is completed and ready to move into.
Residents benefit from extensive on-site facilities: 24-hour concierge and security, a 20m pool, gym, spa, private library, lounge and cinema. Transport links are excellent with Jubilee, DLR and Crossrail within walking distance and fast connections across London, making this attractive for professionals or buyers seeking a central pied-à-terre.
Practical points to note: the flat is leasehold, service charges and ground rent are not provided here and should be confirmed. The apartment has a single bathroom and is on a high floor, which may not suit those with mobility needs. The surrounding area records higher-than-average crime levels—prospective buyers should assess security and insurance implications.
This property suits an investor or city professional seeking a ready-made, high-spec Canary Wharf address with strong transport links and premium communal amenities. It offers immediate occupancy and lettable appeal but budget for ongoing service charges and confirm lease terms before exchange.
2 bedroom apartment for sale in One Park Drive, Canary Wharf, E14 — £1,415,000 • 2 bed • 1 bath • 1017 ft²
2 bedroom apartment for sale in One Park Drive, Canary Wharf, E14 — £1,430,000 • 2 bed • 1 bath • 1017 ft²
2 bedroom apartment for sale in One Park Drive, Canary Wharf, E14 — £1,460,000 • 2 bed • 1 bath • 1017 ft²
2 bedroom apartment for sale in Canary Wharf,
London,
E14 9QG, E14 — £1,460,000 • 2 bed • 2 bath • 1017 ft²
3 bedroom apartment for sale in Canary Wharf,
London,
E14 9QG, E14 — £3,350,000 • 3 bed • 3 bath • 1887 ft²
2 bedroom flat for sale in Park Drive, London, E14 — £1,250,000 • 2 bed • 2 bath • 1080 ft²


















































