**Standout Features:**
- Unique detached country and equestrian property on the borders of Surrey, Sussex, and Kent.
- Expansive 4,000 sqft layout with 5-6 bedrooms, 4 reception rooms, and 4 kitchens; easily convertible for multi-generational living or Airbnb potential.
- Set on a generous 7.6 acres (*TBV) with picturesque gardens, paddocks, and direct access to bridleways leading to Ashdown Forest.
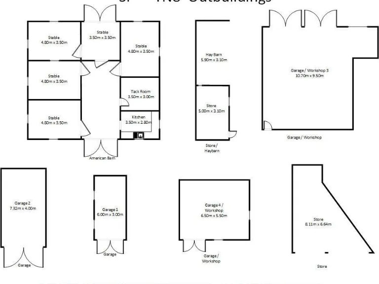
- Equestrian amenities include a professionally installed 30m x 40m riding arena and a large American barn with 5 foaling boxes.
- Multiple outbuildings, extensive parking, and stunning views enhance the tranquil countryside appeal.
This impressive detached house, 'Silver Pines,' offers a rare opportunity for equestrian enthusiasts or families seeking a spacious, multi-functional living environment. Surrounded by lush greenery and picturesque views, the property has been thoughtfully refurbished to incorporate eco-friendly features while maintaining its charm. The versatile layout provides separate living quarters ideal for multigenerational families or potential income through Airbnb. 
Equestrian facilities are well-equipped and include a large riding arena and ample stabling options, all set on sprawling, well-fenced paddocks. The expansive grounds are perfect for outdoor enjoyment and relaxation, featuring a natural swimming pond that adds to the property's unique allure. Despite its tranquil setting, convenient access to local amenities, highly regarded schools, and transport links ensures a balanced lifestyle of peace and accessibility. 
While the property is in excellent condition, potential buyers should note the size of the grounds and associated maintenance. With its blend of luxury, functionality, and equestrian opportunities, this property is a must-see for those looking to invest in a distinctive countryside lifestyle. Don’t miss out on this exceptional offering, as opportunities like this don’t last long!
 5 bedroom detached house for sale in rural Sevenoaks, West Kent, TN15 — £2,250,000 • 5 bed • 1 bath • 4148 ft²
 5 bedroom detached house for sale in rural Sevenoaks, West Kent, TN15 — £2,250,000 • 5 bed • 1 bath • 4148 ft² Equestrian facility for sale in Bletchingley, Surrey, RH1 — £1,350,000 • 4 bed • 2 bath • 2743 ft²
 Equestrian facility for sale in Bletchingley, Surrey, RH1 — £1,350,000 • 4 bed • 2 bath • 2743 ft² 3 bedroom detached house for sale in House With Paddock & Outbuildings, RH14 — £750,000 • 3 bed • 2 bath • 1812 ft²
 3 bedroom detached house for sale in House With Paddock & Outbuildings, RH14 — £750,000 • 3 bed • 2 bath • 1812 ft² 3 bedroom semi-detached bungalow for sale in High Road, Chipstead, Coulsdon, CR5 — £950,000 • 3 bed • 1 bath • 884 ft²
 3 bedroom semi-detached bungalow for sale in High Road, Chipstead, Coulsdon, CR5 — £950,000 • 3 bed • 1 bath • 884 ft² Equestrian facility for sale in NO CHAIN rural East Sussex, TN39 — £950,000 • 3 bed • 1 bath • 2000 ft²
 Equestrian facility for sale in NO CHAIN rural East Sussex, TN39 — £950,000 • 3 bed • 1 bath • 2000 ft² 5 bedroom detached house for sale in Bletchingley, Surrey, RH1 — £1,650,000 • 5 bed • 4 bath • 3141 ft²
 5 bedroom detached house for sale in Bletchingley, Surrey, RH1 — £1,650,000 • 5 bed • 4 bath • 3141 ft²










































































































































