Affordable, commuter-friendly flat with private parking and long lease in Reading.
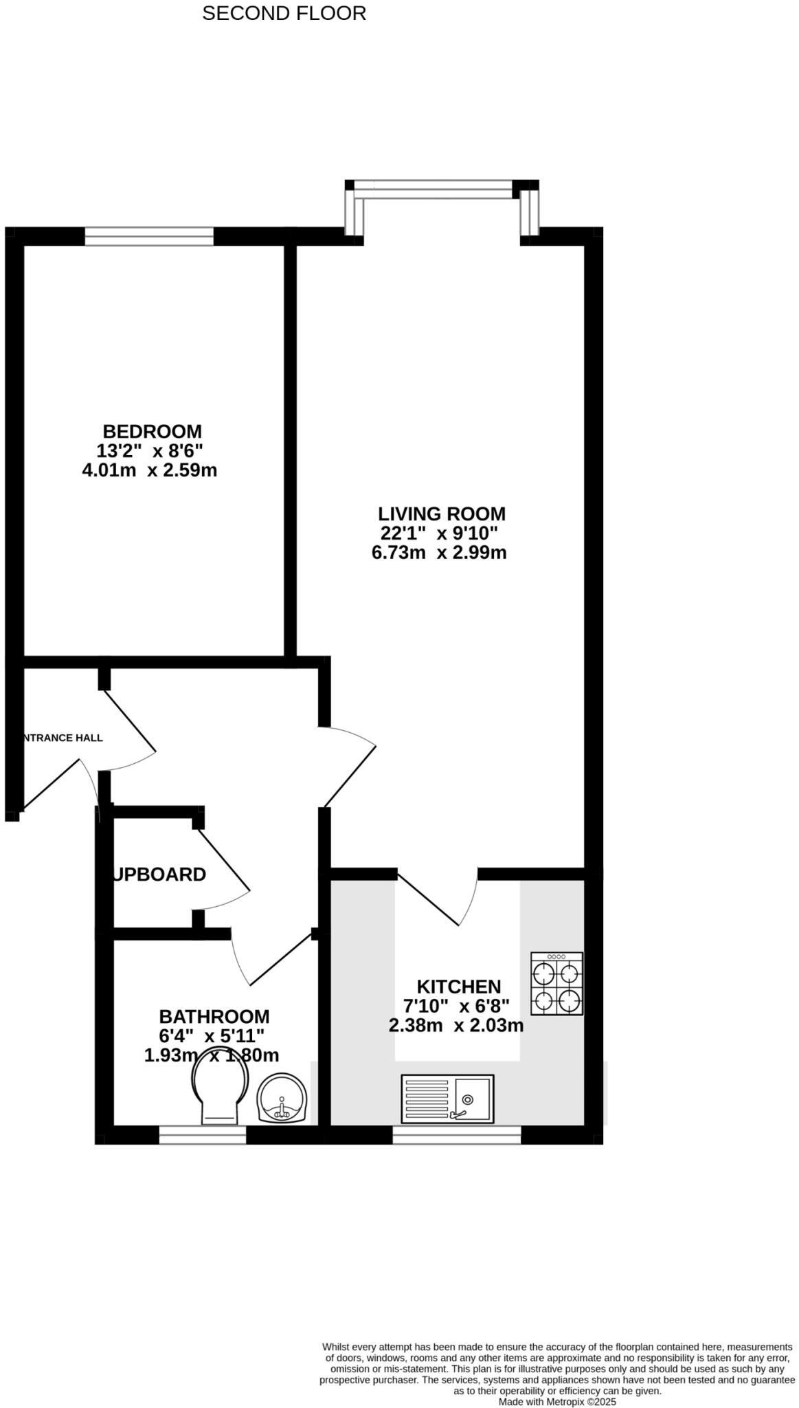
- One double bedroom, second-floor flat
- Total area approximately 419 sq ft (small)
- Private allocated parking plus nearby garage
- EPC rating C (expires 24 Oct 2033)
- Long lease: 147 years remaining
- Leasehold costs: ground rent £400 pa; service charge £800.04 pa
- Area has above-average crime and higher deprivation
- No onward chain; close to Reading station and local amenities
A practical one-bedroom second-floor apartment in central Reading, offered with no onward chain and long lease (147 years). The flat provides a spacious living/dining room, a double bedroom, fitted kitchen, and a three-piece bathroom — well suited to a first-time buyer or buy-to-let investor seeking low-entry ownership near transport and local amenities.
The development dates from the 1980s and presents low-maintenance communal grounds, allocated private parking and a nearby garage. EPC C valid to October 2033 and fast broadband/mobile signal make the home attractive for commuters using Reading station and nearby M4 links.
Notable practical details: the property is leasehold (ground rent £400 pa; service charge £800.04 pa), the overall size is small (419 sq ft) and the area records above-average crime and local deprivation statistics. Buyers should verify all details with their solicitor and budget for routine updating rather than major structural works.
This is a straightforward, well-located flat that offers immediate occupation potential or rental income with modest management costs. It will particularly suit someone prioritising price, location and transport links over generous internal space or quieter suburban surroundings.
1 bedroom apartment for sale in Castle Hill, Reading, Berkshire, RG1 — £140,000 • 1 bed • 1 bath • 415 ft²
2 bedroom flat for sale in Rose Kiln Lane, Reading, RG1 — £220,000 • 2 bed • 1 bath • 525 ft²
1 bedroom apartment for sale in Cardiff Mews, Cardiff Road, Reading, RG1 — £215,000 • 1 bed • 1 bath • 500 ft²
1 bedroom apartment for sale in Thorney House, Drake Way, Reading, Berkshire, RG2 — £180,000 • 1 bed • 1 bath • 461 ft²
1 bedroom apartment for sale in Kings Road, Reading, Berkshire, RG1 — £180,000 • 1 bed • 1 bath • 414 ft²
1 bedroom apartment for sale in Carey Street, Reading, Berkshire, RG1 — £150,000 • 1 bed • 1 bath • 445 ft²






































































