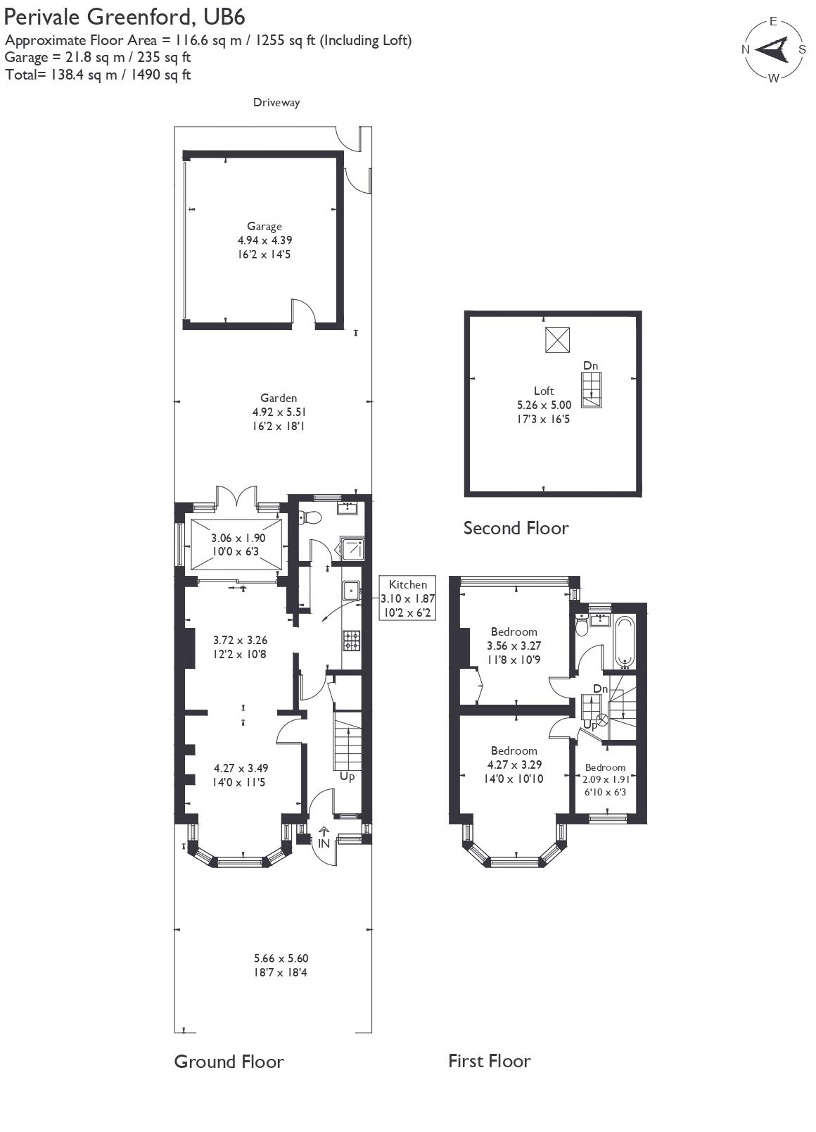
Three bedrooms and two bathrooms, versatile family layout
10-minute walk to Perivale Station (Central Line) — strong commuter location
Scope to extend into loft and rear (subject to planning permission)
Off-street parking and small low-maintenance rear garden
Solid brick walls with no known insulation — upgrade likely needed
EPC rating C; mains gas boiler and radiators in place
Small plot and narrow garage; limited outdoor space
Local area records higher crime levels — consider security measures
This three-bedroom terraced home on Rydal Crescent offers a practical family layout close to Perivale Station and well-regarded schools. The ground floor provides a bright bay-front reception, separate kitchen and a convenient shower room, while upstairs are two double bedrooms, a single bedroom and the family bathroom. Off-street parking and a small manageable garden add everyday convenience.
There is clear potential to increase living space and value: the loft and rear can be extended subject to planning permission (STPP). The house sits on a modest plot and benefits from double glazing, mains gas central heating and an EPC rating of C, making it economical to run compared with older stock.
Be aware of some practical points: the property is an early 20th-century solid-brick build with no known cavity insulation (insulation upgrade likely required), and the wider area records higher-than-average crime — important for buyers to consider. The home will suit families or first-time buyers seeking commuter access and scope to personalise rather than buyers wanting a completely move-in‑perfect property.
Viewing is recommended to appreciate room proportions, natural light and the potential to extend. For buyers willing to carry out targeted improvements, this house offers a well-located, value-driven opportunity in UB6.























































