Move-in ready three-bedroom with modern kitchen and generous garden for family life.
Three well-proportioned bedrooms, newly renovated throughout
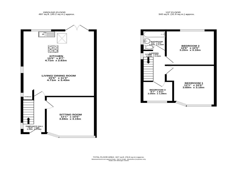
This tastefully extended three-bedroom semi sits on a popular East Didsbury street, a short walk from Didsbury Village and highly regarded schools. The property has been newly renovated and is presented in ready-to-move-in condition, with a bright modern living/dining kitchen featuring skylights and French doors that open onto a good-sized, low-maintenance rear garden—ideal for children and entertaining.
The ground floor includes a bay-fronted sitting room that brings in natural light, plus off-street parking and a tidy front garden. Upstairs are three well-proportioned bedrooms served by a contemporary three-piece shower room. Broadband and mobile signal are excellent, supporting home working and family connectivity.
Practical details: the home is leasehold with a long remaining term (about 910 years) and a small ground rent of £18. There is a single bathroom only, and the original cavity walls are assumed to have no added insulation, which may be a consideration for future energy-efficiency improvements. Overall, this property is well suited to first-time buyers, growing families, or professionals seeking convenient access to transport and local amenities.
3 bedroom semi-detached house for sale in Highbank Drive, Didsbury, Manchester, M20 — £385,000 • 3 bed • 1 bath • 909 ft²
3 bedroom semi-detached house for sale in Morningside Drive, East Didsbury, M20 — £395,000 • 3 bed • 1 bath • 1002 ft²
3 bedroom semi-detached house for sale in Laneside Road, MANCHESTER, Lancashire, M20 — £420,000 • 3 bed • 1 bath • 934 ft²
3 bedroom semi-detached house for sale in Cranston Drive, Manchester, M20 — £400,000 • 3 bed • 1 bath • 1046 ft²
3 bedroom semi-detached house for sale in Fordbank Road, Didsbury, M20 — £690,000 • 3 bed • 1 bath • 1223 ft²
3 bedroom semi-detached house for sale in Austin Drive, Didsbury, M20 — £550,000 • 3 bed • 1 bath • 1091 ft²


























































































































































