**Standout Features:**
- Spacious detached stone house in a tranquil village setting
- Four large bedrooms, including an en-suite master
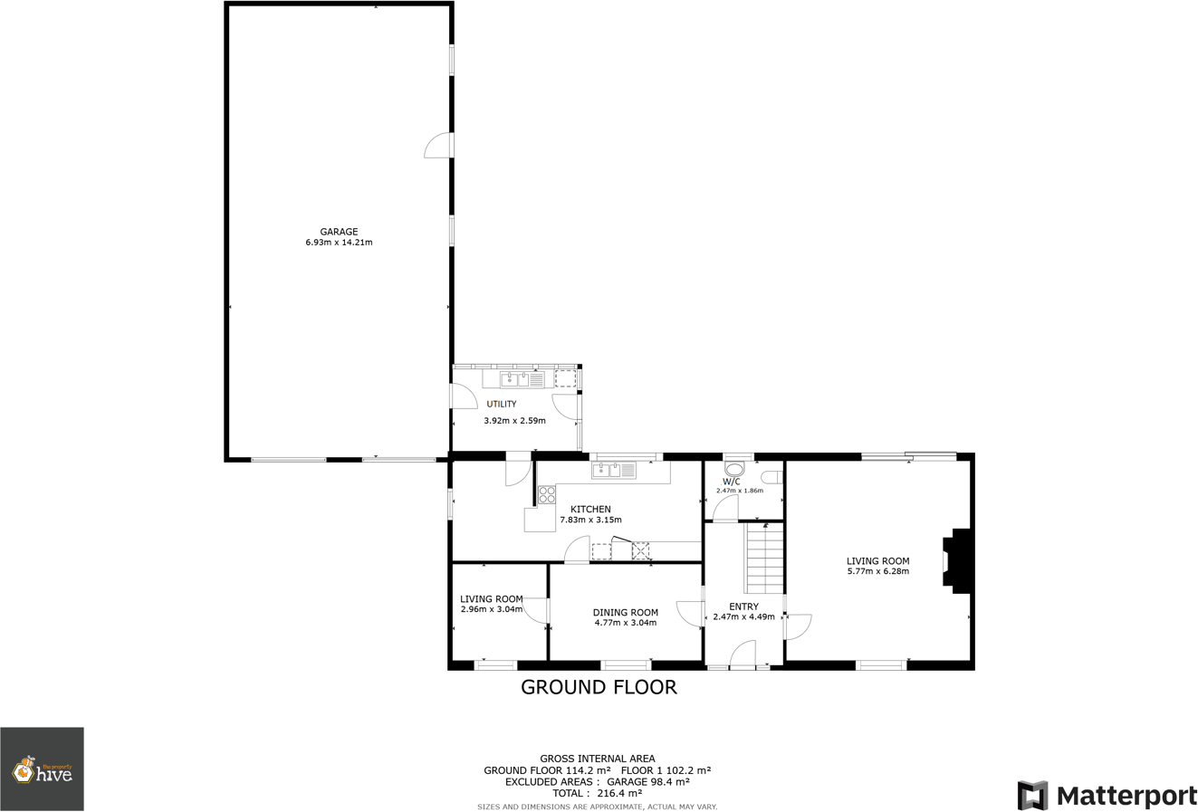
- Three reception rooms for ample living space
- Modern kitchen diner with adjacent utility room
- Generous integral barn-style garage and large driveway for off-road parking
- Beautifully manicured front and rear gardens
- Excellent mobile signal; average broadband speeds
**Potential Concerns:**
- Minor maintenance may be required for a home built between 1967-1975
- Council tax is categorized as expensive
- Cavity walls may lack insulation, suggesting possible energy efficiency improvements
**Summary Description:**
Discover your ideal family retreat in this charming detached stone property, set in a serene village surrounded by picturesque fields. Offering four spacious bedrooms—including a master suite with en-suite bathroom—this home is designed for comfortable living. The three inviting reception rooms allow for cozy family gatherings, while the modern kitchen diner and handy utility room cater to all your culinary needs.
Step outside to enjoy the well-tended front and rear gardens that provide a peaceful backdrop for relaxation. With a large driveway and integral barn-style garage, parking is effortless. This property, rich in potential, is perfect for families seeking a blend of rural tranquility and convenient access to nearby M18 and M1 motorways. Don't miss the opportunity to embrace a lifestyle of comfort and exclusivity in this beautiful home. Schedule your 3D virtual tour today and envision yourself living in this idyllic setting!
5 bedroom detached house for sale in Beech House Croft, Clifton Village, S66 — £575,000 • 5 bed • 2 bath • 2000 ft²
5 bedroom detached house for sale in Main Street, Ravenfield, Rotherham, South Yorkshire, S65 — £680,000 • 5 bed • 4 bath • 2500 ft²
5 bedroom detached house for sale in Doncaster Road, Braithwell, Rotherham, S66 — £435,000 • 5 bed • 3 bath • 2200 ft²
5 bedroom detached house for sale in The Orchard, Stainton, Rotherham, S66 — £560,000 • 5 bed • 3 bath • 2292 ft²
4 bedroom detached house for sale in 4 Manor Farm Close, Sutton, , DN6 — £380,000 • 4 bed • 2 bath • 1507 ft²
4 bedroom character property for sale in Chapel Lane, Billingley, S72 — £680,000 • 4 bed • 3 bath • 1442 ft²






































































































