PO33 3BZ - 5 bed two apartment investment in Isle Of Wight, PO33 3BZ

View on Property Piper

5 bedroom block of apartments for sale in Argyll Street, Ryde, Isle of Wight, PO33

Summary - Argyll Street, Ryde, Isle of Wight PO33 3BZ

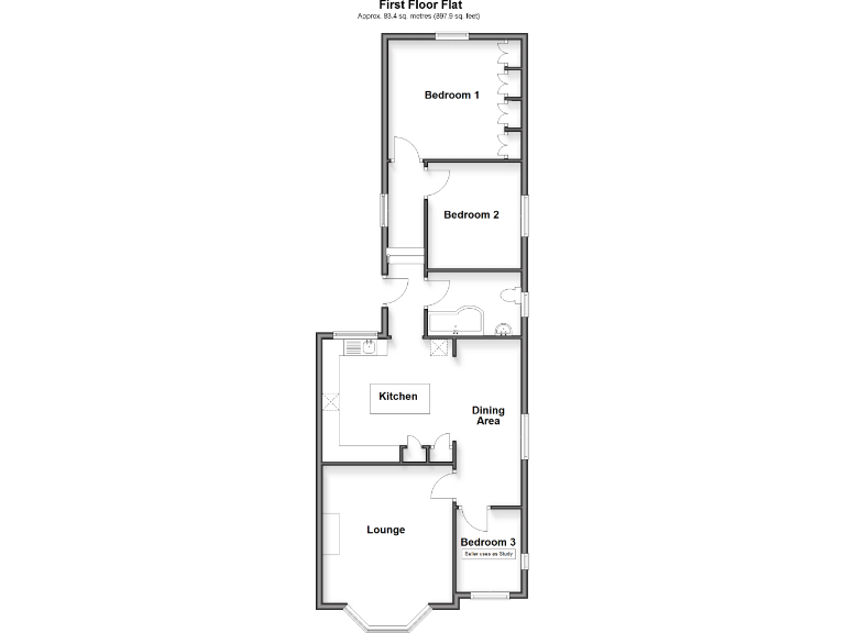
5 bed 2 bath Block of Apartments

Central Ryde lots with parking and garden, suited to hands-on investors.
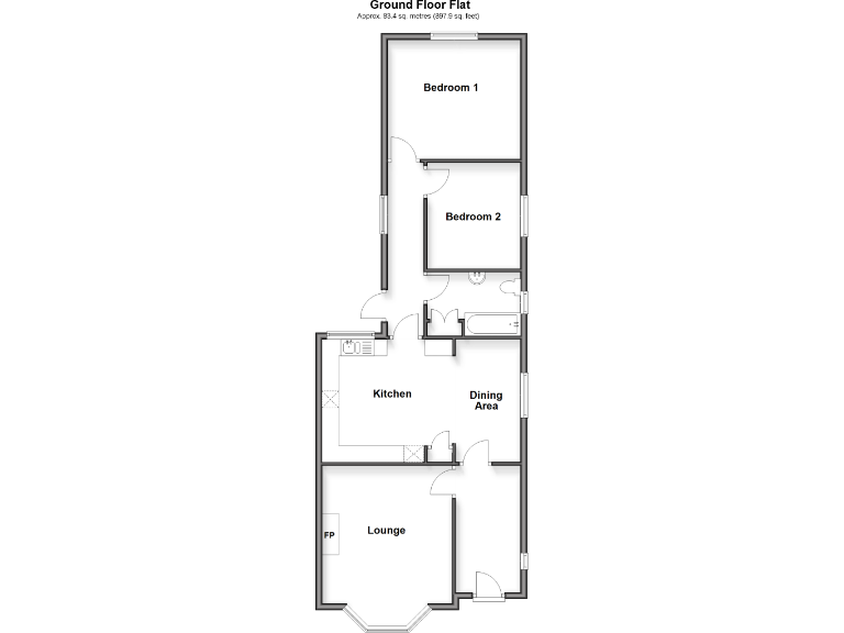
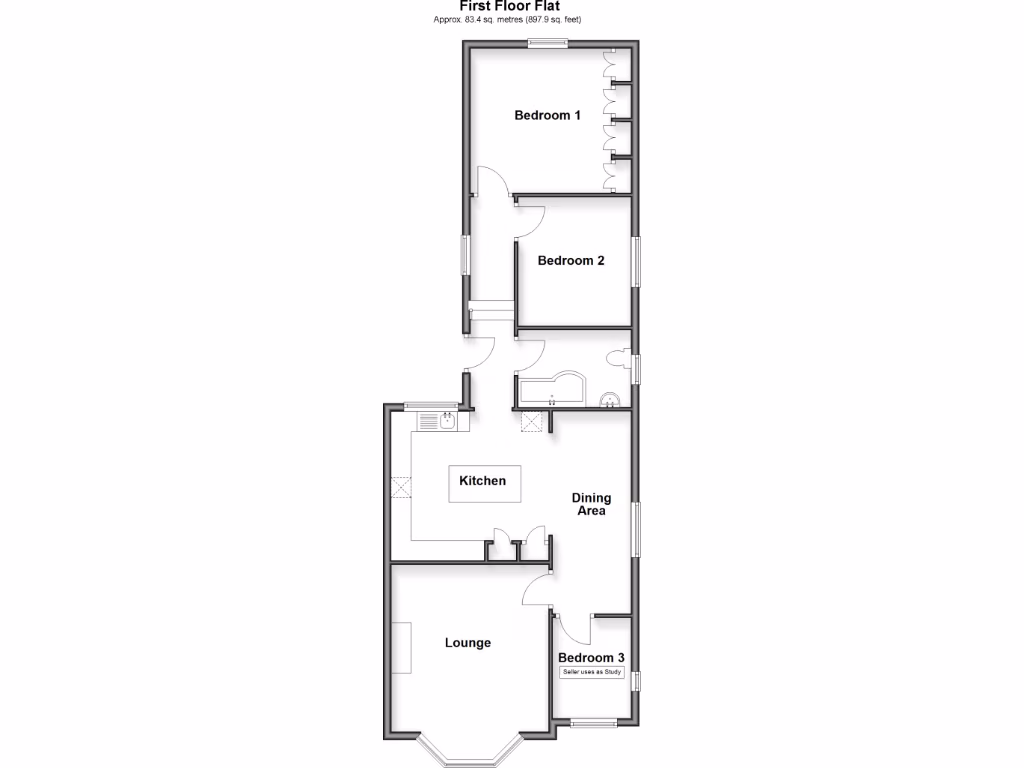
Two self-contained apartments sold together (total 5 bedrooms, 2 bathrooms)
Long lease reported at 951 years (confirm legal title and tenure)
Free access to garden, shed and off-street parking for both units
No service or maintenance fees between apartments
Modern auction sale — undisclosed reserve and buyer's reservation fee apply
Building needs internal modernisation to maximise rental income
Triple glazing, air-source heat pump and underfloor heating present
Location: central Ryde — fast broadband, excellent mobile, but high local crime and deprivation
This compact block offers two self-contained apartments sold together with the long lease (951 years) and off-street parking — a straightforward buy-to-let proposition in the centre of Ryde. Each flat has its own entrance, garden and shed, and there are no ongoing service charges to split between units. The building retains period character, bay windows and high ceilings while benefiting from modern upgrades such as triple glazing and an air-source heat pump with underfloor heating.

The property is being sold by Modern Auction (closing 24 October 2025). Bidders should note an undisclosed reserve price, a non-refundable reservation fee (4.2% of the purchase price, minimum £6,000) and additional buyers’ fees; full terms are in the buyer information pack. Completion is expected within 56 days of the draft contract, so allow time for mortgage or legal checks before bidding.

Location provides easy walking access to Ryde town amenities, schools and transport links — broadband speeds are fast and mobile signal is excellent. Conversely, the area scores as deprived with a high local crime rate, which may affect tenant mix and rental levels. The building is of solid construction (cavity walls with internal insulation) but the interiors will require some modernisation to maximise rental income or capital growth.

For an investor prepared to manage refurbishment and let in a challenging local market, this two-apartment lot with long lease, parking and private gardens represents clear rental potential and scope to add value. Carrying out your own due diligence and reviewing the buyer pack is essential before bidding.

Property Details

Image Descriptions

Floorplan Description

Rooms

Textual Property Features

Target Audience

AI Tags

Detected Visual Features

EPC Details

Nearby Schools

Nearest Bars And Restaurants

,,,,}

Nearest General Shops

,,}

Nearest Grocery shops

,,}

Nearest Supermarkets

,,}

Nearest Religious buildings

,,}

Nearest Medical buildings

,,,}

Nearest Airports

}

Nearest Leisure Facilities

,,,,}

Nearest Tourist attractions

,,}

Nearest Train stations

,,,,}

Nearest Bus stations and stops

,,,,}

Nearest Hotels

,,}

Tags

Local Market Stats

AirBnB Data

Similar Properties

Meta

High Res Images

Compatible Images

Low res Images

Thumbnails

Raw Images

High Res Floorplan Images

Compatible Floorplan Images

Low res Floorplan Images

FloorplanImages Thumbnail

Raw Floorplan Images