BN3 5FQ - 3 bedroom terraced house for sale in Shelley Road, Hove, BN3

View on Property Piper

3 bedroom terraced house for sale in Shelley Road, Hove, BN3

Summary - 27 SHELLEY ROAD HOVE BN3 5FQ

3 bed 1 bath Terraced

3 double bedrooms in a bay-fronted Victorian terrace
Family-sized open-plan kitchen/diner for daily living
Large through lounge/dining; can be divided by glazed doors
South- and east-facing private rear garden, small-to-average plot
Single bathroom only for three bedrooms
Solid brick walls likely uninsulated — scope for energy upgrades
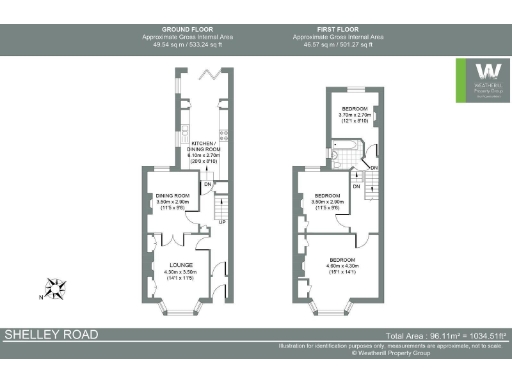
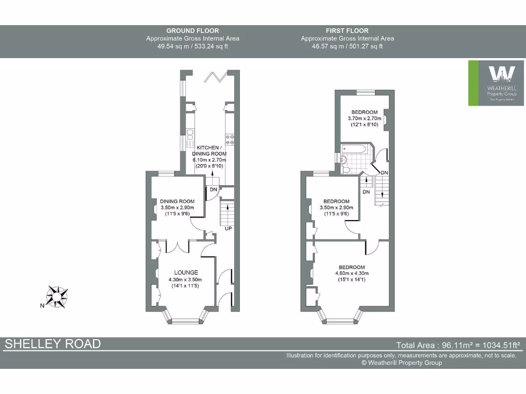
Approximately 1,035 sq ft; freehold with gas central heating
This bay-fronted Victorian mid-terrace offers a generous, family-friendly layout across two storeys, with about 1,035 sq ft of living space and a sympathetic rear extension. High ceilings, decorative fireplaces, cornicing and light oak floors combine with contemporary finishes to provide a home that feels both characterful and lived-in. The property is freehold and heated by a mains gas boiler with radiators.

On the ground floor a wide entrance hall leads to a flexible through lounge and dining area that can be divided by glazed doors, plus a family-sized open-plan kitchen/diner — well suited to everyday family life and entertaining. Upstairs are three double bedrooms and a single white-suite bathroom; storage is good throughout. The south- and east-facing rear garden is private, enclosed and small-to-average in size, ideal for children and low-maintenance outdoor use.

Location is a strong selling point: tucked just off Portland Road, the home sits within walking distance of Hove seafront, independent shops, cafés and a mix of amenities. Several well-regarded primary and secondary schools are nearby, and the wider area is affluent with low crime and fast broadband.

Practical considerations: the building is a pre-1900 solid-brick Victorian terrace and the walls are likely uninsulated, so thermal upgrades could be useful. Double glazing is present though install date is unknown. There’s a single bathroom for three double bedrooms and the rear plot is modest in size — factors worth considering for larger families or those seeking extensive outdoor space. Overall this is a character-rich, well-located family house with scope for energy improvements and internal reconfiguration if desired.

Property Details

Brochure Descriptions

Image Descriptions

Rooms

Textual Property Features

Detected Visual Features

EPC Details

Nearby Schools

Nearest Bars And Restaurants

,,,,}

Nearest General Shops

,,}

Nearest Grocery shops

,,}

Nearest Supermarkets

,,}

Nearest Religious buildings

,,}

Nearest Medical buildings

,,,}

Nearest Leisure Facilities

,,,,}

Nearest Tourist attractions

,,}

Nearest Train stations

,,,,}

Nearest Bus stations and stops

,,,,}

Nearest Hotels

,,}

Tags

Local Market Stats

AirBnB Data

Meta

High Res Images

Compatible Images

Low res Images

Thumbnails

Raw Images

High Res Floorplan Images

Compatible Floorplan Images

Low res Floorplan Images

FloorplanImages Thumbnail

Raw Floorplan Images