**Standout Features:**
- Grade II Listed Family Home
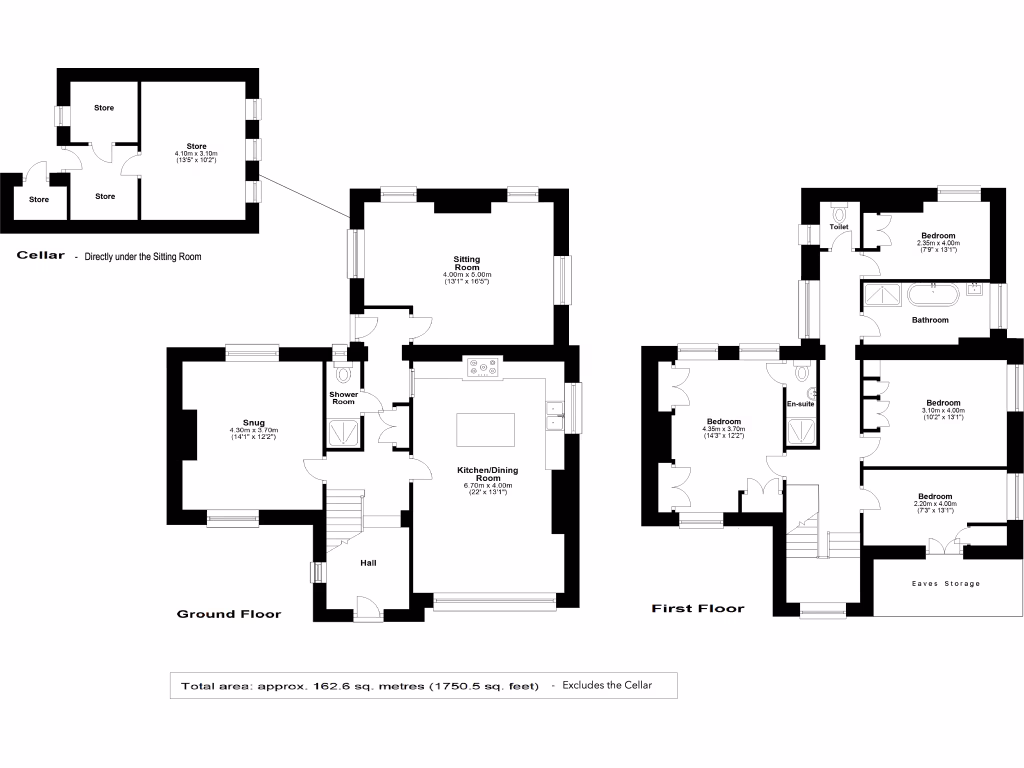
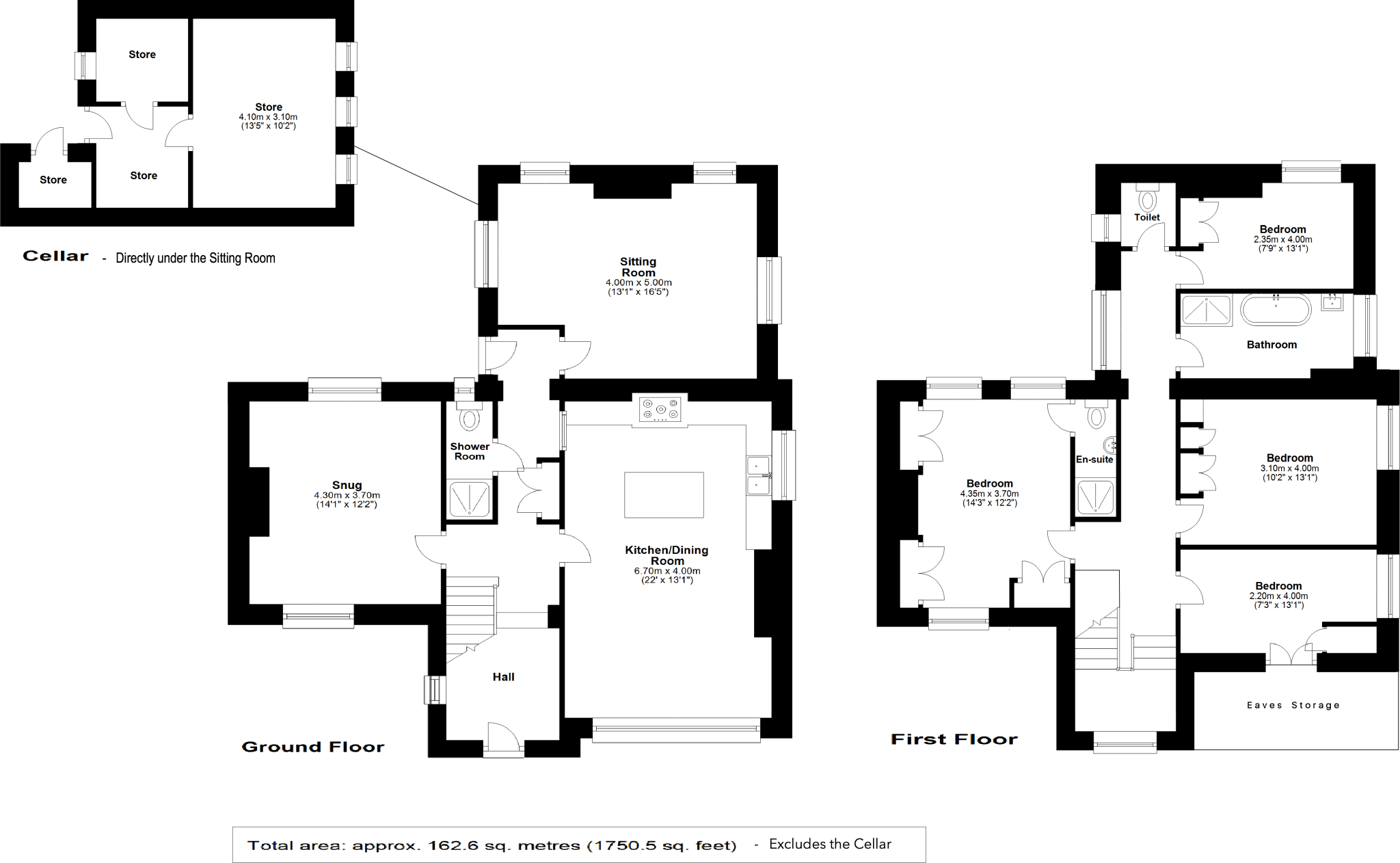
- Four spacious bedrooms, including an ensuite to master
- Two additional bathrooms
- Newly renovated open-plan kitchen with modern farmhouse aesthetics
- Cozy sitting room with wood-burning stove and additional snug with open fireplace
- Charming garden with stone wall boundaries
- Garage, cellar for storage, and parking space
- Scenic views of Bamburgh Castle
- Located in a small hamlet, close to the coast and popular villages
**Summary:**
Discover East House, a beautifully renovated Grade II listed home nestled in Shoreston, with breathtaking views of Bamburgh Castle. This enchanting family residence features four generously sized bedrooms, including a delightful master suite with its own ensuite, and two additional modern bathrooms that cater to family needs. The heart of the home, a spacious open-plan kitchen and dining area, combines contemporary design with a farmhouse feel, ideal for family gatherings or entertaining guests.
Beyond the inviting interior, the property boasts a cozy sitting room equipped with a wood-burning stove, along with a snug that enhances comfort during colder months. The well-maintained garden offers tranquility and space for outdoor activities, while the garage and cellar add practicality to this charming home. Located in a picturesque hamlet and just a stone's throw from stunning beaches and walking trails, East House is a rare find that blends historic charm with modern comforts. This opportunity is perfect for families or anyone seeking a serene lifestyle in the heart of Northumberland—available now but not for long!
4 bedroom semi-detached house for sale in 8 Elford Farm Cottages, Seahouses, NE68 — £695,000 • 4 bed • 4 bath • 1909 ft²
4 bedroom semi-detached house for sale in St. Aidans, Seahouses, Northumberland, NE68 7SS, NE68 — £585,000 • 4 bed • 2 bath • 1727 ft²
6 bedroom detached house for sale in Easington Farmhouse, Easington, Belford, Northumberland, NE70 — £900,000 • 6 bed • 5 bath • 4634 ft²
3 bedroom house for sale in Forge Cottage, Eglingham, NE66 — £450,000 • 3 bed • 2 bath • 1809 ft²
4 bedroom barn conversion for sale in Wandylaw, Chathill, NE67 — £575,000 • 4 bed • 5 bath • 2509 ft²
4 bedroom detached house for sale in Adderstone Villa, Belford, Northumberland, NE70 — £550,000 • 4 bed • 1 bath • 3229 ft²


































































































































