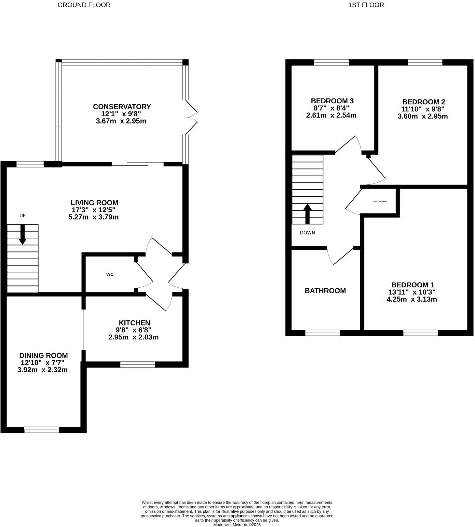
Tidy three-bed semi with conservatory, off-street parking and easy A45/M1 access — ideal for families..
- Three bedrooms with one family bathroom
- Well-presented interior with modern kitchen and dining area
- Bright conservatory and private rear garden
- Off-street paved forecourt parking for multiple vehicles
- Average-sized rooms; not expansive living proportions
- Only one bathroom for a three-bedroom house
- Close to Outstanding and Good-rated local schools
- Local crime levels reported as high
Well-presented three-bedroom semi-detached house in Sandhurst Close offers practical family living with good transport links to the A45/M1. The ground floor features two reception rooms and a bright conservatory that opens onto a private rear garden, creating flexible living and entertaining space. The modern fitted kitchen and contemporary dining area are ready to use with tidy, neutral finishes throughout.
Upstairs provides three good-sized bedrooms and a single family bathroom, suitable for families or first-time buyers seeking a straightforward move-in property. Off-street parking for multiple vehicles on a paved forecourt is a genuine convenience in this area. Nearby Outstanding- and Good-rated schools and local amenities add to the location’s everyday appeal.
A few practical points to note: the house has only one bathroom and room proportions are modest rather than expansive — typical for an average-sized suburban home. Crime levels are recorded as high in the local area, which prospective buyers should factor into their decision and viewings. Overall the property offers a tidy, modern interior and decent outside space with scope for cosmetic updating or modest improvement to increase value.
3 bedroom semi-detached house for sale in Dickson Close, Northampton, NN4 — £260,000 • 3 bed • 1 bath • 905 ft²
3 bedroom end of terrace house for sale in Tewkesbury Close, Northampton, NN4 — £285,000 • 3 bed • 1 bath • 611 ft²
3 bedroom semi-detached house for sale in Hammerstone Lane, Danesfield, Northampton, NN4 — £240,000 • 3 bed • 1 bath • 906 ft²
3 bedroom semi-detached house for sale in Towcester Road - NN4 — £260,000 • 3 bed • 1 bath • 1011 ft²
3 bedroom semi-detached house for sale in Hinton Road, Northampton, NN2 — £290,000 • 3 bed • 1 bath • 669 ft²
3 bedroom semi-detached house for sale in Towton Court, Buckingham Fields, Northampton, NN4 — £267,500 • 3 bed • 1 bath • 742 ft²






















































