Chain-free three-bedroom flat near Earls Court Square with communal garden and share of freehold..
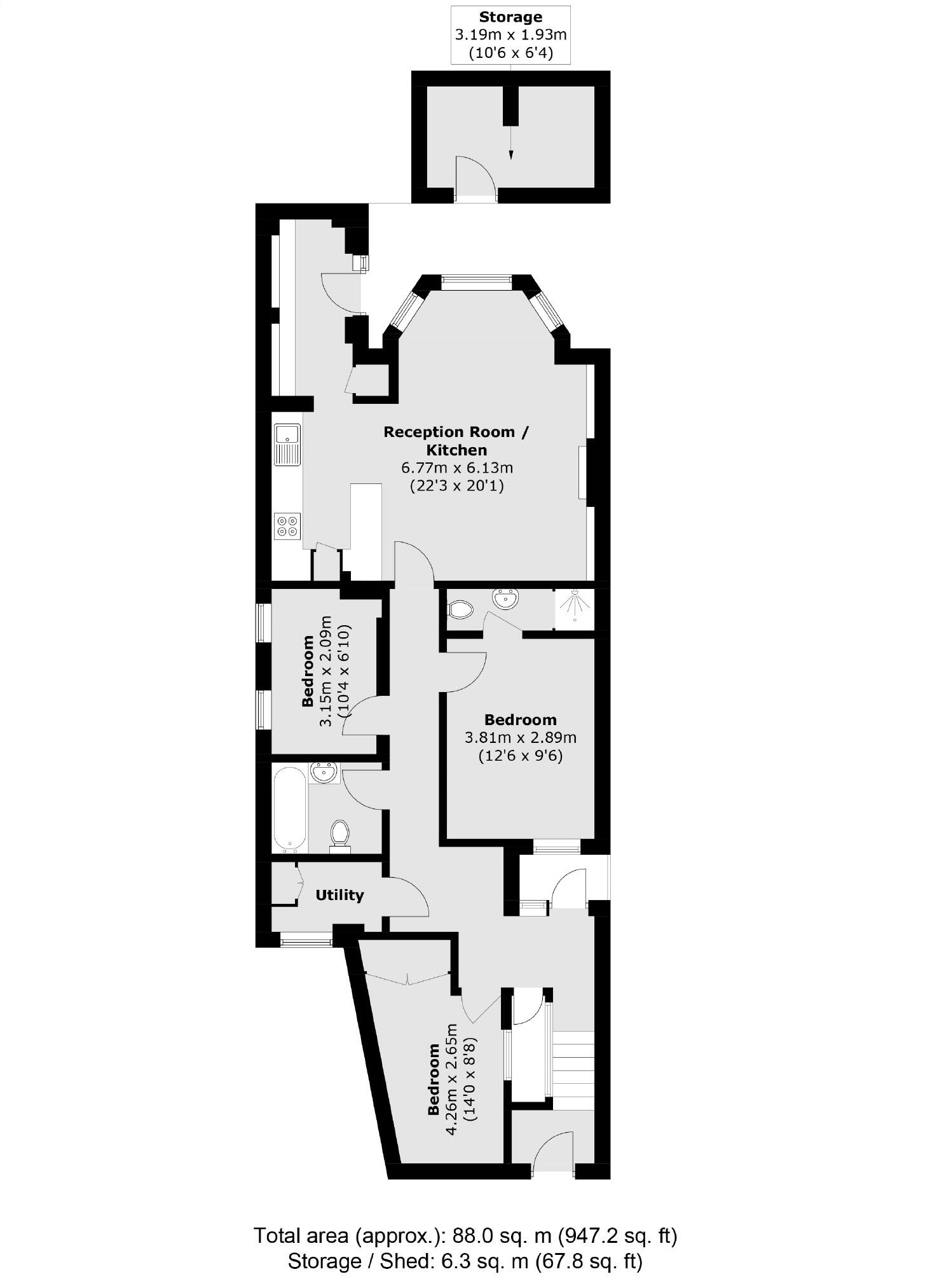
Three spacious bedrooms and two bathrooms, good natural light
Set in a quiet cul-de-sac off Earls Court Square, this three-bedroom apartment combines period charm with practical living space. The open-plan living/dining area and bay-windowed reception bring generous natural light and a comfortable family layout across c.947 sq ft. Two bathrooms and well-proportioned bedrooms make the flat suitable for parents working locally or sharers seeking separate sleeping accommodation.
The property benefits from share of freehold, communal garden access and a chain-free sale, allowing a swift move. Earls Court and West Brompton stations are within walking distance, and the location gives quick road access to the A4/M4 corridor. Local amenities, shops and a strong mix of state and independent schools are all nearby.
Buyers should note the building is Victorian solid-brick construction (pre-1900) with assumed no cavity insulation and secondary glazing in place. That makes the flat characterful but likely in need of energy upgrades to improve thermal performance. Council Tax is band F and thus relatively expensive. Overall, this home suits families or professionals seeking central location and period character, with scope to increase comfort and efficiency through targeted improvements.
3 bedroom flat for sale in Earl's Court Square, London, SW5 — £800,000 • 3 bed • 1 bath • 651 ft²
1 bedroom flat for sale in Earl's Court Square, Earls Court, SW5 — £650,000 • 1 bed • 1 bath • 556 ft²
2 bedroom flat for sale in Earl's Court Square, Earl's Court, SW5 — £1,000,000 • 2 bed • 1 bath • 871 ft²
3 bedroom flat for sale in Earl's Court Square, Earl's Court, SW5 — £1,200,000 • 3 bed • 2 bath • 1151 ft²
2 bedroom apartment for sale in Earl's Court Square, London, SW5 — £995,000 • 2 bed • 1 bath • 744 ft²
3 bedroom flat for sale in Earls Court, Earls Court, London, SW5 — £740,000 • 3 bed • 1 bath • 804 ft²






























