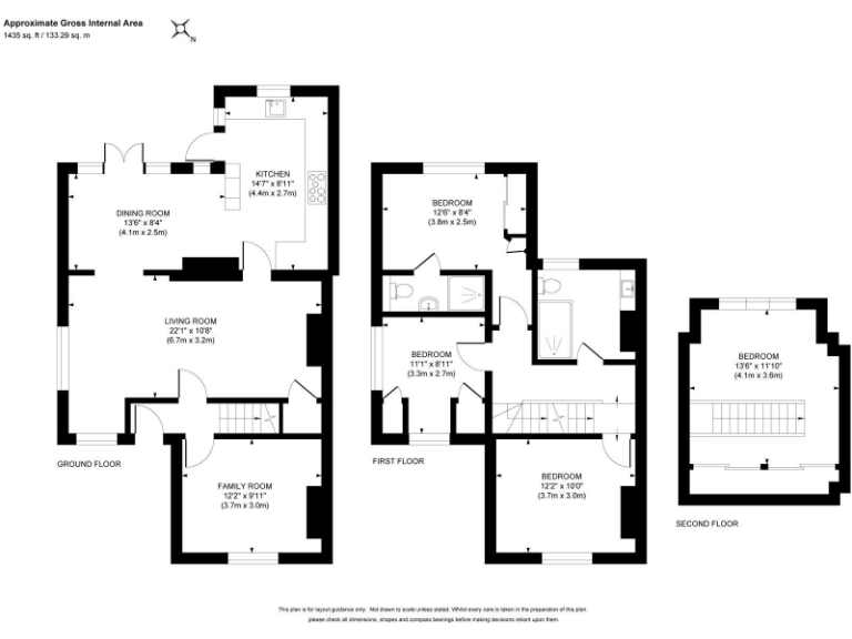
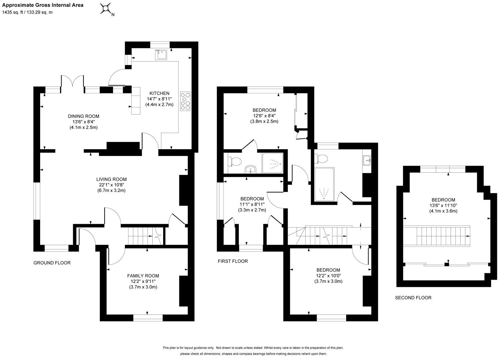
**Standout Features:**
- Extended Victorian semi-detached home
- 4 spacious bedrooms and 2 modern bathrooms
- Two inviting reception rooms with feature fireplaces
- Stunning kitchen/diner with vaulted ceiling
- Glorious south-westerly rear garden with BBQ terrace
- Off-road parking for up to two cars
- Close proximity to highly regarded Gordons and Holy Trinity schools
- Excellent broadband and mobile connectivity
**Summary:**
This charming extended Victorian semi-detached property offers a perfect blend of character and modern living, ideal for families seeking comfort and convenience. With 1,435 square feet of well-balanced space, it features four generous bedrooms, including a master with an ensuite, and two stylish bathrooms. The heart of the home is a stunning kitchen/diner that showcases high ceilings and elegant design, seamlessly flowing into a cozy living room—perfect for entertaining.
Step outside to a glorious south-westerly garden that invites relaxation and al-fresco dining, framed by mature trees for added privacy. Ideally situated in the affluent West End village, it's just a stroll to excellent schools and local amenities. With off-road parking for two vehicles, this home is not only inviting and functional but also presents a unique opportunity in a sought-after area. Don't miss out on this exceptional property—homes like this are rare to find in such a desirable location.
2 bedroom semi-detached house for sale in Guildford Road, West End, Woking, Surrey, GU24 — £549,950 • 2 bed • 1 bath • 1037 ft²
3 bedroom semi-detached house for sale in Fenns Lane, West End, Woking, GU24 — £685,000 • 3 bed • 2 bath • 1211 ft²
4 bedroom semi-detached house for sale in Meadow Way, West End, Woking, GU24 — £750,000 • 4 bed • 3 bath • 1664 ft²
3 bedroom semi-detached house for sale in Meadow Way, West End, Woking, Surrey, GU24 — £550,000 • 3 bed • 2 bath • 1174 ft²
3 bedroom semi-detached house for sale in High Street, West End, Woking, Surrey, GU24 — £550,000 • 3 bed • 1 bath • 1220 ft²
4 bedroom detached house for sale in Benner Lane, West End, Woking, Surrey, GU24 — £775,000 • 4 bed • 3 bath • 1643 ft²


































































































