Single-storey village barn conversion with parking, garden and loft potential — no onward chain.
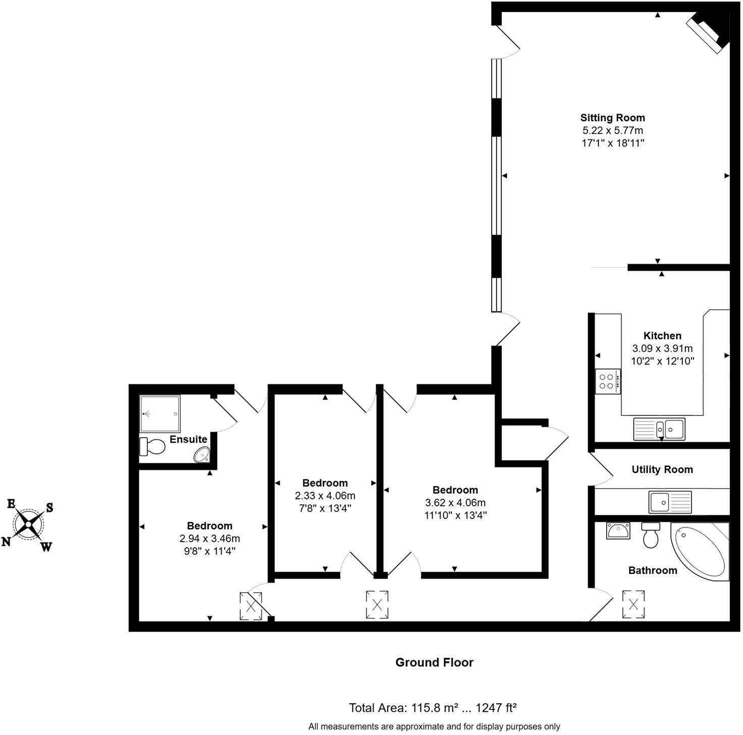
- Three double bedrooms, master with en-suite
- Bright sitting/dining room with exposed character features
- Large loft offering potential to create vaulted ceiling
- Two allocated parking spaces plus carport extra space
- New oil tank and boiler installed in 2021
- EPC Band E; dated areas require modernisation
- Cavity walls assumed uninsulated; consider insulation works
- Slow broadband; oil heating affects running costs
Set within a small courtyard of four properties in the heart of West Lavington, this three-bedroom barn conversion offers single-storey living with generous rooms and village convenience. The layout includes a bright sitting/dining room, kitchen, utility and a large loft space with potential to create a vaulted ceiling.
The master bedroom benefits from an en-suite and all three bedrooms are doubles with doors to the patio garden. Outside there is a small patio, two allocated parking spaces plus a carport. The property is offered with no onward chain and has a new oil tank and boiler (2021).
Practical considerations: the home retains many period, characterful features but is dated in parts and will benefit from modernization. Walls are cavity-built with no known insulation, broadband speeds are slow, and the EPC is band E. Oil-fired heating means running costs should be considered.
This would suit a buyer seeking village, single-level living with scope to improve and personalise — ideal for those downsizing from a larger house or buyers looking for a characterful home in a quiet, affluent rural setting.
4 bedroom house for sale in White Street, Market Lavington, Devizes, Wiltshire, SN10 — £650,000 • 4 bed • 2 bath • 2142 ft²
3 bedroom end of terrace house for sale in West Farm Barns, Knook, Knook, BA12 — £375,000 • 3 bed • 2 bath • 1091 ft²
4 bedroom terraced house for sale in White Street, Market Lavington, Wiltshire, SN10 4DA, SN10 — £595,000 • 4 bed • 2 bath • 1957 ft²
3 bedroom barn conversion for sale in Courtyard Barns, North Bradley, North Bradley, Nr Trowbridge, BA14 — £415,000 • 3 bed • 2 bath • 1288 ft²
4 bedroom detached house for sale in Cuckoo Farm Yard, Urchfont, SN10 — £850,000 • 4 bed • 3 bath • 2075 ft²
Barn for sale in Old Dilton, Westbury , BA13 — £565,000 • 3 bed • 1 bath • 1513 ft²






























































