Fully refurbished five-bed period home with gated parking near Carlisle station.
- Grade II listed Georgian terrace, newly refurbished throughout
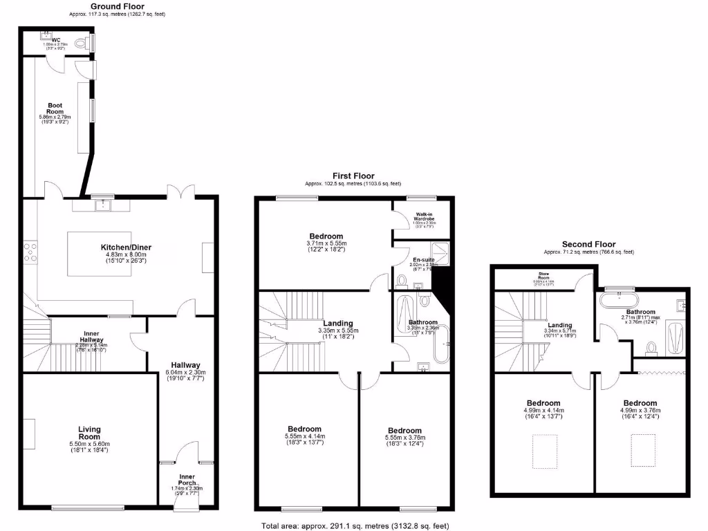
- Large footprint: about 3,132 sq ft across three storeys
- Five bedrooms and three modern bathrooms; principal dressing room
- Southerly kitchen-diner with island and French doors to courtyard
- Secure gated off-street parking in small rear courtyard
- Chain-free sale and short walk to Carlisle station and city centre
- Listed status restricts alterations; consents likely required
- City-centre location with very high local crime and deprivation
An impressive Grade II listed Georgian terrace, newly refurbished across three floors, offering more than 3,100 sqft of flexible family living in the heart of historic Carlisle. The house centres on a bright, south-facing kitchen diner with a central island and French doors to a private courtyard, while a generous main living room and stove create warm, characterful reception space.
Five double bedrooms and three contemporary bathrooms spread over three levels provide versatile accommodation for families, home-working or multigenerational living. Practical spaces include a boot/utility room, dressing room off the principal bedroom and secure gated off-street parking — rare for a central location. The property is chain-free and within easy walking distance of the train station, Cathedral quarter and local schools.
Buyers should note the home’s listed status: any alterations will require consent and could complicate future works. The property sits in a city-centre area with higher local crime rates and economic deprivation; prospective purchasers should satisfy themselves on security and insurance implications. Otherwise, the house is ready to move into following a high-standard refurbishment and benefits from excellent mobile and broadband connectivity.
4 bedroom town house for sale in Chiswick Street, Carlisle, CA1 — £350,000 • 4 bed • 2 bath • 1711 ft²
3 bedroom terraced house for sale in Tait Street, Carlisle, Cumbria, CA1 — £125,000 • 3 bed • 1 bath • 1123 ft²
2 bedroom end of terrace house for sale in West Street, Wigton, Cumbria, CA7 9NX, CA7 — £160,000 • 2 bed • 1 bath • 1086 ft²
5 bedroom town house for sale in Devonshire Terrace, Carlisle, CA3 — £500,000 • 5 bed • 1 bath • 2303 ft²
5 bedroom character property for sale in 6 Chapel Brow, Carlisle, Cumbria, CA1 — £395,000 • 5 bed • 5 bath • 3449 ft²
3 bedroom end of terrace house for sale in Broad Street, Carlisle , CA1 — £180,000 • 3 bed • 1 bath • 1045 ft²


































































































































































