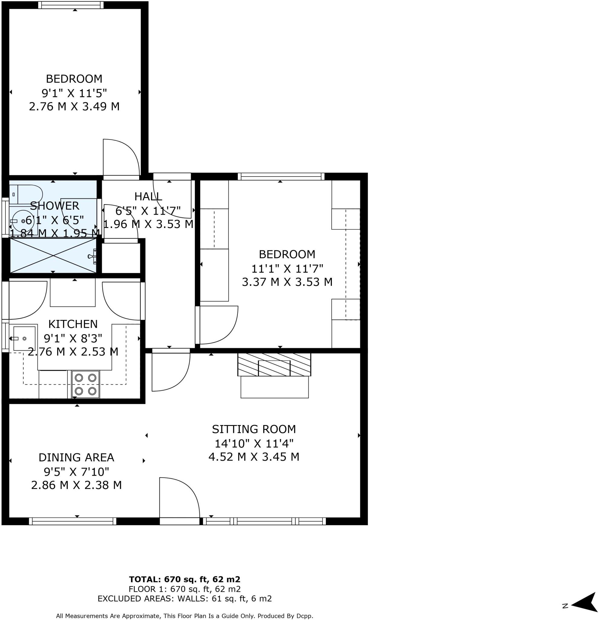
Detached two-bedroom single-storey bungalow on generous plot
Set on a generous plot in the popular village of Barrow, this two-bedroom detached bungalow offers a practical single-storey layout with good parking and scope to improve. The sitting/dining room and compact kitchen give a usable living arrangement suited to a couple, small family or downsizer. Mature shrubs and a lawned rear garden create outdoor privacy and potential for landscaping or extension (subject to consent).
The property is offered chain free and has a long driveway leading to a single garage, with room for multiple vehicles. Heating is by oil-fired central heating; mains services are connected. Broadband and mobile coverage are available locally; schools nearby include an Outstanding primary, making the location family-friendly.
Externally and internally the bungalow needs updating: wallpaper, worn carpets and dated fittings are evident and external landscaping is overgrown. The house is presented as a refurbishment opportunity or easy-to-manage home rather than a move-in-perfect property. Buyers should note the need for maintenance and potential costs to modernise decor, services or garden areas.
Overall this detached bungalow offers a quieter village setting, a manageable single-storey layout and scope to add value through refurbishment. It will suit purchasers seeking a redevelopment project, downsizers who want ground-floor living, or investors targeting steady rental demand in a very affluent, low-crime area.



























































