**Standout Features:**
- Ideal for first-time buyers and investors
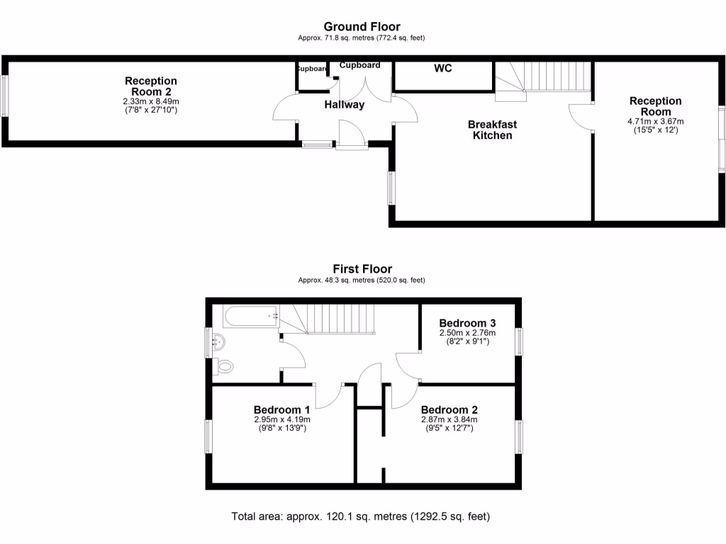
- Spacious 3-bedroom layout with 2 reception rooms
- Extended property offering additional living space
- Generous breakfast kitchen with modern amenities
- Private driveway accommodating 2 cars
- Chain-free sale, simplifying the purchasing process
- Average crime rates with excellent mobile and fast broadband connections
- Low council tax and potential rental income of approximately £1,100 p/m
**Summary:**
This charming mid-20th century terraced home in B77 2EE offers a unique blend of comfort and investment potential, making it an excellent choice for first-time buyers or investors. With 1,292 square feet of space, the layout includes three spacious bedrooms and two reception areas, with the reimagined garage serving as a multi-functional room—ideal for a home office or additional bedroom.
The generous breakfast kitchen boasts contemporary finishes, including a spacious layout with modern appliances, while the lounge features inviting French doors that lead to a private rear garden. Outdoor enthusiasts will appreciate the patio and raised lawn area, perfect for relaxing or entertaining.
Although the home presents some upkeep requirements, it’s an opportunity to personalize and create the perfect living space. Conveniently situated near well-rated schools and local amenities, this property offers great access to the community while maintaining a sense of privacy. Don't miss the chance to view and discover the potential of this lovely home—ideal for comfortable family living or investment strategies!
2 bedroom terraced house for sale in Browning Close, Tamworth, B79 — £198,000 • 2 bed • 1 bath • 991 ft²
3 bedroom semi-detached house for sale in Belmont Road, Wilnecote, Tamworth, B77 — £235,000 • 3 bed • 1 bath • 1013 ft²
3 bedroom terraced house for sale in Wandsbeck, Tamworth, B77 — £190,000 • 3 bed • 1 bath • 770 ft²
3 bedroom end of terrace house for sale in Lothersdale, Wilnecote, Tamworth, Staffordshire, B77 — £180,000 • 3 bed • 1 bath • 600 ft²
3 bedroom link detached house for sale in Swindale, Wilnecote, Tamworth, B77 — £280,000 • 3 bed • 1 bath • 1028 ft²
3 bedroom terraced house for sale in Kirtley, Tamworth, Staffordshire, B77 — £169,950 • 3 bed • 1 bath • 555 ft²






















































