**Standout Features:**
- No onward chain for a quick move-in.
- Modern kitchen and newly fitted boiler.
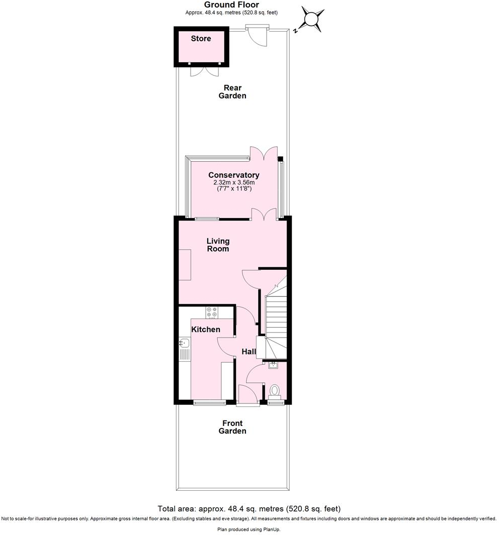
- Bright lounge/diner with double doors leading to a conservatory.
- Enclosed southeast-facing garden, ideal for sunny days.
- Allocated rear parking and a convenient location near York city center and Huntington village.
- Well-presented with a high standard of finish throughout.
*Potential Downsides:*
- Average-sized rooms, may feel compact for larger families.
- Solid brick walls with no insulation may require heating adjustments for energy efficiency.
- Crime rate in the area is above average.
Nestled in a family-friendly neighborhood, this charming three-bedroom mid-terrace offers a seamless blend of comfort and convenience. With no onward chain, prospective buyers can enjoy a hassle-free transition to this beautifully maintained home. The modern kitchen and spacious lounge/diner are perfect for family gatherings, while the sunny conservatory provides an inviting space to unwind.
The enclosed rear garden, complete with a storage shed, is low-maintenance—ideal for those who appreciate outdoor space without excessive upkeep. Off-road parking for two cars adds to the property's practicality.
Located just a short distance from York city center and with excellent transport links, this home is perfect for first-time buyers or families looking to settle in a thriving urban environment. Don't miss out on this opportunity—viewing is highly recommended to fully appreciate everything this property has to offer!
3 bedroom link detached house for sale in Turner Close, York, YO31 — £320,000 • 3 bed • 1 bath • 859 ft²
3 bedroom terraced house for sale in Pottery Lane, York, YO31 8SR, YO31 — £240,000 • 3 bed • 1 bath • 837 ft²
2 bedroom terraced house for sale in Huntington Road, York, YO31 — £260,000 • 2 bed • 1 bath • 601 ft²
3 bedroom terraced house for sale in Burton Stone Lane, York YO30 6EX, YO30 — £280,000 • 3 bed • 1 bath • 914 ft²
3 bedroom end of terrace house for sale in Byland Avenue, York, YO31 — £240,000 • 3 bed • 2 bath • 1150 ft²
3 bedroom semi-detached house for sale in Whitestone Drive, York, North Yorkshire, YO31 — £270,000 • 3 bed • 1 bath • 988 ft²


















































