**Standout Features:**
- Stunning seaside location, just a short walk to Minnis Bay
- Character-filled Victorian terrace with original features
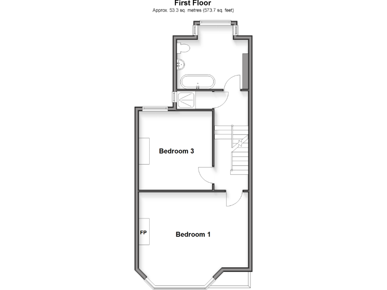
- Private balcony from the primary bedroom with breathtaking sea views
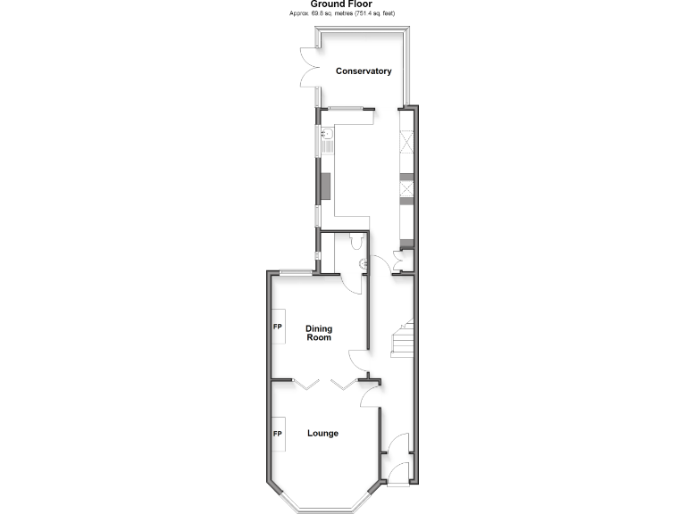
- Versatile living space with 4 bedrooms and 2 bathrooms
- Spacious lounge and dining areas ideal for family living and entertaining
- Private courtyard garden, perfect for outdoor gatherings
- Strong local amenities and schools rated "Good"
**Potential Downsides:**
- Solid brick walls with assumed no insulation
- Older double glazing (installed pre-2002) may require updates
Welcome to your dream coastal retreat! This charming Victorian terrace, located in an affluent area of CT7, balances timeless elegance with modern comforts, making it the perfect family home or investment opportunity. Imagine waking up in the spacious main bedroom, stepping out onto your private balcony to savor morning sea views. The seamless flow between the lounge, dining room, and contemporary courtyard garden enhances both relaxation and entertaining. With four generous bedrooms and a well-appointed kitchen, this home adapts to your family's lifestyle while being a short stroll from the beach, local shops, and excellent schools. Although it boasts solid brick construction typical of its era with minimal insulation, its character and location are unparalleled. Take advantage of this rare opportunity to own a home that blends seaside charm with comfortable living—don’t let this slip away!



































































































