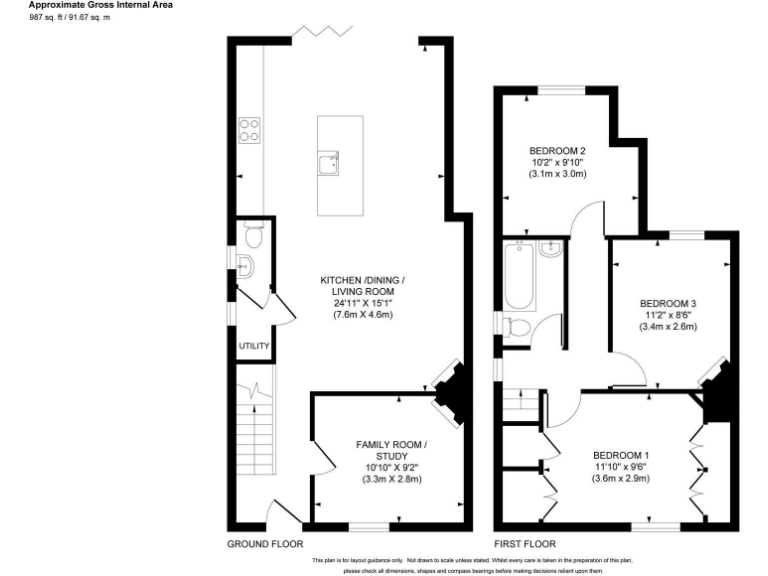
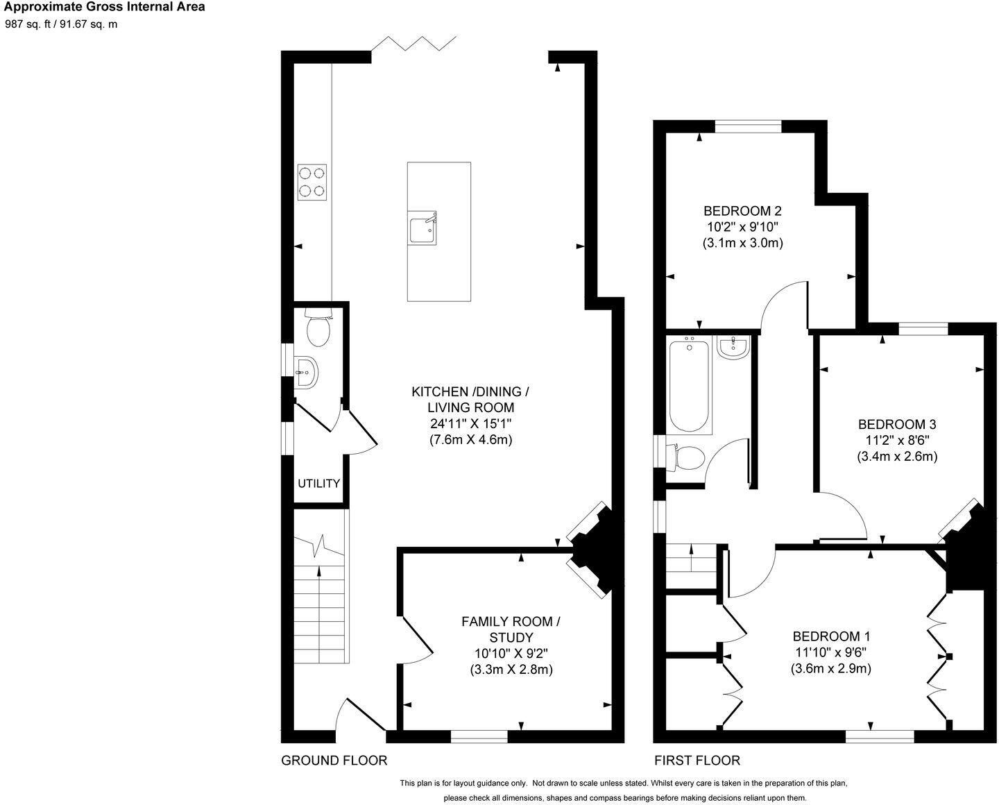
**Standout Features:**
- Extended semi-detached home with modern finishes
- 3 spacious double bedrooms and a sleek family bathroom
- Expansive 25’ x 15’ open-plan kitchen/living area with bi-fold doors to the garden
- 94’ x 24’ south-easterly facing garden ideal for outdoor entertaining
- Conveniently located near St Wilfrid's school and a 20-minute walk to the railway station
- Off-road parking for 2 vehicles
- EPC rating: C; Council Tax Band: D
This beautifully extended semi-detached home presents an ideal opportunity for families seeking space and modern living in a desirable neighborhood. The heart of the home is a stunning open-plan kitchen and living area bathed in natural light, seamlessly connecting indoor and outdoor spaces through bi-fold doors that lead to a generous south-easterly facing garden, perfect for children or summer gatherings. With three double bedrooms and a modern bathroom, the property is designed for both comfort and practicality.
While the overall structure is in good condition, the property does present some scope for future renovations to personalize as your own. Located just moments away from excellent schools and local amenities, this home offers both convenience and community. Whether you're a family looking for a comfortable place or an investor seeking rental potential in an affluent area, this property is a must-see. Act quickly—homes like this don’t stay on the market long!



















































































