PA24 8AD - 4 bed lochside four bedroom bungalow in Argyll And Bute, PA…

View on Property Piper

4 bedroom bungalow for sale in Lochgoilhead, Cairndow, Argyll and Bute, PA24

Summary - NYALI, CAIRNDOW, LOCHGOILHEAD PA24 8AD

4 bed 2 bath Bungalow

Detached bungalow with loch views, gardens and garage — sold by modern auction..
Four bedrooms plus flexible 5/6 principal rooms
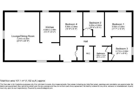
Set on the wooded slopes beside Loch Goil, this detached four‑bed bungalow offers versatile single‑storey accommodation and scenic loch views from the front lounge/dining room. The L‑shaped hallway leads to a bright living/dining space, a modern fitted kitchen with integrated appliances, four bedrooms and separate W.C., arranged over an easy, adaptable 1,152 sq ft layout. Private rear gardens and a detached garage provide secure parking and outdoor space.

The property has been run successfully as a holiday let and will suit families, second‑home buyers or investors seeking a seasonal rental in the Loch Lomond & The Trossachs National Park. Practical features include double glazing and oil central heating; the nearby Drimsynie leisure facilities, local shops, golf and watersports add appeal for visitors and residents alike.

Important sale terms and practical notes: this is offered by the Modern Method of Auction. The buyer must sign a Reservation Agreement, pay a non‑refundable reservation fee of 4.20% of the purchase price (minimum £6,000) and complete within a 56‑day reservation period. Broadband speeds are reported as slow in the area, council tax is above average and the location sits within an ageing rural neighbourhood with higher local deprivation indices. The property’s oil boiler and rural services should be inspected and budgeted for.

Overall, Nyali presents a turn‑key holiday or family home in a rare, peaceful lochside setting with clear rental potential. Prospective buyers should factor the auction terms, reservation fee and local service limitations into any purchase decision.

Property Details

Brochure Descriptions

Image Descriptions

Floorplan Description

Rooms

Textual Property Features

Target Audience

AI Tags

Detected Visual Features

Nearest Bars And Restaurants

,,,,}

Nearest General Shops

,,}

Nearest Grocery shops

,,}

Nearest Supermarkets

,,}

Nearest Religious buildings

,,}

Nearest Medical buildings

,,,}

Nearest Leisure Facilities

,,,,}

Nearest Tourist attractions

,,}

Nearest Train stations

,,,,}

Nearest Bus stations and stops

,,,,}

Nearest Hotels

,,}

Tags

Local Market Stats

AirBnB Data

Similar Properties

Meta

High Res Images

Compatible Images

Low res Images

Thumbnails

Raw Images

High Res Floorplan Images

Compatible Floorplan Images

Low res Floorplan Images

FloorplanImages Thumbnail

Raw Floorplan Images