Sophisticated 34th-floor riverside living with premium on-site facilities.
Panoramic river and London skyline views from 34th floor
Bright open-plan living with floor-to-ceiling windows
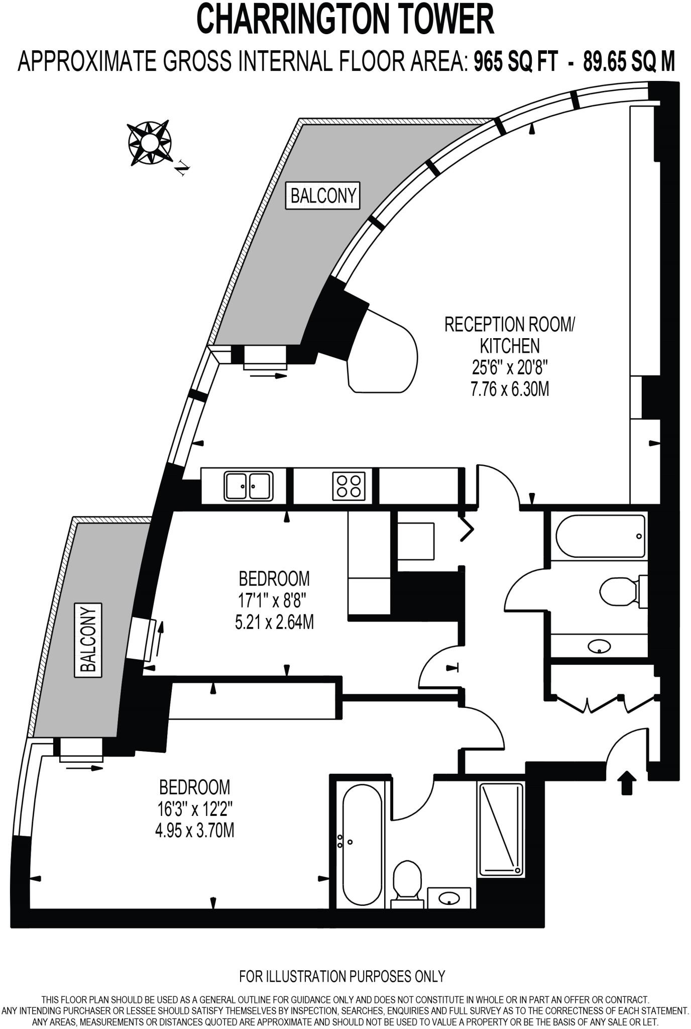
Two double bedrooms and two bathrooms; generous 965 sq ft
On-site pool, spa, residents' gym and 24-hour concierge
High-quality Siemens kitchen and wood flooring throughout
Leasehold tenure with community heating scheme in place
Ground rent £800 (noted as expensive); check service charges
Inner-city, multicultural area — lively atmosphere, strong amenities
Set on the 34th floor, this dual-aspect two-bedroom, two-bath apartment delivers sweeping panoramic river and city skyline views. Floor-to-ceiling windows and an open-plan reception create a bright, modern living space; quality finishes include wood flooring and Siemens kitchen appliances. At about 965 sq ft, the layout feels generously proportioned for central-London apartment living.
Residents benefit from substantial on-site leisure facilities — swimming pool, health spa, gym — plus 24-hour concierge and secure riverside access. Fast broadband and excellent mobile signal support home working. The building sits in a lively, inner-city neighbourhood with abundant cafés, restaurants and transport links, while several good and outstanding primary and secondary schools are within reach.
Buyers should note the property is leasehold with a relatively high ground rent (£800) and community heating supplied through a communal scheme. High-floor living relies on lift access and can mean additional vertical travel; service charges and remaining lease length should be reviewed before offer. The immediate area is multicultural and active, which suits urban professionals but may feel busy for those seeking a quieter suburb.
Overall, this apartment suits buyers seeking a stylish riverside home with strong amenity provision and excellent views — and investors targeting high-demand central-London rental or short-term letting potential. Considerations around tenure costs and lift-dependence are the main practical drawbacks.
1 bedroom apartment for sale in Charrington Tower, London, E14 — £415,000 • 1 bed • 1 bath • 550 ft²
1 bedroom apartment for sale in Charrington Tower, London, E14 — £500,000 • 1 bed • 1 bath • 605 ft²
2 bedroom apartment for sale in New Providence Wharf, 1 Fairmont Avenue, E14 — £600,000 • 2 bed • 1 bath • 748 ft²
2 bedroom apartment for sale in New Providence Wharf, London, E14 — £625,000 • 2 bed • 2 bath • 878 ft²
2 bedroom apartment for sale in New Providence Wharf, Fairmont Avenue, E14 — £595,000 • 2 bed • 2 bath • 1021 ft²
2 bedroom flat for sale in Fairmont Avenue, London, E14 — £625,000 • 2 bed • 2 bath • 871 ft²


















































