DH7 7BB - 3 bedroom semidetached house for sale in Cook Avenue, Bearp…

View on Property Piper

3 bedroom semi-detached house for sale in Cook Avenue, Bearpark, DH7

Summary - 27 COOK AVENUE BEARPARK DURHAM DH7 7BB

3 bed 1 bath Semi-Detached

**Standout Features:**
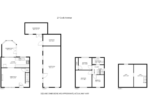
- Spacious 23 x 11.5ft crafting room
- Large summerhouse, ideal for outdoor activities
- Three bedrooms, plus two extra rooms in loft
- Off-street parking for two cars
- Brand new carpets throughout
- Well-maintained and presented
- Freehold property with a garden

**Concise Summary:**
Discover this beautifully presented three-bedroom semi-detached home in Bearpark, perfect for families and creative enthusiasts alike. Featuring a remarkable 23 x 11.5ft crafting room and a large summerhouse, this property offers plenty of outdoor and creative space for hobbies or relaxation. Inside, you’ll find bright, airy living spaces adorned with brand new carpets, seamlessly flowing between the well-appointed kitchen and inviting living room.

The upper level boasts three generous bedrooms, complemented by two additional flexible rooms in the loft—perfect for a home office, children's playroom, or cozy reading nook. Off-street parking for two cars adds convenience, and the garden provides a lovely backdrop for enjoying the outdoors.

Located in a friendly neighborhood close to amenities and schools—including outstanding-rated options—this home successfully combines modern comforts with versatility, making it a rare gem in today’s market. With its inviting atmosphere and potential for future renovations, this property is a canvas for your vision of an idyllic lifestyle. Act quickly—homes like this are in high demand! EPC Rating: E.

Property Details

Image Descriptions

Floorplan Description

Rooms

Textual Property Features

Detected Visual Features

EPC Details

Nearby Schools

Nearest Bars And Restaurants

,,,,}

Nearest General Shops

,,}

Nearest Grocery shops

,,}

Nearest Supermarkets

,,}

Nearest Religious buildings

,,}

Nearest Medical buildings

,,,}

Nearest Leisure Facilities

,,,,}

Nearest Tourist attractions

,,}

Nearest Train stations

,,,,}

Nearest Bus stations and stops

,,,,}

Nearest Hotels

,,}

Tags

Local Market Stats

Similar Properties

Meta

High Res Images

Compatible Images

Low res Images

Thumbnails

Raw Images

High Res Floorplan Images

Compatible Floorplan Images

Low res Floorplan Images

FloorplanImages Thumbnail

Raw Floorplan Images