**Standout Features:**
- Development opportunity for custom-built homes with a design and planning agreement with Potton Homes
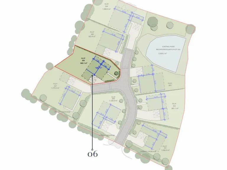
- Eight serviced plots with completed infrastructure (roads, drainage, utilities)
- Varied house styles available, ranging from 340 sqm (3658 sqft) to 490 sqm (5272 sqft)
- Large plot area of 940.1 sqm for Plot 6, ideal for spacious residential designs
- Picturesque rural setting in a tranquil Wealden village, with low crime rates
- Proximity to Headcorn mainline railway station (3 miles away)
**Summary:**
This exceptional development opportunity on Burnt House Lane in Smarden offers the canvas for your dream home in a stunning rural location. With eight serviced plots ready for build, each designed in collaboration with Potton Homes, you can select from flexible house styles that cater to your personal vision. Plot 6, encompassing a generous 940.1 sqm and a gross internal area of 340 sqm (3658 sqft), is primed for a spacious residence surrounded by serene countryside views.
Set within the affluent and peaceful Smarden hamlet, this plot allows you to escape the hustle of urban life while still being conveniently located just three miles from a mainline railway station. Though broadband speeds nearby are slow, this tranquil haven boasts beautiful natural surroundings, perfect for those seeking a balanced lifestyle with potential for future expansion. With strong local schools nearby and a growing community atmosphere, this opportunity is one not to be missed. Secure your chance to create a bespoke home in this idyllic setting today!
Plot for sale in Burnt House Lane, Smarden, TN27 — £470,000 • 1 bed • 1 bath • 3658 ft²
Plot for sale in Burnt House Lane, Smarden, TN27 — £470,000 • 1 bed • 1 bath • 3701 ft²
Plot for sale in Burnt House Lane, Smarden, TN27 — £450,000 • 1 bed • 1 bath • 3766 ft²
Plot for sale in Burnt House Lane, Smarden, TN27 — £550,000 • 1 bed • 1 bath • 5057 ft²
Plot for sale in Burnt House Lane, Smarden, TN27 — £525,000 • 1 bed • 1 bath • 4626 ft²
Plot for sale in Burnt House Lane, Smarden, TN27 — £450,000 • 1 bed • 1 bath • 3658 ft²


























