Central SE1 flat ideal for refurbishment and rental potential.
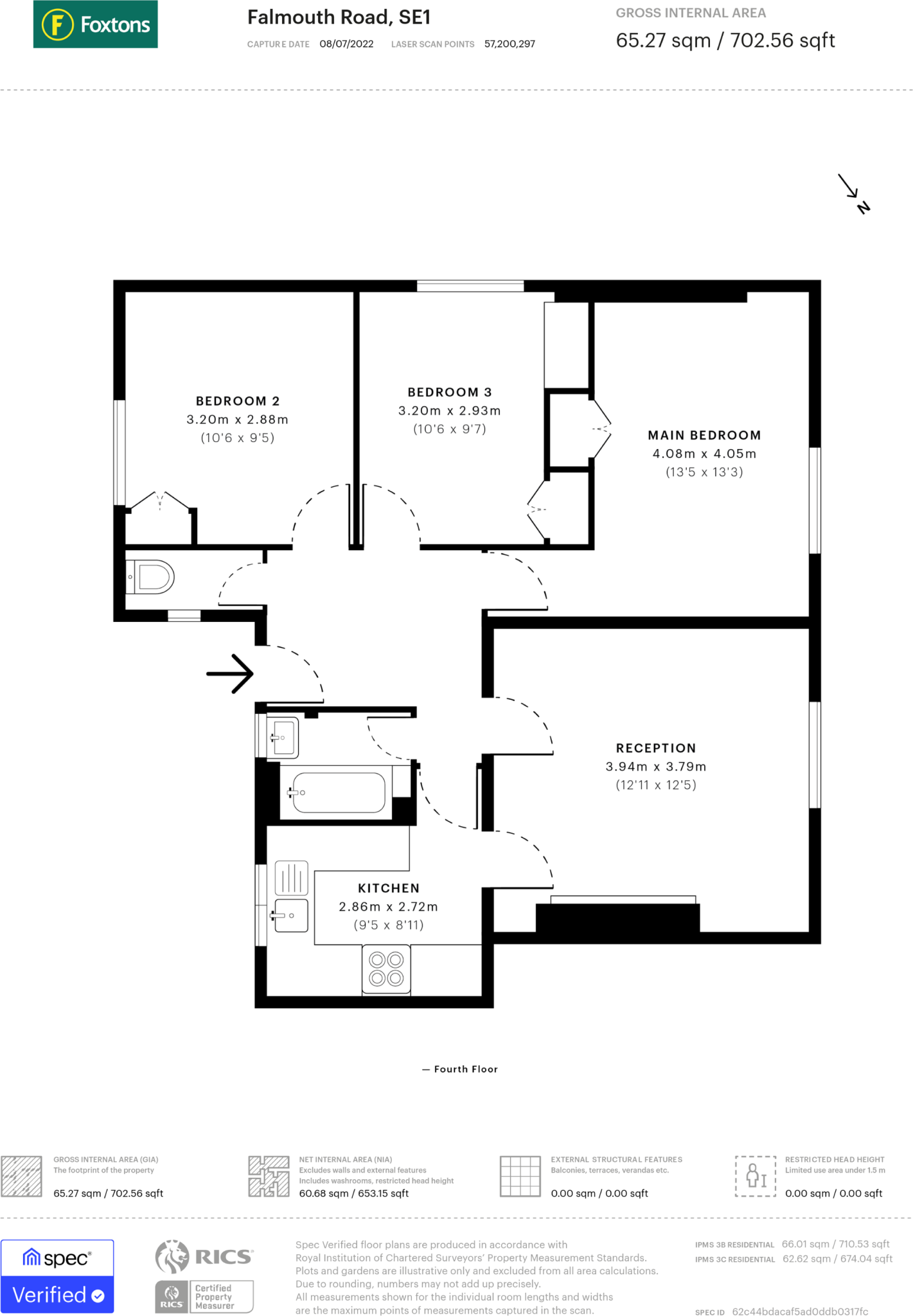
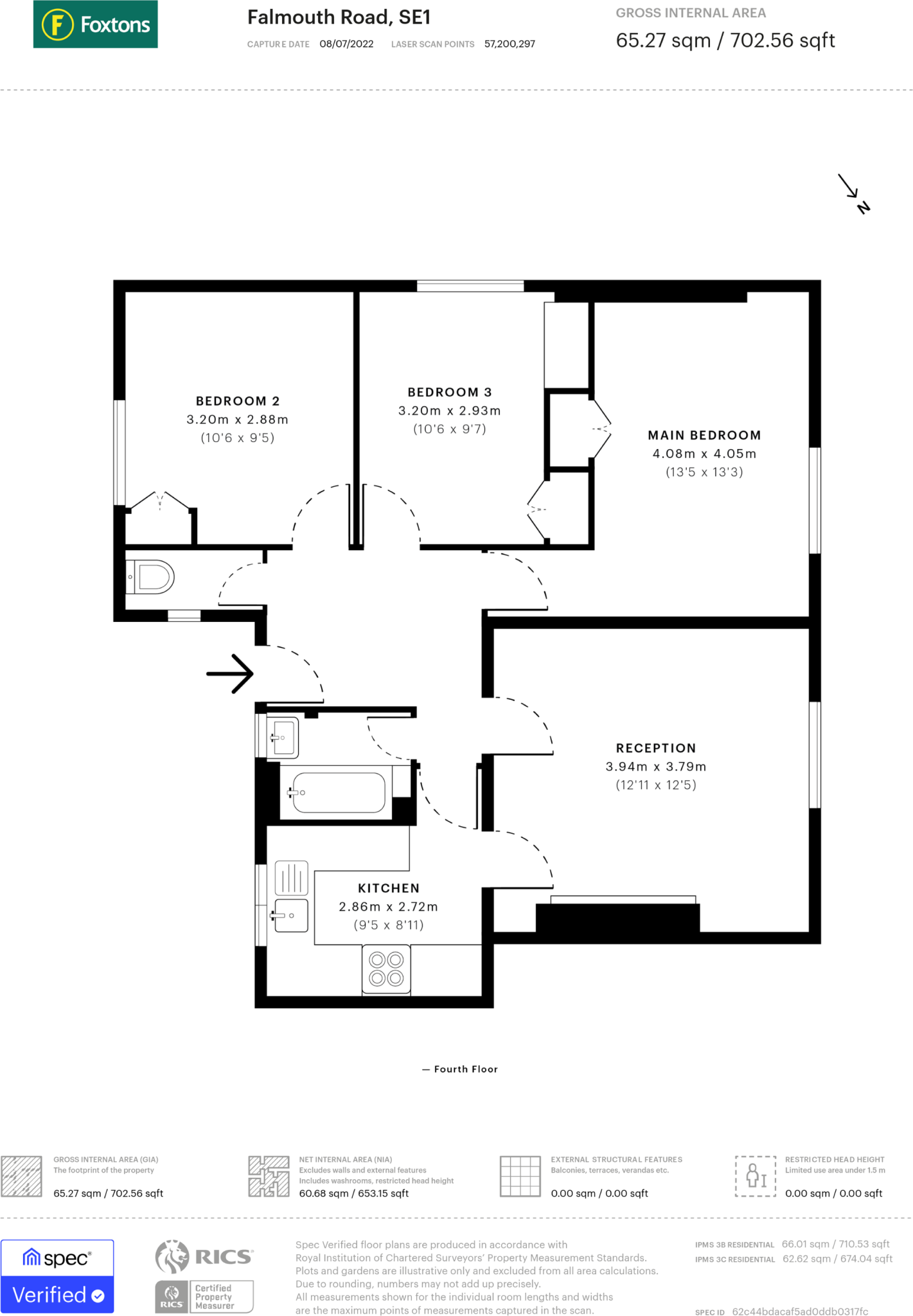
Fourth-floor three-bedroom flat with generous reception room
This fourth-floor three-bedroom flat in SE1 offers clear refurbishment potential and a generous reception room that will appeal to investors or buyers comfortable with a project. The accommodation includes three double bedrooms with fitted cupboards, a separate kitchen, bathroom plus WC, and double glazing installed after 2002.
Situated moments from Elephant & Castle Underground and mainline stations, the property benefits from excellent transport links, nearby green spaces (Newington Gardens, Dickens Fields) and a wide range of local amenities along Walworth Road. The 702 sq ft layout is straightforward and can be reconfigured to improve rental yield or create a contemporary family home.
Important practical points: the building dates from the 1950s–1960s with solid brick walls likely lacking insulation, and the flat is sold leasehold with a modest reported ground rent (£10). The property needs renovation throughout, and the local area has above-average crime rates and high deprivation indicators — factors to weigh when assessing resale or rental prospects.
For an investor prepared to refurbish, this flat offers a central location and latent value driven by transport links and nearby amenities. Buyers seeking a move-in-ready, low-risk home should note the required works and local area challenges before proceeding.
3 bedroom apartment for sale in Falmouth Road, London, SE1 — £450,000 • 3 bed • 1 bath • 708 ft²
3 bedroom flat for sale in Wesley Close, Elephant and Castle, London, SE17 — £450,000 • 3 bed • 1 bath • 813 ft²
3 bedroom flat for sale in St Gabriel Walk, Elephant and Castle, London, SE1 — £950,000 • 3 bed • 2 bath • 1172 ft²
2 bedroom ground floor flat for sale in Balfour Street, London, SE17 — £350,000 • 2 bed • 1 bath • 640 ft²
3 bedroom apartment for sale in Stephenson House, Bath Terrace, SE1 — £450,000 • 3 bed • 1 bath • 679 ft²
2 bedroom flat for sale in Pilton Place, Elephant and Castle, London, SE17 — £400,000 • 2 bed • 1 bath • 927 ft²






















































































































