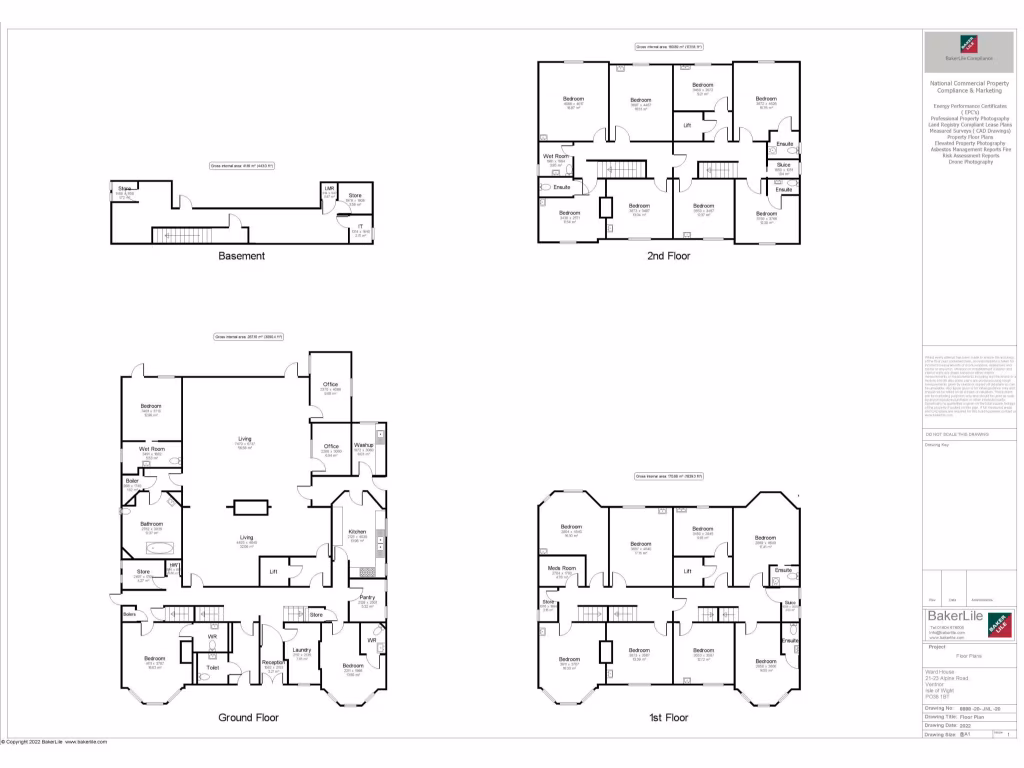
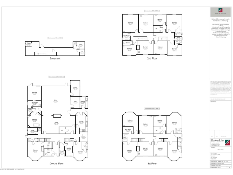
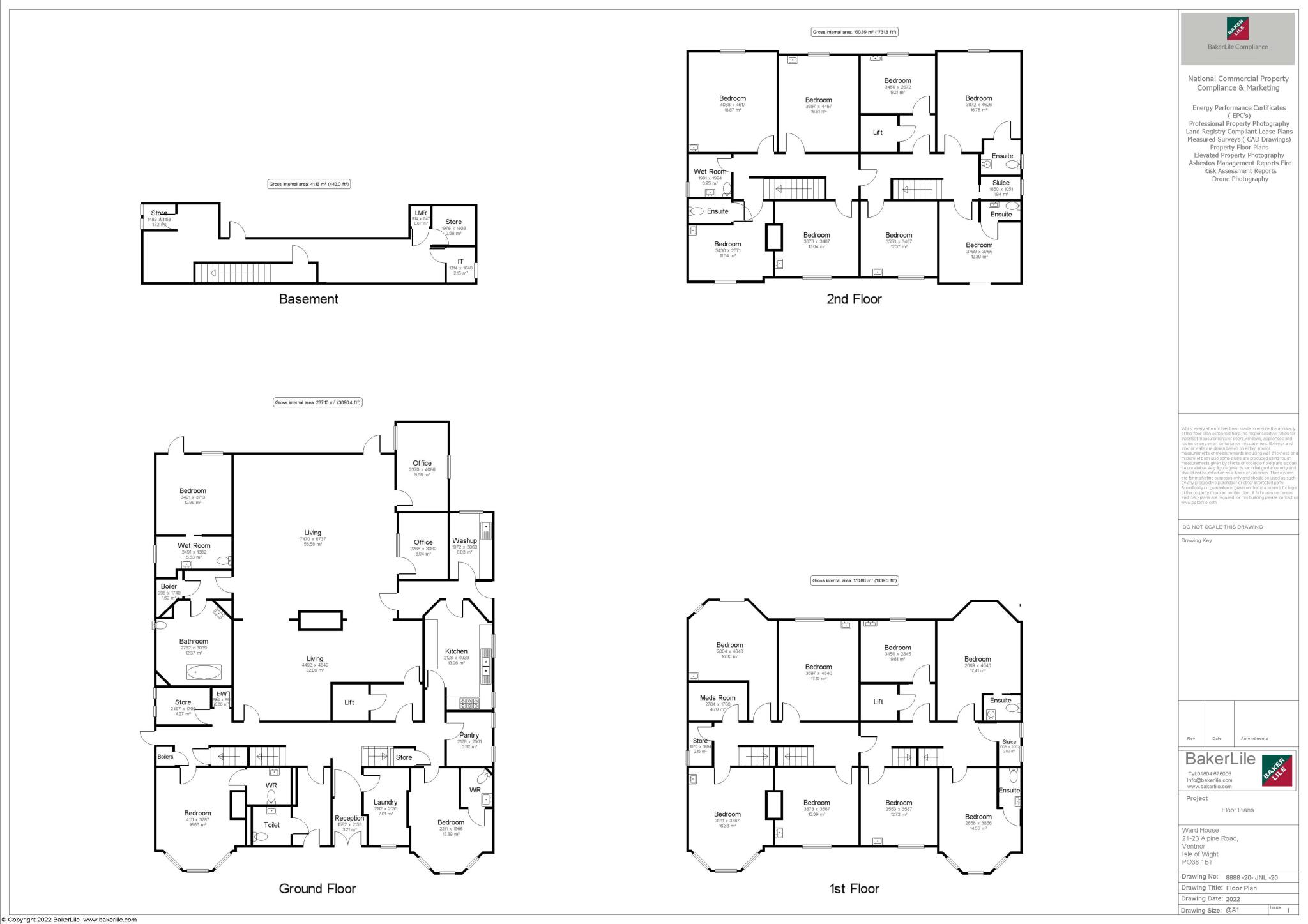
**Standout Features:**
- 19 bedrooms, 8 with en suite facilities
- Stunning panoramic sea views over the English Channel
- Large ground floor lounge with an extension leading to an enclosed garden
- Off-street parking for 3-4 cars
- Historical Victorian architecture with high ceilings and period features
- Excellent potential for redevelopment (subject to planning permission)
- Located close to Ventnor town center and local amenities
- EPC rating: B
**Potential Concerns:**
- Property requires modernization and maintenance
- Currently a closed former care home
This expansive former nursing home, totaling over 13,500 sq ft, offers an exceptional opportunity for investors or developers looking to create a unique residential or commercial venture. Ideally located in Ventnor with breathtaking sea views, this property features 19 spacious bedrooms, including multiple en suites, making it suitable for a variety of uses—from a revitalized care home to residential apartments or a boutique hotel.
The layout maintains its original charm with high ceilings and period features. The addition of a generous lounge and enclosed garden allows for ease of lifestyle while taking in the coastal vistas. With off-street parking accommodating several vehicles, practicality meets potential in this property.
While the building does require modernization, its prime location near local amenities—such as shops, restaurants, and schools—combined with the opportunity for redevelopment, makes it an attractive investment. Don’t miss this chance to turn your vision into reality in a historic coastal town—schedule a viewing to explore the vast possibilities awaiting you!
Detached house for sale in Ward House, 21-23 Alpine Road,Ventnor, Isle Of Wight, PO38 1BT, PO38 — £650,000 • 1 bed • 1 bath • 10621 ft²
15 bedroom detached house for sale in Park Road, Shanklin, PO37 — £595,000 • 15 bed • 15 bath • 4371 ft²
6 bedroom terraced house for sale in Southgrove Road, Ventnor, Isle of Wight, PO38 — £625,000 • 6 bed • 4 bath • 2328 ft²
3 bedroom semi-detached house for sale in Ventnor, Isle of Wight, PO38 — £374,950 • 3 bed • 2 bath • 883 ft²
5 bedroom semi-detached house for sale in Altofts Gardens, Ventnor, Isle of Wight, PO38 — £470,000 • 5 bed • 2 bath • 1714 ft²
5 bedroom end of terrace house for sale in West Street, Ventnor, Isle of Wight, PO38 — £425,000 • 5 bed • 2 bath • 1063 ft²






















































