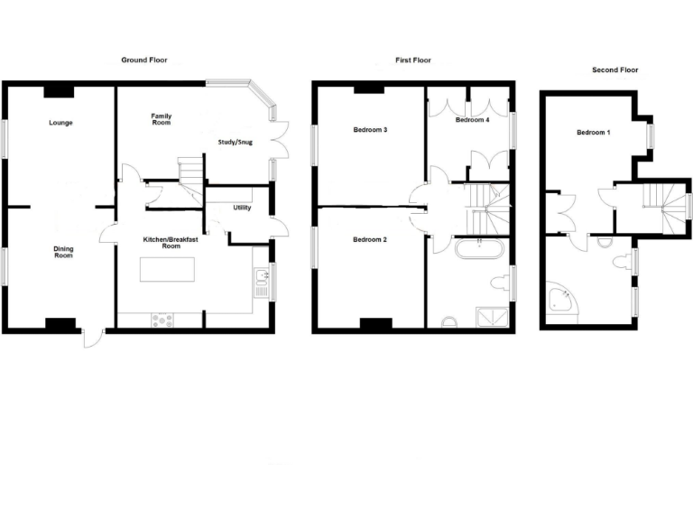
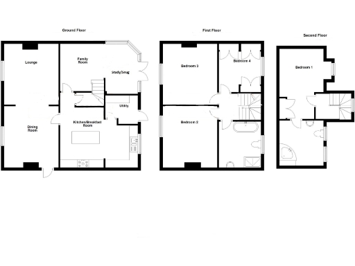
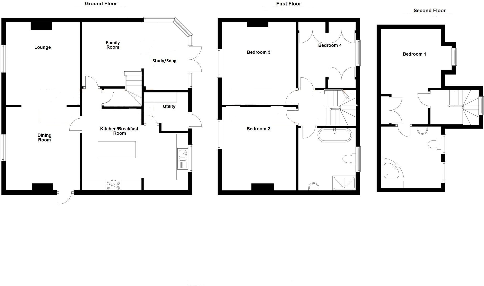
**Standout Features:**
- Four spacious bedrooms (one with an en-suite)
- Three versatile reception rooms
- Updated kitchen/breakfast area
- Enclosed rear garden with low maintenance artificial turf
- Driveway parking for convenience
- Located in a picturesque village near Wicken Fen National Trust
**Potential Concerns:**
- Average crime rate in the local area
- Potential for structural updates and personal renovations
- Small plot size may limit expansion options
Discover the charm of Primrose Cottage, a delightful four-bedroom detached home situated in the heart of Wicken, Ely. This period property boasts three light-filled reception rooms perfect for family gatherings, alongside an updated kitchen/breakfast room that invites culinary creativity. The well-appointed en-suite in the master bedroom and a luxurious four-piece family bathroom provide modern comforts, while the versatile layout ensures it can adapt to your family’s needs.
Step outside to find a tranquil, enclosed garden—ideal for relaxing or entertaining on the patio—complemented by low-maintenance artificial grass for effortless upkeep. Enjoy the allure of village life with easy access to the beautiful Wicken Fen and a community rich in charm. While the average crime rate and small plot may raise considerations, the property’s potential for personalization and its inviting ambiance make it a compelling choice for families or first-time buyers seeking comfort in a peaceful setting. With convenience and village charm at your doorstep, don’t miss your chance to call this home!
4 bedroom cottage for sale in Isleham, Ely, CB7 — £700,000 • 4 bed • 2 bath • 2089 ft²
4 bedroom detached house for sale in Stretham Road, Wicken, CB7 — £595,000 • 4 bed • 2 bath • 2378 ft²
2 bedroom cottage for sale in North Street, Wicken, CB7 — £289,950 • 2 bed • 1 bath • 948 ft²
4 bedroom semi-detached house for sale in High Street, Castle Camps, Cambridge, CB21 — £600,000 • 4 bed • 2 bath • 1761 ft²
3 bedroom semi-detached house for sale in Fieldside, Ely, Cambridgeshire, CB6 — £335,000 • 3 bed • 1 bath • 947 ft²
2 bedroom semi-detached house for sale in Aldreth Road, Haddenham, Ely, Cambridgeshire, CB6 — £225,000 • 2 bed • 1 bath • 753 ft²


































































