Five-bedroom semi with estuary views, large garden and spacious family living..
Elevated location with stunning Dee Estuary views
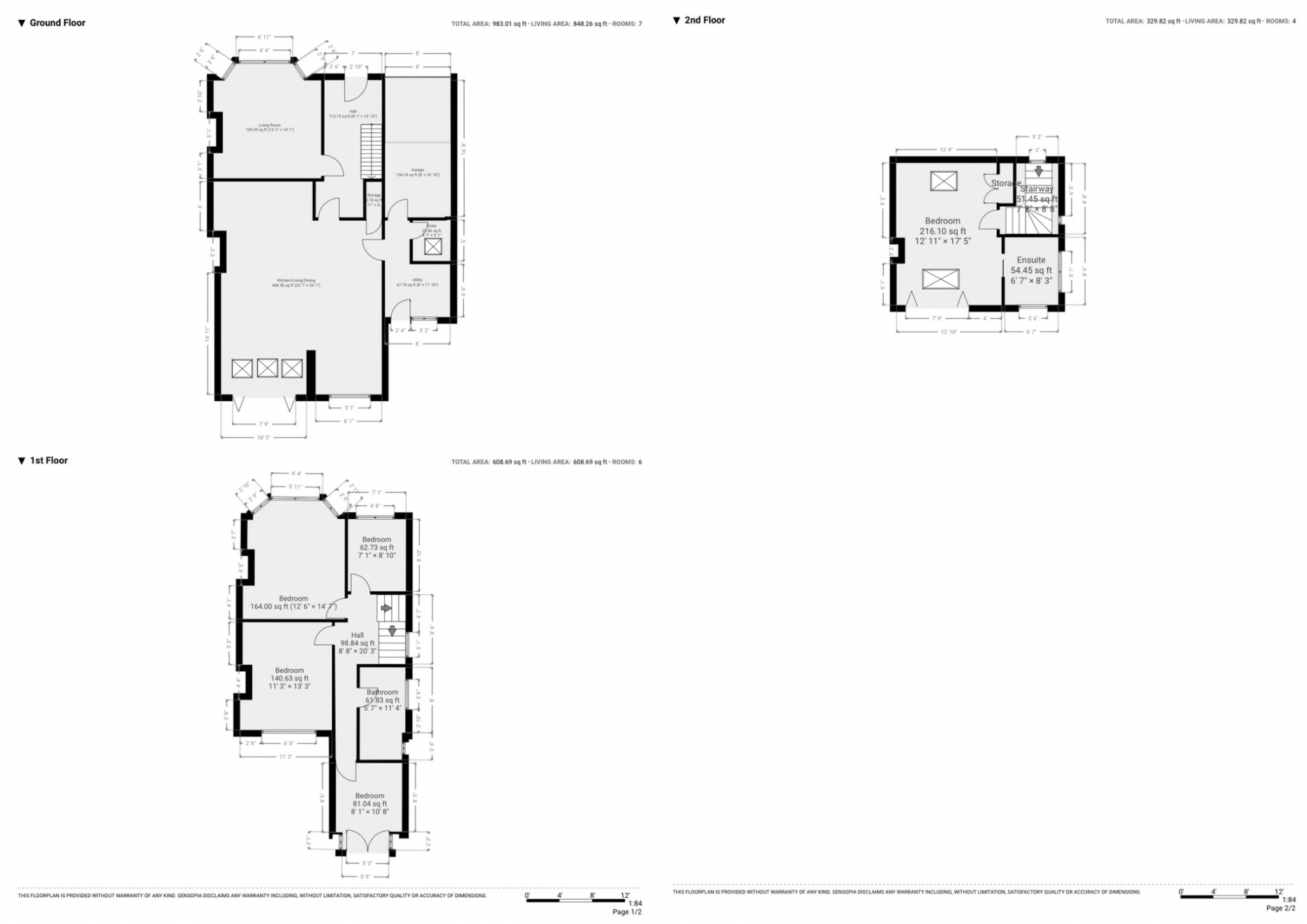
Set on an elevated plot in sought-after West Kirby, this five-bedroom semi-detached house blends 1930s character with contemporary living. The extended open-plan kitchen/diner and snug create a generous family hub with patio doors to a mature, landscaped garden and a separate summer house — ideal for indoor-outdoor living and entertaining.
Accommodation is arranged over multiple floors, with four first-floor bedrooms and a converted loft forming a bright master en suite retreat with sensational estuary views. Off-street parking for several vehicles, a single garage and decent plot size add practical family appeal. The area is very affluent with low crime, excellent mobile signal and fast broadband — strong local schools are within easy reach.
The home shows quality and thoughtful conversion work by the current owner, though there is scope for modernization in places to suit contemporary tastes. Note: official records list one main bathroom; the property description also refers to a converted master en suite — buyers should confirm exact bathroom configuration. Tenure is shown as freehold and the property is in a moderate council tax band. Flood risk is low.
This property will suit growing families seeking generous living space, estuary views and a strong suburban community. Viewing is recommended to appreciate room proportions, outdoor space and the elevated vistas across the Dee Estuary.
3 bedroom semi-detached house for sale in Lang Lane, West Kirby, Wirral, CH48 — £375,000 • 3 bed • 1 bath • 1737 ft²
4 bedroom house for sale in Sandy Lane, WIRRAL, Merseyside, CH48 — £450,000 • 4 bed • 3 bath • 1455 ft²
4 bedroom detached house for sale in Priory Road, West Kirby, Wirral, Merseyside, CH48 — £875,000 • 4 bed • 2 bath • 1500 ft²
4 bedroom detached house for sale in Gorse Lane, West Kirby, Wirral, CH48 — £850,000 • 4 bed • 2 bath • 1800 ft²
4 bedroom detached house for sale in Abbey Road, West Kirby, Wirral, Merseyside, CH48 — £720,000 • 4 bed • 2 bath • 1798 ft²
4 bedroom semi-detached house for sale in Westbourne Road, West Kirby, Wirral, Merseyside, CH48 — £475,000 • 4 bed • 2 bath • 1451 ft²






































































































































