Flexible layout, generous garden and parking close to primary schools.
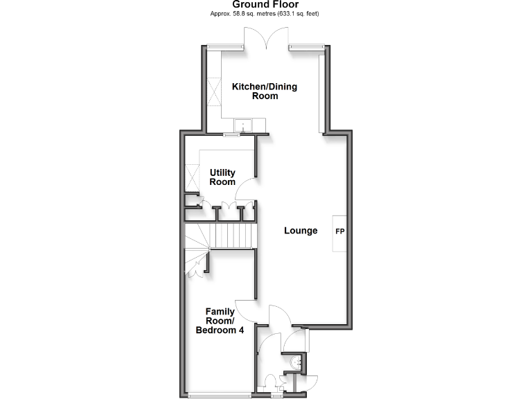
3 bedrooms plus converted garage adaptable as bedroom 4 or family room
Extended kitchen/dining room with direct garden access for entertaining
Separate modern utility room with ample storage
Beautiful rear garden with two patios and summer house
Parking for three cars and additional external storage unit
Only one family bathroom — potential bottleneck for larger families
Garage conversion: buyer to verify planning/building regulation consents
Double glazing installed before 2002; some updating may be needed
This spacious three-bedroom semi-detached house offers a flexible family layout with a converted garage that can serve as a fourth bedroom or large family room. The rear extension creates a bright kitchen/dining area opening onto a landscaped garden with two patio levels and a summer house—ideal for weekend entertaining and outdoor play.
Practical living is helped by a generous utility room, ample storage and off-street parking for up to three cars. The property is freehold, in a very affluent, low-crime area with excellent mobile and fast broadband—convenient for modern family life and home working.
Notable points to check: there is only one family bathroom, the garage conversion may require verification of planning/building regulation consents, and the double glazing dates from before 2002. The plot is modest in size, and some updating would enhance long-term comfort and energy efficiency.
Within walking distance of several well-rated primary schools and close to village amenities, this home suits families seeking roomy, adaptable accommodation near good local services and green-space in Storrington.
4 bedroom semi-detached house for sale in The Glade, Storrington, RH20 — £500,000 • 4 bed • 3 bath • 1555 ft²
4 bedroom semi-detached house for sale in Southdown Way, Storrington, RH20 — £360,000 • 4 bed • 2 bath • 1074 ft²
2 bedroom semi-detached house for sale in Storrington, RH20 — £375,000 • 2 bed • 1 bath • 617 ft²
4 bedroom detached house for sale in Hillside Road, Storrington, West Sussex, RH20 — £975,000 • 4 bed • 3 bath • 2524 ft²
5 bedroom semi-detached house for sale in Watermeadow Lane, Storrington, RH20 — £575,000 • 5 bed • 3 bath • 1261 ft²
3 bedroom semi-detached house for sale in Crowhurst Crescent, Storrington, Pulborough, West Sussex, RH20 — £350,000 • 3 bed • 1 bath • 1051 ft²






















































































