Refurbished, parking, and walkable to Waitrose and riverside amenities.
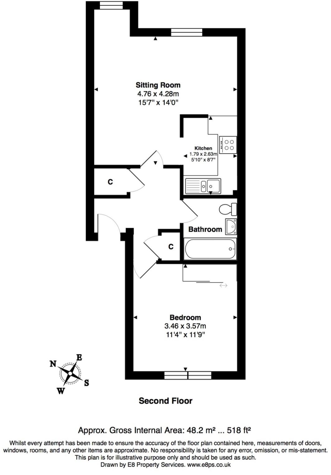
- Recently refurbished top-floor one-bedroom apartment
- Open-plan kitchen and living area, modern finish
- Double bedroom with built-in wardrobe
- 1 allocated parking space plus visitor parking
- Long lease: 154 years remaining
- Annual service charge £1,655.92 (paid quarterly)
- Electric storage heating; no mains gas
- Compact size ~518 sq ft, limited living space
A recently refurbished top-floor one-bedroom apartment in central Abingdon, ideal for a first-time buyer or investor seeking a low-maintenance town base. The open-plan kitchen/living room feels bright and modern, and the double bedroom includes a built-in wardrobe for neat storage. The property benefits from one allocated parking space and easy walking access to Waitrose, riverside walks and the town centre amenities.
Practical running costs are clear: electric storage heating, double glazing, and a long lease of 154 years remaining. Annual service charge is £1,655.92 (paid quarterly) and the property is leasehold — these are important considerations for budgeting and a conveyancer to review. There is no mains gas.
At roughly 518 sq ft, the apartment is compact but well arranged; newly renovated throughout so immediate move-in is possible without major works. Note the flat’s electric heating and timber-frame construction assumptions — buyers seeking gas central heating or period construction should factor in potential changes. Overall, this is a convenient, low-upkeep apartment in a very affluent part of Abingdon with fast broadband and excellent mobile signal, close to schools and transport links.
1 bedroom flat for sale in Abingdon, Oxfordshire, OX14 — £200,000 • 1 bed • 1 bath • 527 ft²
1 bedroom apartment for sale in Ock Mill Close, Abingdon, OX14 — £185,000 • 1 bed • 1 bath • 410 ft²
2 bedroom apartment for sale in Vineyard, Abingdon, OX14 — £275,000 • 2 bed • 2 bath • 1000 ft²
2 bedroom apartment for sale in Farriers Mews, Abingdon, OX14 — £235,000 • 2 bed • 1 bath • 669 ft²
2 bedroom apartment for sale in North Quay, Abingdon, OX14 — £235,000 • 2 bed • 2 bath • 533 ft²
1 bedroom apartment for sale in St Helens Mews, Abingdon, OX14 — £110,000 • 1 bed • 1 bath • 379 ft²


















































