Ideal family home close to an outstanding primary and woodland walks.
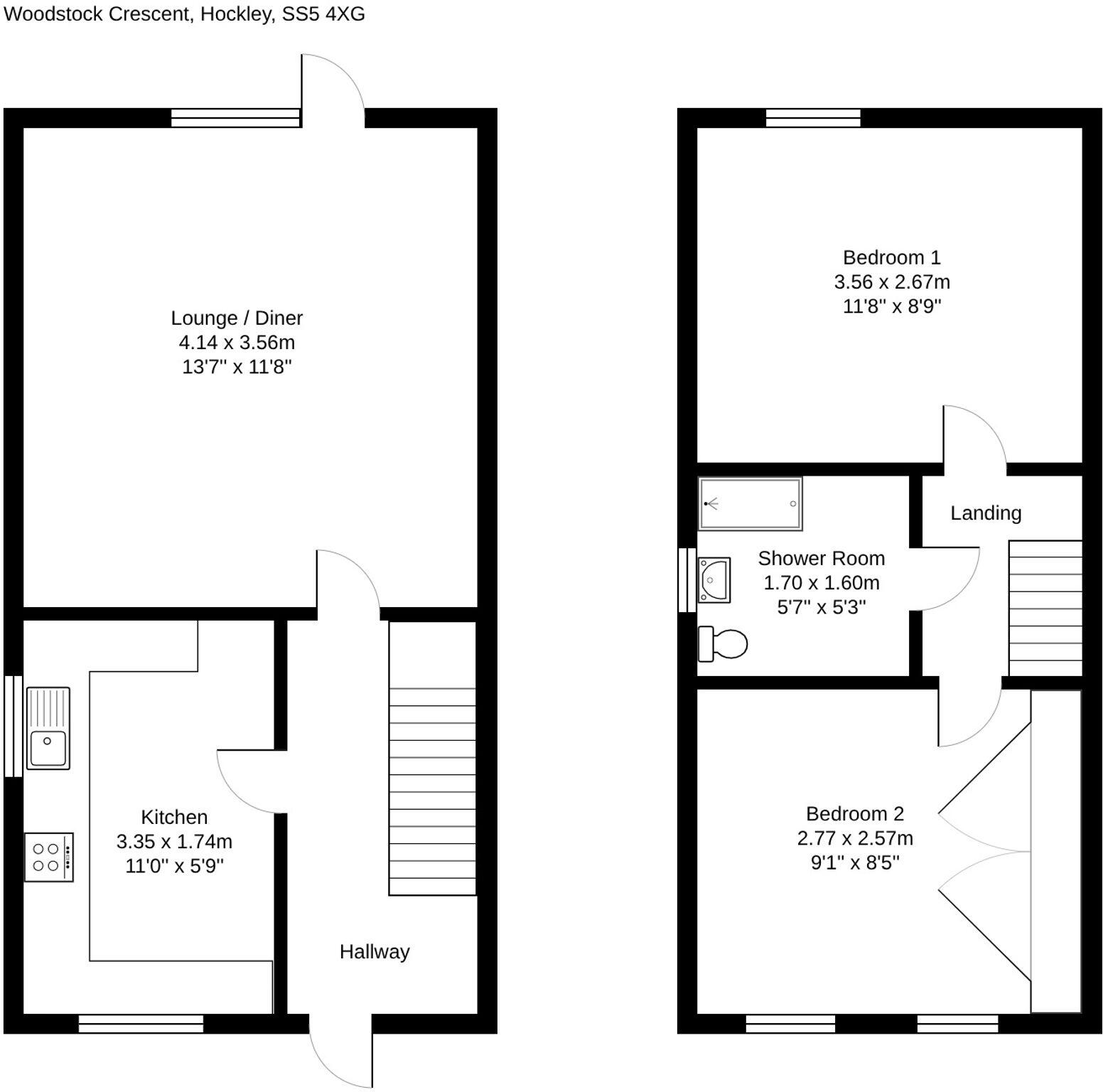
- Immaculate two-bedroom semi-detached home, 592 sq ft
- Large lounge/diner with patio doors and natural light
- Modern kitchen and impressive first-floor shower room
- 50ft rear garden, private outdoor space for families
- Two allocated off-street parking spaces included
- Short walk to Hockley station; direct trains to London
- Small overall footprint and plot; limited living space
- Double glazing pre-2002 and older build may need updates
This well-presented two-bedroom semi sits on the popular Betts Farm development, arranged across a compact 592 sq ft layout that suits growing families or first-time buyers. A bright lounge/diner and a modern kitchen provide comfortable daily living, while a sizable 50ft rear garden gives space for children to play and for outdoor entertaining.
Practical details work in your favour: two allocated off-street parking spaces, a first-floor shower room finished to a contemporary standard, and a short walk to Hockley station with direct trains to London Liverpool Street. Hockley Primary School (Outstanding) is very close by, making the location particularly convenient for families with young children.
The house is freehold, has mains gas central heating with a boiler and radiators, double glazing (installed before 2002) and an EPC rating of C. Constructed in the late 1970s–early 1980s with an assumed insulated timber frame, the property presents as low-risk for flooding and benefits from fast broadband and excellent mobile signal.
Important considerations: the overall floor area and plot are small, with just two bedrooms and one bathroom, so space is limited for larger families. Some original elements (double glazing pre-2002, mid‑late 20th century build) may need updating over time. Crime levels are average for the area.
For buyers seeking a ready-to-move-in home close to green space, schools and transport, this house offers a sensible balance of convenience, outdoor space and modern fixtures — with manageable upkeep and potential to personalise over time.
2 bedroom semi-detached house for sale in Aldermans Hill, Hockley, SS5 — £375,000 • 2 bed • 1 bath • 715 ft²
4 bedroom detached house for sale in Barnwell Drive, Hockley, SS5 — £475,000 • 4 bed • 1 bath • 1085 ft²
3 bedroom semi-detached house for sale in Caernarvon Close, Hockley, SS5 — £400,000 • 3 bed • 1 bath • 1270 ft²
1 bedroom semi-detached house for sale in Mey Walk, Hockley, SS5 — £270,000 • 1 bed • 1 bath • 496 ft²
3 bedroom semi-detached house for sale in Aldermans Hill, Hockley, Essex, SS5 — £525,000 • 3 bed • 1 bath • 947 ft²
4 bedroom detached house for sale in Belvedere Avenue, Hockley, SS5 — £525,000 • 4 bed • 1 bath • 1289 ft²


































































