Well-presented semi with private garden, garage and great commuter links.
3 bedrooms: two doubles and one single
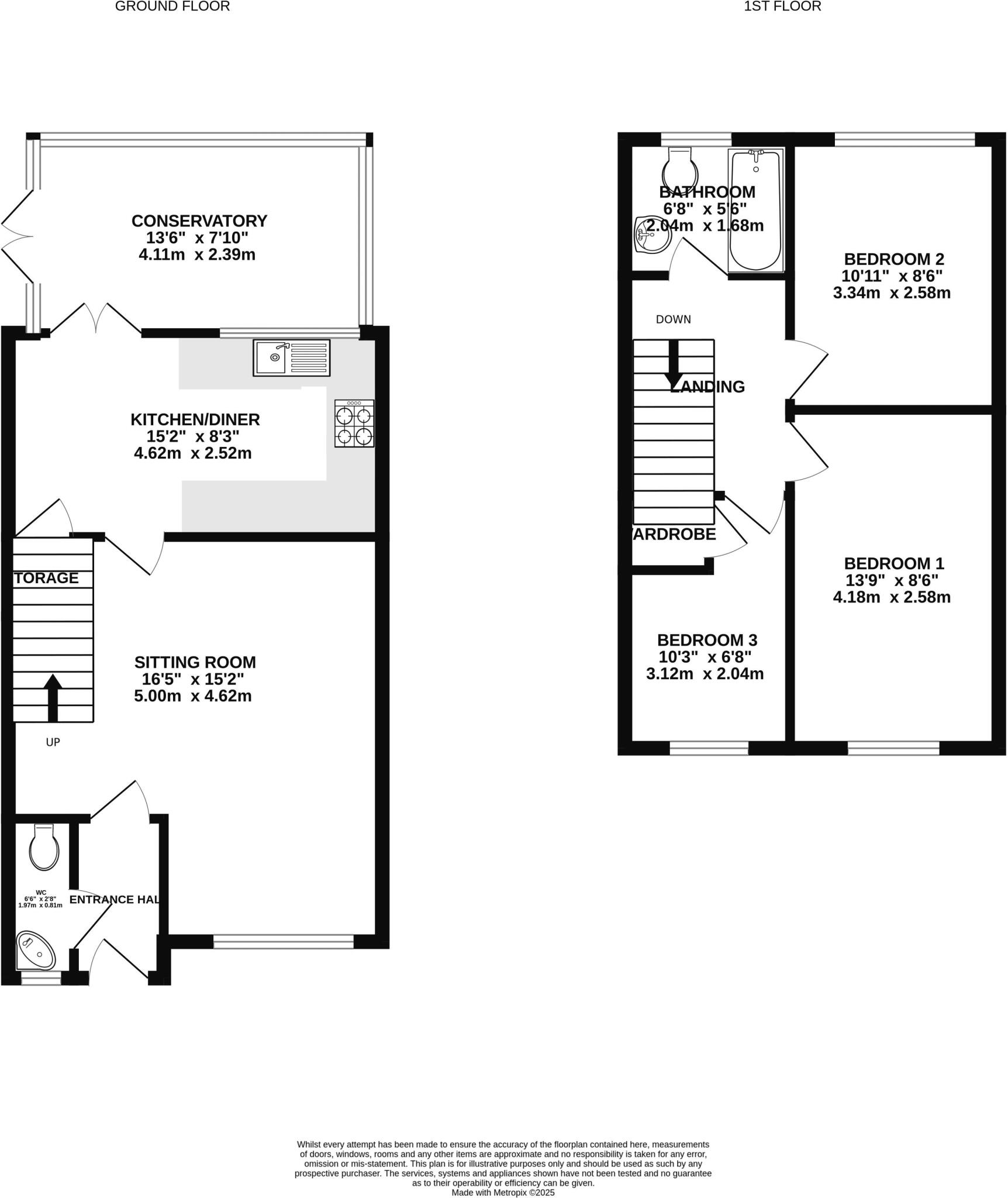
This attractive three-bedroom semi-detached home in Weston Village offers well-presented, move-in-ready accommodation for first-time buyers or small families. The property benefits from a bright sitting room, a kitchen/dining area with integrated appliances and a double‑glazed conservatory overlooking a private rear garden. Two double bedrooms plus a single bedroom upstairs suit flexible family or home‑office use.
Practical positives include gas central heating, UPVC double glazing, driveway and single garage with direct garden access, and freehold tenure. The rear garden is enclosed and not overlooked, giving a pleasant private outdoor space for children or entertaining. The location is convenient — close to local shops, train services, motorway links and several well-regarded primary and secondary schools.
Material considerations are straightforward: the house has a single bathroom and cloakroom only, and the plot is modest in size. Overall living area is average (around 819 sq ft), so buyers wanting larger rooms or extensive grounds should note those limits. Energy efficiency is C and council tax band is C.
For buyers seeking a low‑maintenance, well-located starter home with good transport links and a private garden, this property offers immediate comfort and scope to personalise over time.
3 bedroom semi-detached house for sale in The Wrangle, Weston-Super-Mare - THREE BED WITH GARAGE, BS24 — £239,950 • 3 bed • 2 bath • 800 ft²
3 bedroom semi-detached house for sale in Worle Moor Road, Weston Village - SUPERB SEMI , BS24 — £269,950 • 3 bed • 2 bath • 760 ft²
3 bedroom terraced house for sale in Hestercombe Close, Weston Village - 3 DOUBLE BEDROOMS, BS24 — £260,000 • 3 bed • 2 bath • 1075 ft²
3 bedroom semi-detached house for sale in Worle Moor Road, Weston-Super-Mare, BS24 — £260,000 • 3 bed • 1 bath
3 bedroom terraced house for sale in Vale Mill Way, Weston-Super-Mare - THREE DOUBLE BEDROOMS, BS24 — £270,000 • 3 bed • 2 bath • 989 ft²
3 bedroom semi-detached house for sale in Hidcote Mews, Weston Village, BS24 — £239,500 • 3 bed • 2 bath • 570 ft²










































































