**Key Features:**
- Charming detached bungalow with two bedrooms
- No onward chain—ready for your personal touch
- Spacious south-facing garden ideal for outdoor entertaining
- Private driveway with ample off-road parking
- Excellent location, just half a mile from the seafront
- In need of modernisation, ripe for renovation
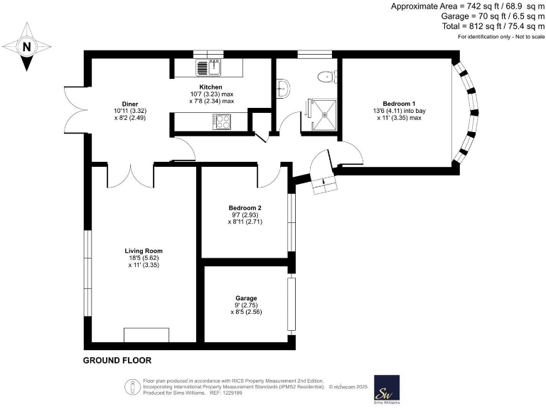
This two-bedroom detached bungalow located in the popular area of Pagham offers a fantastic opportunity for renovation enthusiasts or first-time buyers yearning for a project. Set on a decent plot with a south-facing garden, the property provides generous living space, including two reception rooms and a practical kitchen layout. The master bedroom boasts a large bay window that fills the room with natural light, while the second double bedroom is well proportioned for comfort.
With its end-of-chain status, you can move in quickly and start transforming this space to fit your vision. Although some updates are needed throughout, including modernizing the interiors, the layout is functional and the charm of the mid-century design shines through. Additionally, the convenient location offers easy access to local shops, public transport, and the stunning seafront, making it ideal for families, retirees, or anyone seeking a peaceful suburban ambiance.
Act quickly—properties like this, with both potential and desirable features, don’t stay on the market for long! Don’t miss your chance to create your dream home in this inviting and tranquil neighborhood.
2 bedroom detached bungalow for sale in Harbour View Road, Pagham, Bognor Regis, West Sussex, PO21 — £350,000 • 2 bed • 1 bath • 786 ft²
2 bedroom detached bungalow for sale in Abbottsbury, Pagham, PO21 — £360,000 • 2 bed • 1 bath • 1119 ft²
3 bedroom detached bungalow for sale in Queensmead, Pagham, Bognor Regis PO21 — £450,000 • 3 bed • 1 bath • 1340 ft²
2 bedroom bungalow for sale in Heron Mead, Bognor Regis, West Sussex, PO21 — £280,000 • 2 bed • 1 bath • 1149 ft²
2 bedroom detached bungalow for sale in Conway Drive, Pagham, Bognor Regis PO21 — £350,000 • 2 bed • 1 bath • 1038 ft²
3 bedroom detached bungalow for sale in Ellis Way, Pagham, Bognor Regis PO21 — £325,000 • 3 bed • 1 bath • 1132 ft²


















































































































