ME14 3EU - 4 bedroom detached house for sale in Harple Lane, Detling,…

View on Property Piper

4 bedroom detached house for sale in Harple Lane, Detling, ME14

Summary - SILVER CEDARS HARPLE LANE DETLING MAIDSTONE ME14 3EU

4 bed 3 bath Detached

**Standout Features:**
- Immaculate newly renovated detached home
- Four spacious bedrooms, including a master with en-suite
- Open-plan kitchen with island and utility room
- Indoor heated swimming pool and outdoor BBQ/bar area
- Cinema lounge room and three additional reception spaces
- Eco-friendly features: water harvesting and automatic windows
- Large garden perfect for children and pets
- Ample parking with garage and electric front bollards
- Chain free, offering a seamless purchasing experience

Nestled in the serene surroundings of Detling, this exceptional modern home blends luxury with practicality, making it an excellent option for families and those seeking a tranquil lifestyle. With four generously-sized bedrooms, including a master suite with en-suite facilities, comfort and convenience are prioritized. The standout open-plan kitchen is perfect for culinary enthusiasts, providing a light-filled space to entertain with family and friends. Unique amenities such as an indoor heated swimming pool and a comprehensive outdoor entertainment area featuring a BBQ and hot tub elevate the property, ensuring you can host memorable gatherings year-round.

The expansive garden offers ample recreational space with a children's play area, making it an ideal sanctuary for both kids and pets. Integrating modern technology for ease of living, including automatic windows and CCTV, this home balances innovation with comfort. While the property has many desirable features, it's worth noting the need for disclosure regarding spray insulation in the loft to potential lenders.

With its prime amenities, including excellent broadband speeds and proximity to reputable schools like Bearsted Primary Academy and Invicta Grammar School, this residence harmonizes comfort with utility. Chain-free, this gem won't last long—seize this rare opportunity to elevate your family's living experience in this peaceful and beautifully appointed home.

Property Details

Brochure Descriptions

Image Descriptions

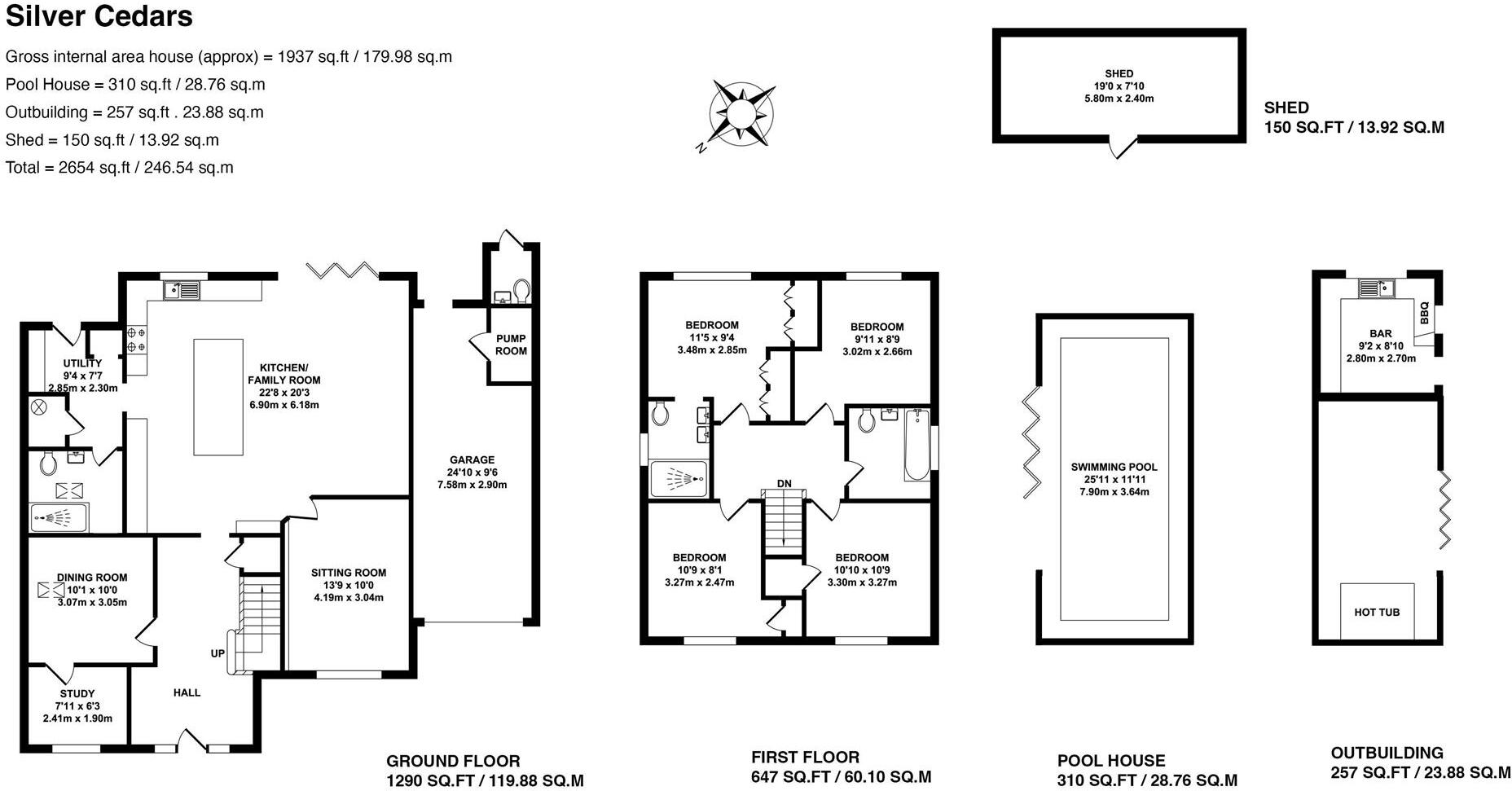
Floorplan Description

Rooms

Textual Property Features

Detected Visual Features

EPC Details

Nearby Schools

Nearest Bars And Restaurants

,,,,}

Nearest General Shops

,,}

Nearest Grocery shops

,,}

Nearest Supermarkets

,,}

Nearest Religious buildings

,,}

Nearest Medical buildings

,,,}

Nearest Leisure Facilities

,,,,}

Nearest Tourist attractions

,,}

Nearest Train stations

,,,,}

Nearest Bus stations and stops

,,,,}

Nearest Hotels

,,}

Tags

Local Market Stats

AirBnB Data

Similar Properties

Meta

High Res Images

Compatible Images

Low res Images

Thumbnails

Raw Images

High Res Floorplan Images

Compatible Floorplan Images

Low res Floorplan Images

FloorplanImages Thumbnail

Raw Floorplan Images