Loft conversion potential and garage near good schools, ready to renovate.
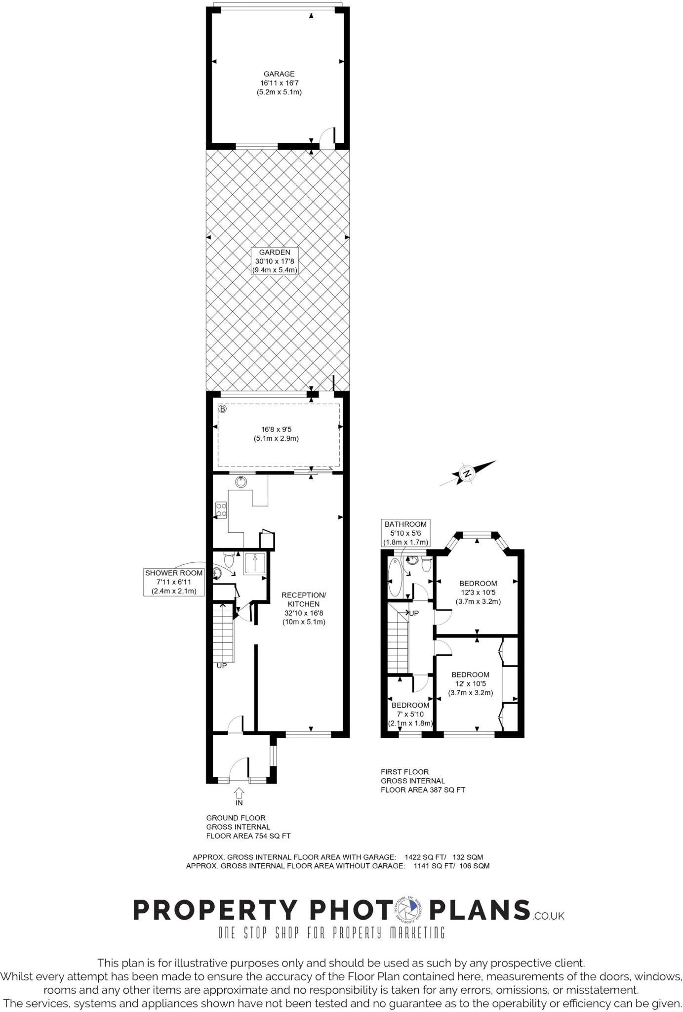
- Chain free three-bedroom mid-terrace with private rear garden
- Off-street driveway parking plus separate double garage at rear
- Loft conversion possible subject to planning permission (STPP)
- Close to several Good and Outstanding local schools
- Requires routine modernisation; interior and conservatory dated
- Garage/outbuilding appears weathered and likely needs repair
- Solid brick walls likely uninsulated — consider insulation costs
- Small plot size typical of urban terraced properties
This chain-free mid-terraced house on Allenby Road offers a practical family layout with genuine scope to add value. The ground floor includes a reception, dining room, fitted kitchen, conservatory and shower room with direct access to a private rear garden and a separate single double garage — useful for storage or conversion subject to consents.
Upstairs are three bedrooms and a family bathroom, with obvious loft-conversion potential (STPP) to create extra living space. Off-street driveway parking and proximity to several well-rated primary and secondary schools make the house attractive to families and buy-to-let investors seeking rental demand in UB1.
The property is solidly built and double glazed, but it requires routine modernisation throughout — internal finishes are dated and the outbuilding/garage will need redecoration or repair. Walls are likely uninsulated (as-built solid brick), so buyers should budget for thermal upgrades when planning works. Overall this is a practical, average-sized terraced home for those willing to invest time and money to modernise and increase value.
3 bedroom terraced house for sale in Allenby Road, Southall, UB1 — £565,000 • 3 bed • 2 bath • 915 ft²
3 bedroom terraced house for sale in Craven Avenue, Southall, UB1 — £550,000 • 3 bed • 1 bath • 1033 ft²
3 bedroom terraced house for sale in Allenby Road, Southall, UB1 — £550,000 • 3 bed • 1 bath
3 bedroom terraced house for sale in Allendale Avenue, Southall, UB1 — £535,000 • 3 bed • 2 bath • 749 ft²
3 bedroom house for sale in Allenby Road, Southall, UB1 2HW, UB1 — £579,950 • 3 bed • 2 bath • 1018 ft²
3 bedroom semi-detached bungalow for sale in Allenby Road, Southall, UB1 — £619,950 • 3 bed • 2 bath • 883 ft²














































