Spacious family home with modern efficiency and private garden.
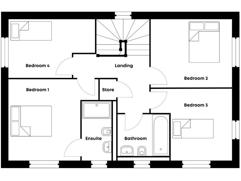
Four bedrooms including master with en-suite
Large integrated Howdens kitchen with Bosch appliances
French doors from dining area to decent private garden
Separate garage, driveway and EV charger included
Air source heat pump; all-electric heating and cooking
Approximately 1,213 sq ft on a decent plot; new build
Images illustrative — some finishes may differ from show home
No flood risk; very low local crime
This Skylark+ is a modern four-bedroom detached home arranged over two storeys, designed for family life. The ground floor offers a large integrated Howdens kitchen with Bosch appliances and a dining area with French doors leading to a decent private garden. A double-aspect living room, handy downstairs WC and separate garage with driveway and EV charger complete practical everyday living.
Upstairs provides four good-sized bedrooms, including a master with en-suite, plus a family bathroom fitted with white VitrA sanitaryware, Hansgrohe shower and Porcelanosa tiling. The home totals approximately 1,213 sq ft and sits on a decent plot within a bespoke development of 58 homes on the edge of Bolsover.
Built as an all‑electric new build, the house includes an air source heat pump and an electric vehicle charger as standard — strong energy-efficiency credentials but different running costs and heating behaviour compared with gas central heating. Images are illustrative and some finishes may vary from the show home.
Positioned close to Bolsover’s amenities — supermarkets, schools (Good-rated local primaries and secondary), GP and local cafés and pubs — this property suits families wanting suburban space with good local services and very low local crime. No flooding risk is recorded for the plot.
4 bedroom detached house for sale in Plot 40, Skylark, Welbeck Gardens, Bolsover, S44 — £330,000 • 4 bed • 2 bath • 1184 ft²
4 bedroom detached house for sale in Plot 44, Fieldfare, Welbeck Gardens, Bolsover, S44 — £332,500 • 4 bed • 2 bath • 1147 ft²
4 bedroom detached house for sale in Plot 3, Nightingale, Welbeck Gardens, Bolsover, S44 — £399,950 • 4 bed • 2 bath • 1505 ft²
4 bedroom detached house for sale in Plot 51 Woodlark, Welbeck Gardens, Bolsover, S44 — £380,000 • 4 bed • 2 bath • 1415 ft²
4 bedroom detached house for sale in Plot 2 Woodlark, Welbeck Gardens, Bolsover, S44 — £377,500 • 4 bed • 2 bath • 1415 ft²
3 bedroom detached house for sale in Plot 55, Nuthatch, Welbeck Gardens, Bolsover, S44 — £275,000 • 3 bed • 2 bath • 986 ft²






























