Spacious family residence with expansive gardens and countryside views.
Six double bedrooms, all with en‑suite bathrooms
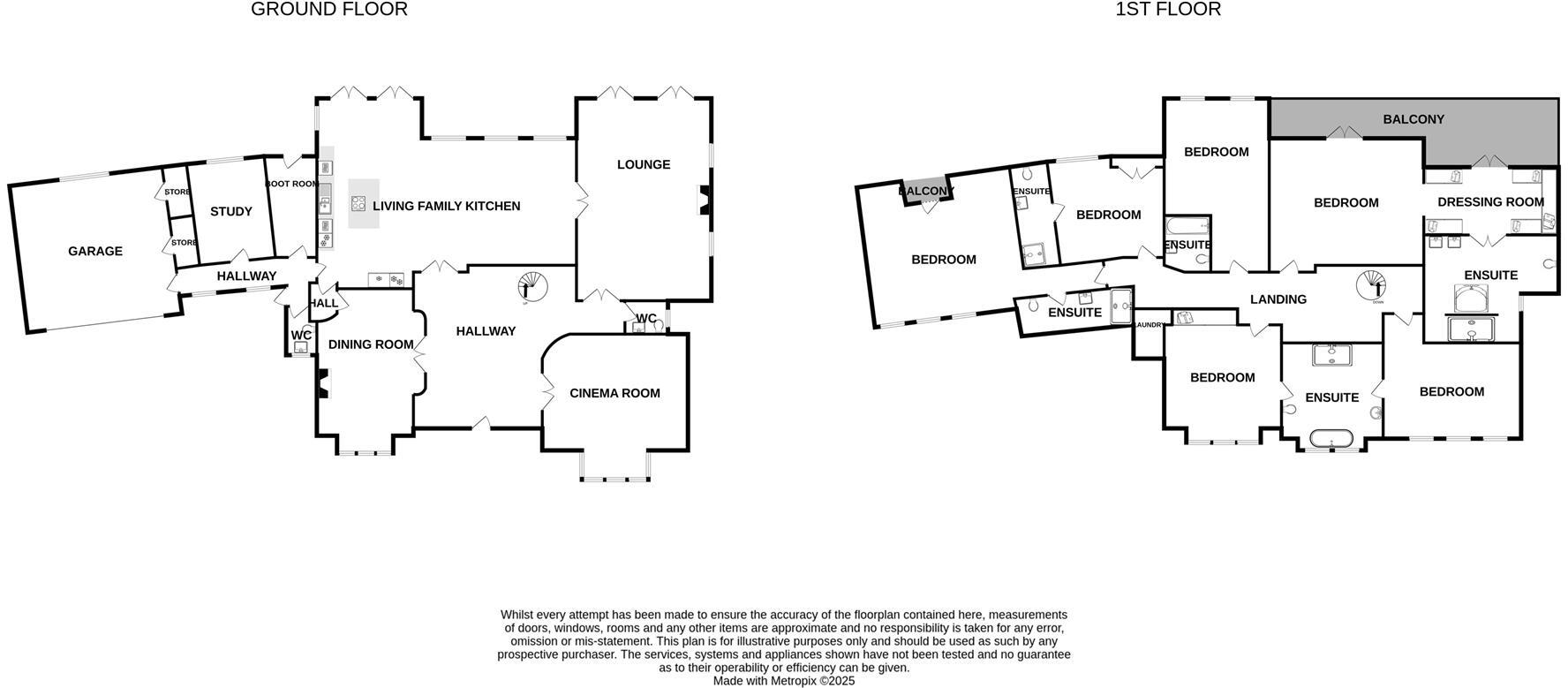
Set on one of Prestbury’s most prestigious roads, this substantial modern-Tudor family house offers almost 4,500 sqft of flexible living space on a very large, private plot. Principal features include a 24ft reception hall with curved staircase, a 35ft living family kitchen with butler’s pantry, a drawing room with French doors to the garden, cinema room, study and six double bedrooms all with en‑suite. The master suite benefits from a dressing room and balcony with views towards the Macclesfield hills.
Built between 2007–2011 and presented to a high standard, the house has gas-fired boiler heating with underfloor heating throughout, double garage with electric door, electric gated forecourt and extensive paved patios. Gardens run to three sides, are not overlooked and include mature specimen trees and artificial putting greens, creating a private and family-friendly outdoor space.
Practical points are straightforward: freehold tenure, very low local crime, fast broadband, average mobile signal and easy access to Prestbury village, schools and regional transport links. The property is large and luxurious but was constructed in 2007–2011 — it is not brand new — so buyers should allow for routine maintenance associated with a house of this scale.
An internal inspection is recommended to appreciate the generous room proportions, high ceilings and overall quality. The layout suits a household seeking formal and informal entertainment spaces alongside generous private accommodation and scenic views.
5 bedroom detached house for sale in Macclesfield Road, Prestbury, Macclesfield, SK10 — £2,795,000 • 5 bed • 6 bath • 4892 ft²
5 bedroom detached house for sale in Heybridge Lane, Prestbury, Macclesfield, Cheshire, SK10 — £1,250,000 • 5 bed • 4 bath • 3178 ft²
5 bedroom detached house for sale in Willowmead Drive, Prestbury, Macclesfield, Cheshire, SK10 — £1,500,000 • 5 bed • 4 bath • 5163 ft²
4 bedroom house for sale in Brocklehurst Drive, Prestbury, Macclesfield, SK10 — £1,295,000 • 4 bed • 2 bath • 646 ft²
4 bedroom detached house for sale in Holmlee Way, Prestbury, Macclesfield, SK10 — £1,250,000 • 4 bed • 3 bath • 2731 ft²
4 bedroom detached house for sale in Bollin Grove, Prestbury, MACCLESFIELD, SK10 — £1,150,000 • 4 bed • 3 bath • 2700 ft²










































































































































