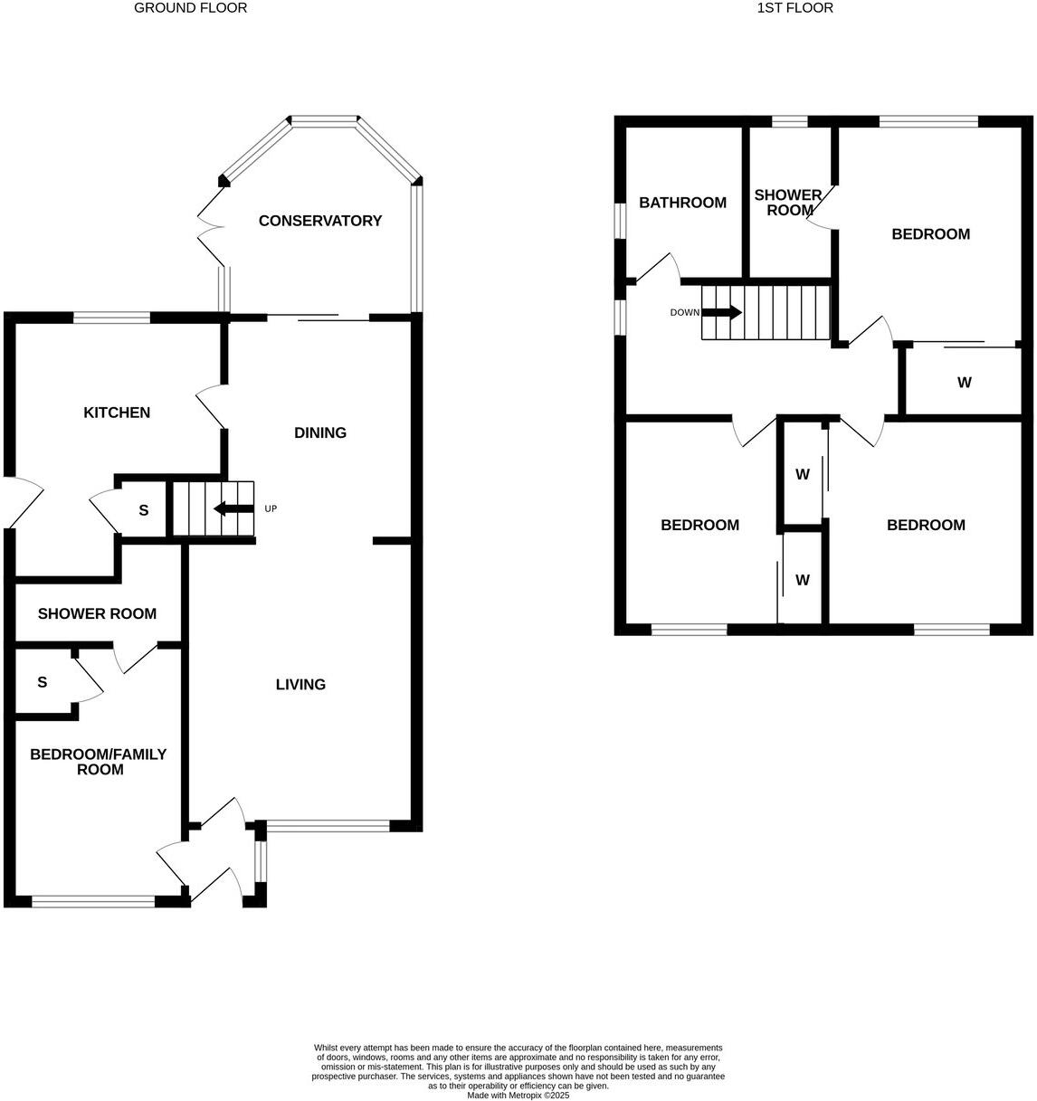
Four bedrooms including ground-floor bedroom with en-suite
This modern detached villa offers flexible family living across two floors, set on a good-sized suburban plot in North Larches. The ground floor includes a versatile bedroom with an en-suite — ideal for guests, multi-generational living or a home office — plus a bright lounge, dining room and conservatory that opens onto an enclosed rear garden. Upstairs provides a master with fitted wardrobes and en-suite, two further double bedrooms and a well-equipped family bathroom.
The home benefits from a fitted kitchen with integrated appliances, a monoblock driveway and private rear patio and lawn. Its location is commuter-friendly: Queen Margaret railway station, the hospital, schools and local shops are all within walking distance, and the M90 gives straightforward road links to Edinburgh and beyond.
Buyers should note a couple of practical considerations. Council tax is above average, and on-street and driveway parking space is limited to one to two cars. The wider area has been classified as very deprived in parts, which may affect local services and perceptions despite the immediate neighbourhood’s comfortable, affluent character.
Overall this is a well-proportioned family home with useful downstairs accommodation and good commuter access. It suits buyers looking for ready-to-live-in accommodation with scope for personal updating rather than extensive renovation.























































































































