Affordable starter home with garden and parking, ready for modernisation.
Chain-free freehold two-bedroom semi-detached house
Generous reception room plus rear conservatory for garden access
Private rear garden and off-street parking with vehicular driveway
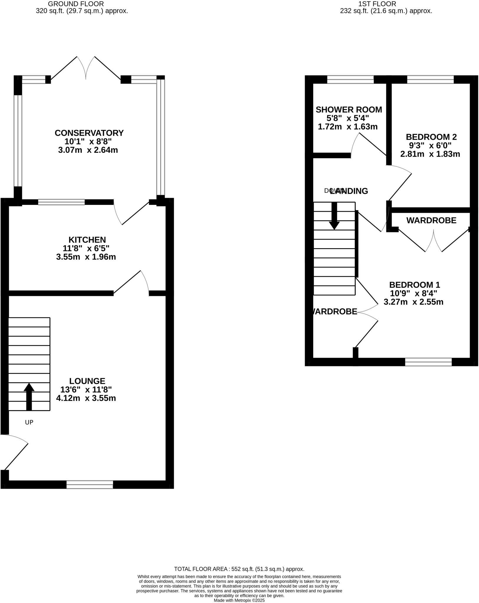
Compact total size ~552 sq ft; small overall plot
Dated interior and visible wear; requires renovation throughout
Single bathroom only; limited accommodation for larger families
Excellent transport links and several highly rated local schools
Affordable Council Tax Band A and low local crime
This two-bedroom semi-detached house in Littleton Close offers a practical starter home or buy-to-let in a popular Great Sankey cul-de-sac. The property is chain-free and freehold, with a generous reception room, conservatory, private rear garden and off-street parking — features that are rare at this price point.
The interior is compact but efficiently arranged: a medium-sized living room with a bay window and fireplace, kitchen with rear access, conservatory overlooking the garden, and two first-floor bedrooms served by a single bathroom. Local amenities, excellent transport links and several well-regarded primary and secondary schools are all within easy reach, making the location especially suitable for first-time buyers and small families.
There is clear scope to add value through modernization. The décor and fittings are dated in places, carpets show wear and the property needs renovation throughout; potential purchasers should budget for updating the kitchen, bathroom and cosmetic refurbishment. The overall footprint is small (approximately 552 sq ft) and the plot is modest, so extension potential will be limited and subject to approvals.
Practical positives include low crime, fast broadband and good mobile signal, plus affordable Council Tax Band A. Viewings are recommended for anyone seeking an affordable entry into the area who is prepared to carry out targeted improvements to unlock the property’s potential.
2 bedroom semi-detached house for sale in Mayfair Close, Great Sankey, Warrington, WA5 — £210,000 • 2 bed • 1 bath • 763 ft²
2 bedroom terraced house for sale in Matlock Close, Great Sankey, Warrington, Cheshire, WA5 — £210,000 • 2 bed • 1 bath • 604 ft²
3 bedroom semi-detached house for sale in Maliston Road, Great Sankey, Warrington, Cheshire, WA5 — £220,000 • 3 bed • 1 bath • 913 ft²
3 bedroom semi-detached house for sale in Swinfen Lake, Great Sankey, Warrington, WA5 — £300,000 • 3 bed • 2 bath • 768 ft²
2 bedroom terraced house for sale in Holbrook Close, Great Sankey, WA5 — £185,000 • 2 bed • 1 bath • 583 ft²
2 bedroom semi-detached bungalow for sale in Cronulla Drive, Great Sankey, Warrington, WA5 — £180,000 • 2 bed • 1 bath • 530 ft²






































