Large modern two-bedroom with secure parking and concierge, ideal for investors or professionals.
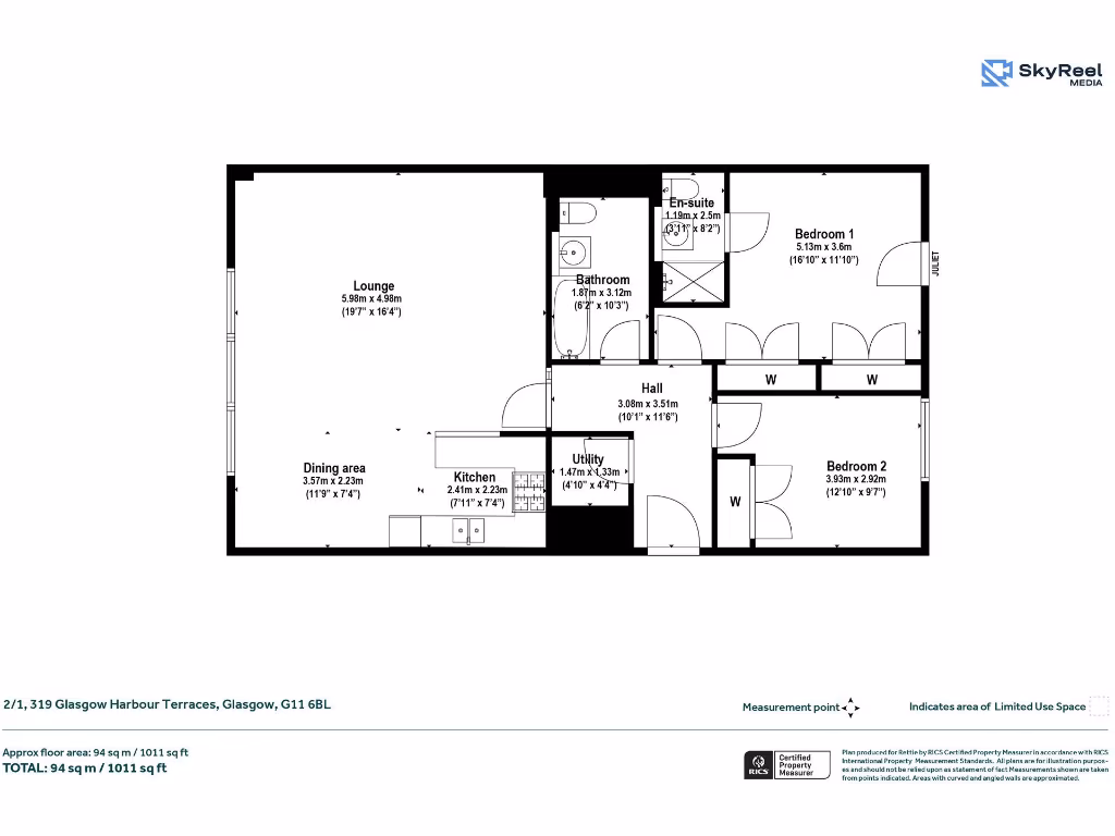
- Large 2-bedroom freehold apartment (c.1011 sq ft)
- Newly renovated and freshly painted throughout
- Full-width open-plan lounge, dining and kitchen
- Principal bedroom with en-suite and Parisienne balcony
- Private secure underground garage space included
- On-site concierge, lift access and maintained courtyard
- Council Tax Band F — relatively expensive running costs
- Wider area classified as deprived; local demographic mixed
Bright, roomy and newly renovated, this freehold two-bedroom apartment sits on the second floor of Glasgow Harbour Terraces, a modern riverside development beside the Clyde. The large open-plan living area and full-width windows let in abundant light, while a Parisienne balcony from the principal bedroom overlooks a peaceful communal courtyard. The apartment includes a private underground garage space, a separate utility room and built-in bedroom wardrobes for practical everyday living.
Residents benefit from on-site concierge services, lift access and a well-maintained courtyard managed by factors. The development’s West End-edge position places Byres Road, Glasgow University and Partick transport links within easy reach, and quick road connections to the Clyde Tunnel, Clydeside Expressway and motorways make commuting straightforward. The property’s size (c. 1,011 sq ft) and strong local rental demand also make it suitable for investors or professionals working nearby.
Honest drawbacks: the wider area is classified as deprived and council tax is high (Band F), which will affect running costs. The development is modern (built 2007) rather than period, and while recently redecorated throughout, buyers seeking a traditional property may prefer older stock. Overall, this apartment offers practical, spacious riverside living with secure parking and strong transport links, balanced against higher local council tax and the surrounding area profile.
2 bedroom flat for sale in Castlebank Drive, Glasgow, Glasgow City, G11 — £190,000 • 2 bed • 2 bath • 1076 ft²
2 bedroom apartment for sale in Glasgow Harbour Terraces, Flat 4/1, Glasgow Harbour, Glasgow, G11 6DJ, G11 — £169,000 • 2 bed • 2 bath • 657 ft²
2 bedroom apartment for sale in Glasgow harbour terraces, Glasgow, G11 6BL, G11 — £214,995 • 2 bed • 2 bath
2 bedroom apartment for sale in Castlebank Place, Flat 4/5, Glasgow Harbour, Glasgow, G11 6BX, G11 — £195,000 • 2 bed • 2 bath • 700 ft²
2 bedroom flat for sale in 4/3 337 Glasgow Harbour Terraces, Glasgow Harbour, G11 6BH, G11 — £199,000 • 2 bed • 2 bath • 1087 ft²
2 bedroom flat for sale in Glasgow Harbour Terraces, Glasgow Harbour, G11 — £250,000 • 2 bed • 2 bath • 1076 ft²














































































































