**Standout Features:**
- Share of Freehold with a 999-year term
- Two double bedrooms and a private balcony
- Garage for parking and intercom entry system
- Located in a vibrant, cosmopolitan student neighborhood
- Gas central heating and double glazing
- Excellent mobile signal and affordable council tax
**Potential Concerns:**
- High crime area
- Very slow broadband speeds in the vicinity
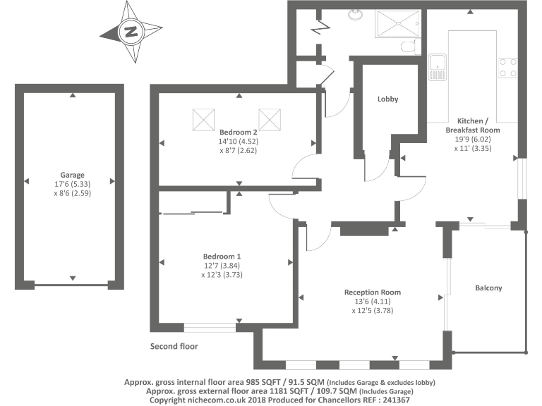
Experience urban living in this spacious second-floor flat, ideally situated just off the lively Cowley Road in Oxford. Boasting two large double bedrooms, this contemporary home features a bright kitchen/breakfast room and a comfortable living room, both granting access to a delightful private balcony. Enjoy the added convenience of a private garage, perfect for secure parking, along with an intercom entry system enhancing your home’s accessibility and safety.
This property is ideal for families, students, or first-time buyers, with renowned schools nearby and a plethora of amenities within reach, including restaurants, shops, and leisure facilities. While the area has a high crime rate and broadband options may be limited, the generous space and vibrant community make this flat a promising prospect. With affordability in mind and a share of freehold, seize this opportunity to invest in a home that balances comfort and future potential in a desirable location. Don’t miss your chance—properties like this are rare and won't be available for long!
2 bedroom apartment for sale in Rowland Hill Court, Central Oxford, OX1 — £495,000 • 2 bed • 2 bath • 804 ft²
2 bedroom apartment for sale in Chapel Street, East Oxford, OX4 — £320,000 • 2 bed • 1 bath • 640 ft²
2 bedroom flat for sale in East Oxford, Oxford, OX4 — £285,000 • 2 bed • 1 bath • 503 ft²
2 bedroom apartment for sale in Silkdale Close, Oxford, OX4 — £250,000 • 2 bed • 1 bath • 395 ft²
2 bedroom apartment for sale in Marston Street, East Oxford, OX4 — £400,000 • 2 bed • 1 bath • 543 ft²
2 bedroom apartment for sale in Tennyson Lodge, Paradise Square, Oxford, OX1 — £400,000 • 2 bed • 1 bath • 644 ft²










































