Spacious character home with expansive gardens and conversion potential.
Large Georgian family house across four levels
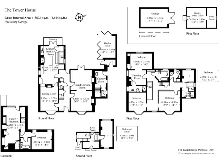
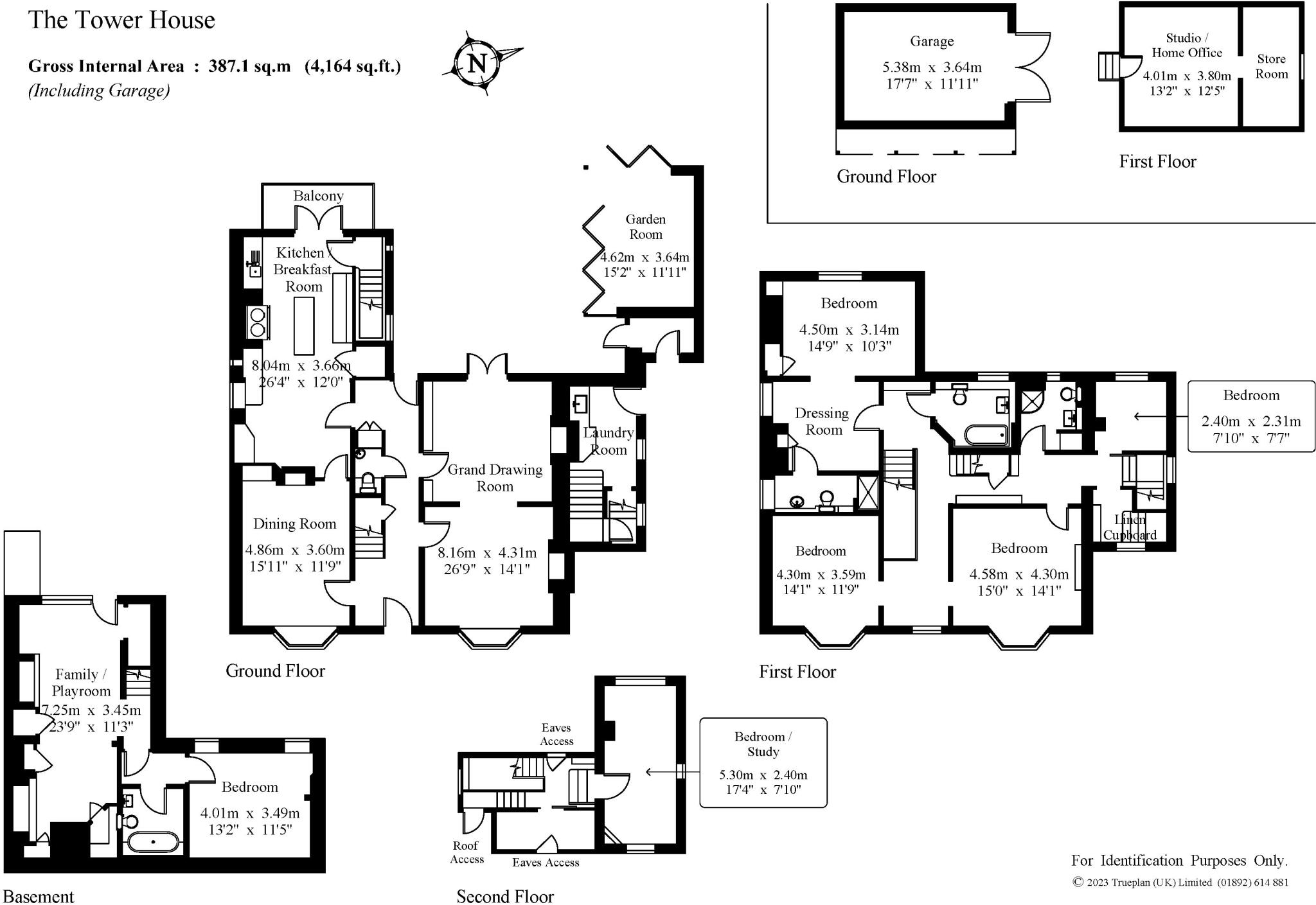
The Tower House is a substantial Georgian family home arranged across four levels, offering generous living space and classic period detail. High ceilings, sash and bay windows, picture rails and working fireplaces create authentic character throughout. The castellated tower (added 1904) provides elevated views across Kent and a unique focal point for the home.
Accommodation suits family life and entertaining: a dual-aspect drawing room, formal dining room, a kitchen/breakfast room with Aga, and a garden room with bi-fold doors opening to a terrace and mature gardens. The basement provides flexible space — currently a cosy family room and guest suite — while the first and second floors deliver five principal bedrooms, dressing room and multiple bathrooms.
Outside, the large, expertly planted gardens are an unexpected private oasis in a central town location, with a walled vegetable plot, greenhouse, gazebo and specimen trees. A substantial outbuilding with integrated garage, log store and rooms above offers conversion potential subject to consents. Driveway parking for three accessed through electric gates adds practical convenience.
Practical considerations: the house is an historic property and will require ongoing maintenance typical of its age; some rooms and services may benefit from updating. Council Tax is in a high band (G). For families wanting a character home close to schools, shops and good commuter links, this property combines space, charm and scope for further improvement.
5 bedroom detached house for sale in Tenterden, TN30 — £1,250,000 • 5 bed • 3 bath • 3792 ft²
4 bedroom town house for sale in West Cross, Tenterden, Kent TN30 6JL, TN30 — £550,000 • 4 bed • 2 bath • 1359 ft²
4 bedroom detached house for sale in Eastgate Road, Tenterden, TN30 — £750,000 • 4 bed • 2 bath • 1723 ft²
4 bedroom detached house for sale in High Street, Hadlow, Tonbridge, Kent, TN11 — £2,780,000 • 4 bed • 4 bath • 2698 ft²
6 bedroom detached house for sale in 9 West Cross, Tenterden, TN30 — £1,450,000 • 6 bed • 4 bath • 3994 ft²
3 bedroom end of terrace house for sale in Ashford Road, Tenterden, TN30 — £550,000 • 3 bed • 2 bath • 1800 ft²


































































