Bright open-plan living with private outdoor space and quick central connections.
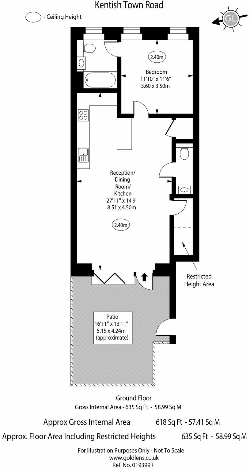
- Recently refurbished one-bedroom apartment with ensuite and guest cloakroom
- Large open-plan kitchen/reception with tri-fold doors onto private patio
- Chain free and move-in ready
- 618 sq ft total, generous storage and built-in wardrobes
- Electric room heaters; buyers should note running cost implications
- Service charge ~£1,000 (listed as unknown) and ground rent £250
- Tenure not specified — legal verification recommended
- Local crime rate above average; central location with excellent transport
This recently refurbished one-bedroom apartment occupies 618 sq ft of bright, open-plan living with a particularly large kitchen/reception and a private patio. Tri-fold doors flood the main space with light and extend living outdoors, while built-in wardrobes and generous storage keep the layout neat and usable. The property is offered chain free and presents as a low-effort home to move into.
Practical details to note: heating is by electric room heaters and the property was constructed post-2012. Service charge is approximately £1,000 (amount listed as unknown) with a small ground rent of £250; tenure information is not provided and should be confirmed. The local area is lively with excellent transport links (Northern Line, Thameslink, Overground) and a wide range of shops, cafes and amenities within walking distance.
This apartment will suit a first-time buyer seeking a contemporary, well-located home or an investor looking for a turnkey asset in a highly connected London neighbourhood. Its modern finish and open-plan living make it easy to let or live in immediately. Buyers should factor in above-average local crime statistics and the ongoing costs and implications of electric heating when assessing running costs.
1 bedroom apartment for sale in Kentish Town Road, Kentish Town, NW1 — £550,000 • 1 bed • 1 bath • 653 ft²
2 bedroom flat for sale in Kentish Town Road,
Camden, NW1 — £725,000 • 2 bed • 2 bath • 894 ft²
1 bedroom flat for sale in Kentish Town Road, Kentish Town, NW1 — £550,000 • 1 bed • 1 bath • 635 ft²
1 bedroom apartment for sale in Burghley Road, London, NW5 — £400,000 • 1 bed • 1 bath • 456 ft²
2 bedroom flat for sale in Northpoint Square,
Tufnell Park, NW1 — £700,000 • 2 bed • 2 bath • 893 ft²
1 bedroom flat for sale in Leighton Road, Kentish Town, London, NW5 — £395,000 • 1 bed • 1 bath • 432 ft²


































































