Walking distance to town centre and nearby countryside walks.
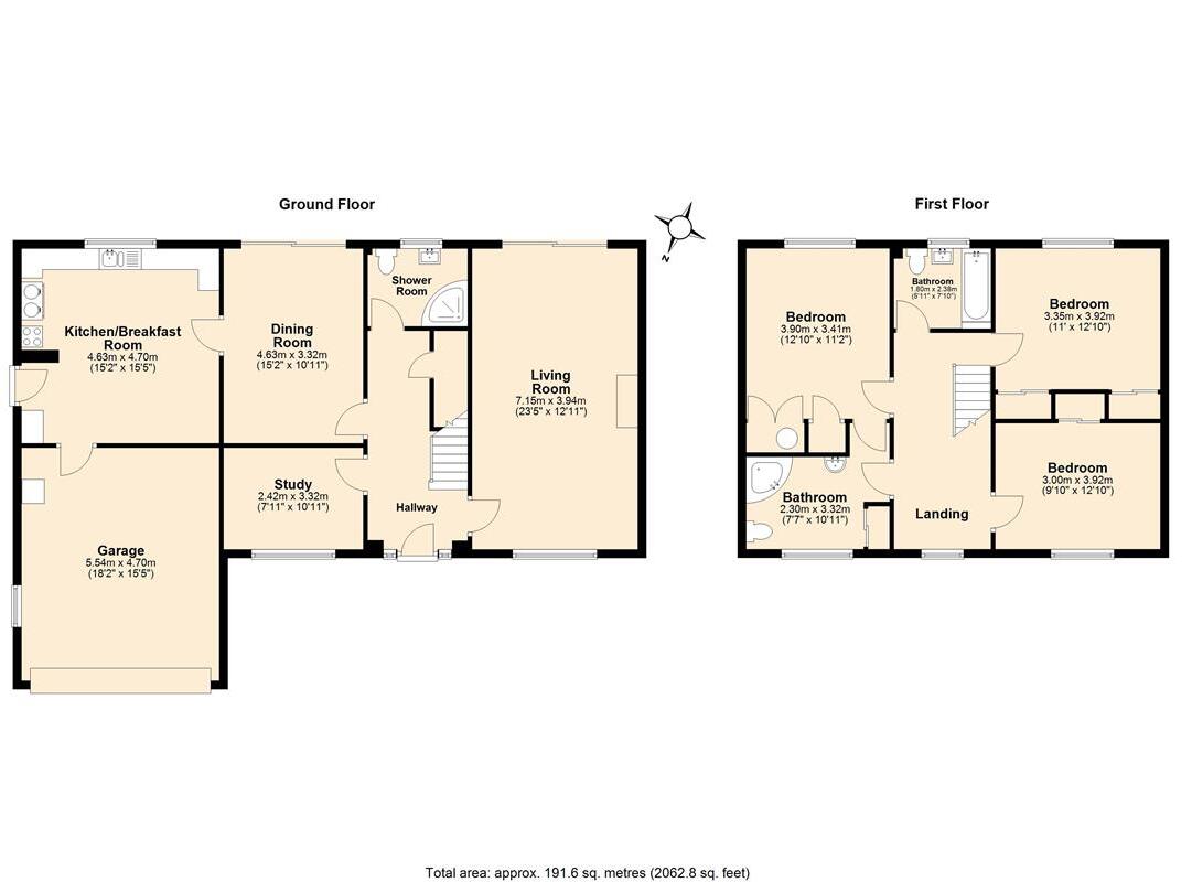
Four bedrooms arranged as flexible 3/4-bedroom family layout
A substantial four-bedroom detached house set mid-way along the tree-lined Avenue, a short walk from Ross-on-Wye town centre and local countryside walks. The house offers flexible 3/4-bedroom family living with three reception rooms, a long double-aspect sitting room with stone fireplace and French doors to a sun terrace, plus a well-equipped kitchen with direct access to the double garage.
Recent updates include newly laid carpets and laminate flooring, giving the interior a fresh, neutral feel while retaining character features such as the inset stove. The generous tarmac driveway and double garage provide abundant parking and practical storage; the rear garden is largely lawned with a Wisteria-clad pergola creating a sheltered outdoor dining area.
Practical points to note: the property is freehold, rated EPC C and sits in Council Tax Band G (relatively expensive). Services are stated as connected but have not been independently verified, so buyers should confirm utilities and appliance condition. Flood risk is recorded as none and the area has low crime levels, excellent mobile signal and fast broadband — useful for families working or studying from home.
Overall this home will suit families seeking roomy, well‑proportioned accommodation close to town amenities and countryside access. The layout gives scope for a ground-floor bedroom or study if required; purchasers should budget for standard ongoing maintenance and verify service details prior to exchange.
4 bedroom detached house for sale in Silver Birches, Ross-On-Wye, HR9 — £485,000 • 4 bed • 1 bath • 1151 ft²
4 bedroom detached house for sale in Court Road, Ross-on-Wye, HR9 — £425,000 • 4 bed • 1 bath • 1245 ft²
4 bedroom detached house for sale in Gloucester Road, Ross-on-Wye, Herefordshire, HR9 — £470,000 • 4 bed • 2 bath • 1561 ft²
3 bedroom semi-detached house for sale in Beech Close, Ross-On-Wye, HR9 — £270,000 • 3 bed • 1 bath • 875 ft²
4 bedroom detached house for sale in Abbotts Close, Greytree, Ross-on-Wye, Herefordshire, HR9 — £450,000 • 4 bed • 1 bath • 1410 ft²
3 bedroom detached house for sale in Sugarloaf Crescent, Ross-on-Wye, HR9 — £400,000 • 3 bed • 2 bath • 1163 ft²


































































