Single-level turn-key home with generous garden and multi-car parking.
Freshly refurbished interior with stylish fitted kitchen
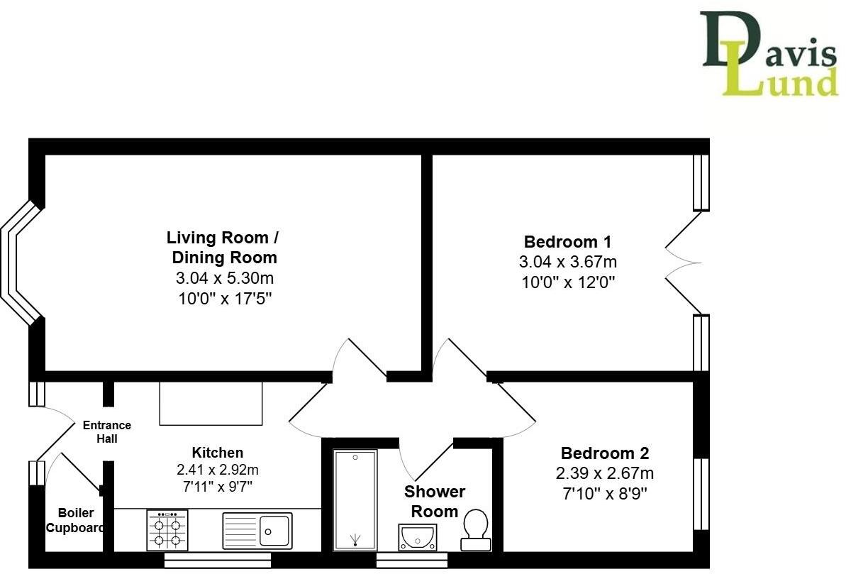
This tidy two-bedroom semi-detached bungalow offers single-level, low-maintenance living in a quiet cul-de-sac just a short distance from Thirsk town centre. Recently refreshed throughout, it features a stylish fitted kitchen, a bright lounge/diner and a well-proportioned main bedroom with doors onto the rear garden.
Practical daily living is supported by off-street parking for multiple cars, a gravelled front area and gated side access leading to a decent-sized rear garden with lawn, patio and a timber shed. The property is freehold, has mains gas heating with a boiler and radiators, and double glazing in place.
The bungalow is compact at around 438 sq ft, so it will suit buyers seeking manageable accommodation rather than large family space. The build dates to the late 1960s/early 1970s, and while interior finishes are refreshed, the exterior and some fittings reflect the era. Energy efficiency currently sits at a solid C with scope to improve.
This home will appeal most to downsizers or buyers prioritising single-storey convenience, practical running costs and easy access to local amenities and transport links. Be aware of the limited internal floor area and the wider area's socio-economic indicators when comparing similar properties.
2 bedroom detached bungalow for sale in Dowber Way, Thirsk, YO7 — £299,950 • 2 bed • 1 bath • 728 ft²
2 bedroom bungalow for sale in St Giles Close, Thirsk, North Yorkshire, YO7 — £240,000 • 2 bed • 1 bath • 614 ft²
2 bedroom bungalow for sale in Dowber Way, Thirsk, YO7 — £299,995 • 2 bed • 1 bath • 596 ft²
2 bedroom semi-detached bungalow for sale in Fairfield, Thirsk, YO7 — £235,000 • 2 bed • 1 bath • 751 ft²
3 bedroom semi-detached bungalow for sale in Dowber Way, Thirsk, YO7 — £237,500 • 3 bed • 2 bath • 604 ft²
2 bedroom bungalow for sale in Front Street, Sowerby, Thirsk, YO7 — £349,995 • 2 bed • 1 bath










































































































