Handy Newington Green location ideal for first-time buyers and commuters.
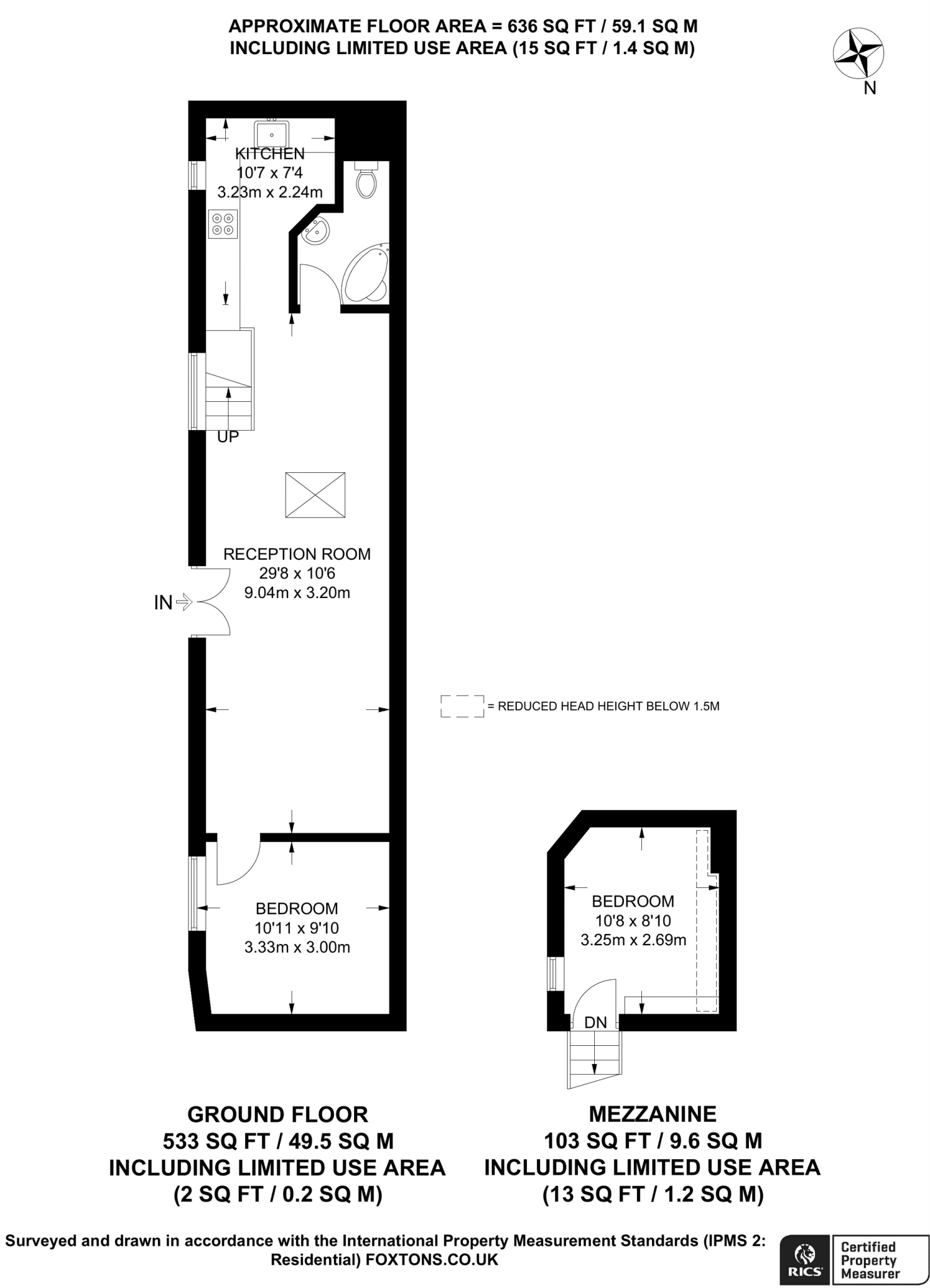
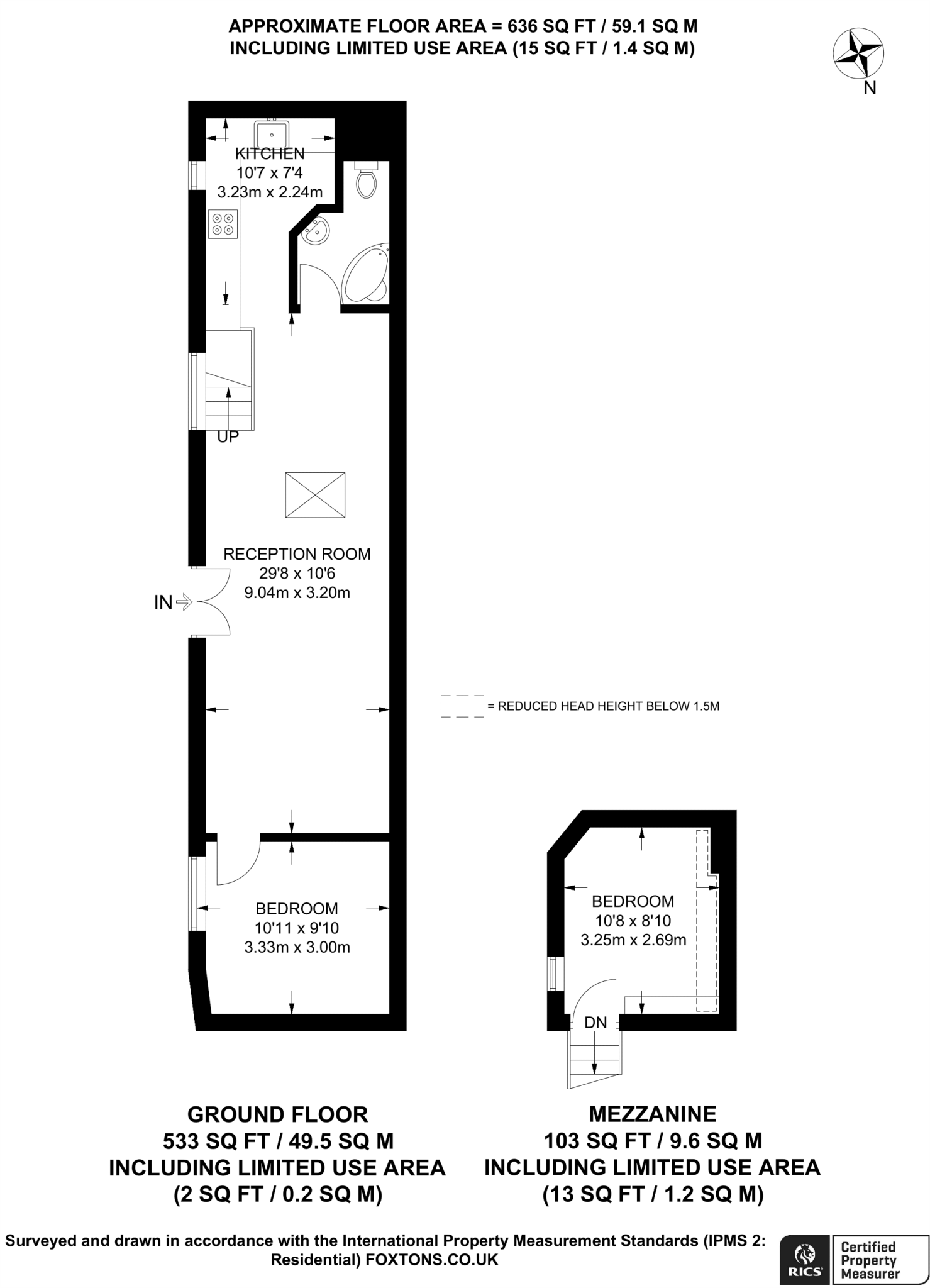
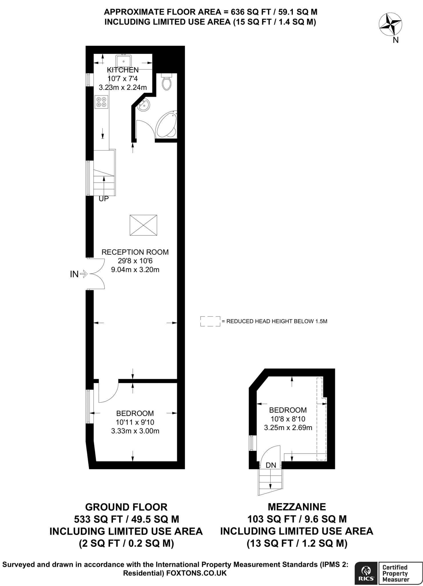
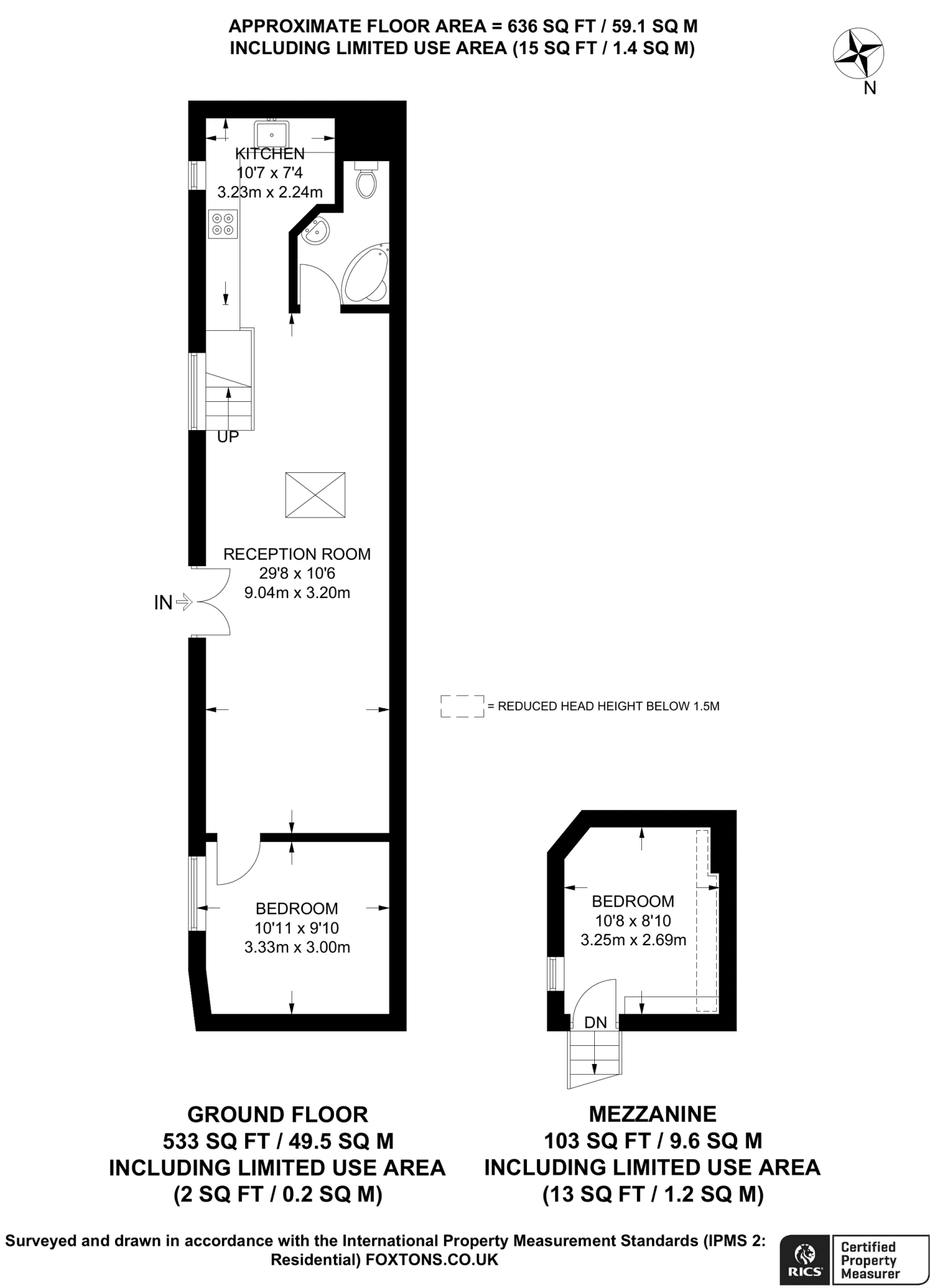
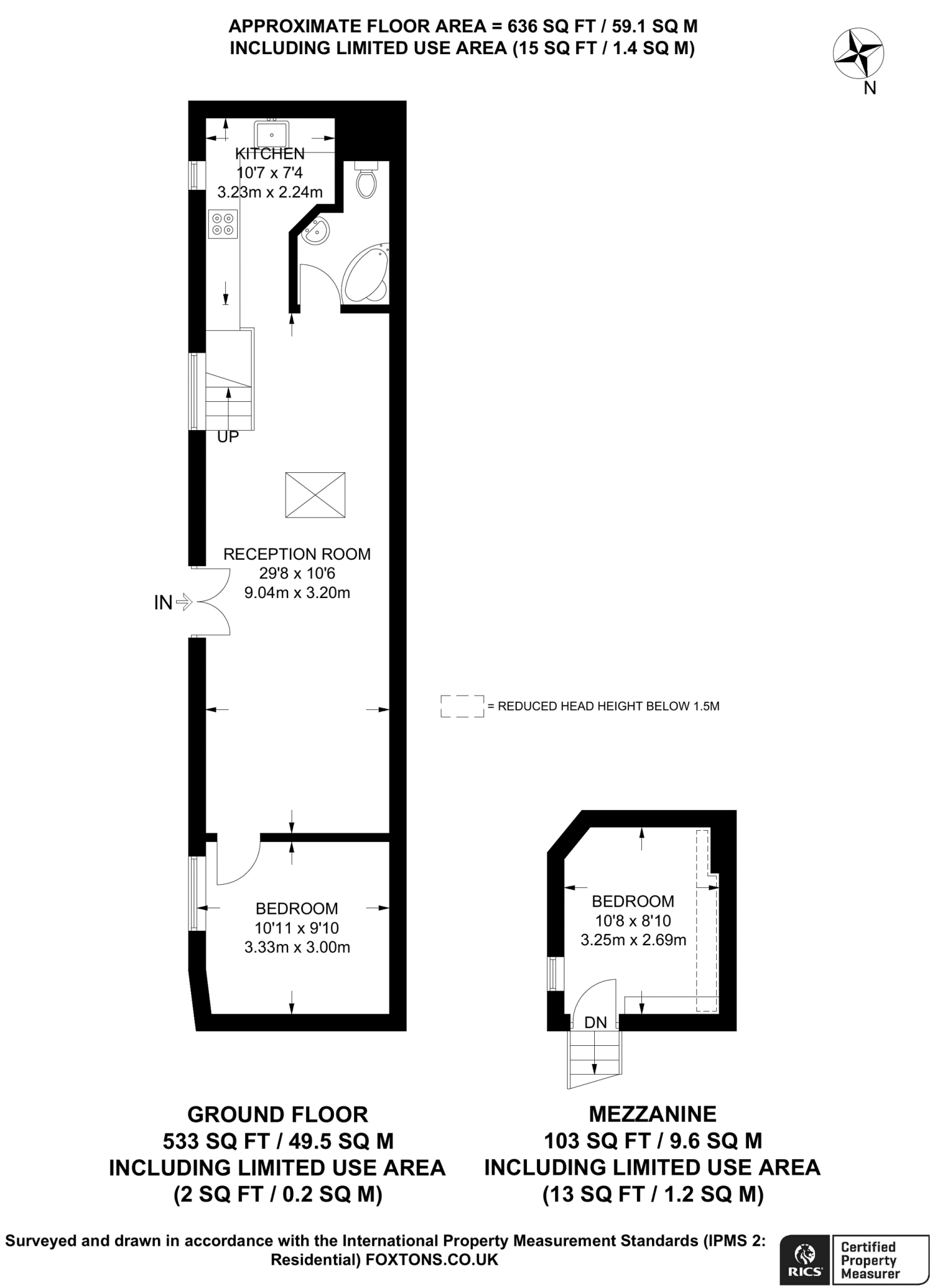
- Freehold 2-bedroom mid-terrace, 636 sq ft
- Bright reception with open-plan kitchen layout
- Private entrance and contemporary interior finish
- Built 1900–1929; solid brick construction (assumed no wall insulation)
- Double glazing present; installation date unknown
- Small plot with limited external space
- Above-average local crime and area deprivation
- Excellent mobile signal and fast broadband speeds
A compact two-bedroom mid-terrace offering bright, well-proportioned rooms across 636 sq ft. The reception opens into an open-plan kitchen area and benefits from natural light and contemporary finishes, making it easy to move straight in. A private entrance adds a sense of independence rare for this size.
Located moments from Newington Green and local shops, this freehold house is well placed for everyday amenities, cafés and transport links. Broadband and mobile signals are excellent, which suits remote working or staying connected. Local primary and secondary schools include several highly rated options within walking distance.
Practical considerations are straightforward: the property dates from 1900–1929 and is of solid brick construction with no known wall insulation (assumed). The glazing is double but the installation date is unknown. The small plot and limited external space suit buyers who prioritise location over garden size. The wider neighbourhood shows higher-than-average crime and some area deprivation, so buyers should weigh local safety and community factors when viewing.
This home will suit first-time buyers or professionals seeking an affordable, characterful foothold in Stoke Newington with scope for modest energy upgrades and personalisation. It presents a tidy, liveable base with potential to enhance thermal performance and add value over time.
2 bedroom end of terrace house for sale in Lidfield Road, London, N16 — £600,000 • 2 bed • 1 bath • 485 ft²
2 bedroom flat for sale in Green Lanes, Newington Green, London, N16 — £550,000 • 2 bed • 1 bath • 481 ft²
2 bedroom flat for sale in Green Lanes, Newington Green, London, N16 — £600,000 • 2 bed • 1 bath • 648 ft²
2 bedroom flat for sale in Green Lanes, Newington Green, London, N16 — £500,000 • 2 bed • 1 bath • 493 ft²
3 bedroom terraced house for sale in St. Jude Street, London, N16 — £925,000 • 3 bed • 1 bath • 900 ft²
1 bedroom apartment for sale in Albion Road, Stoke Newington, N16 — £450,000 • 1 bed • 1 bath • 462 ft²






















































































































































