Refitted bathrooms, south-facing garden and parking for two to three cars.
Four bedrooms including large second-floor master suite
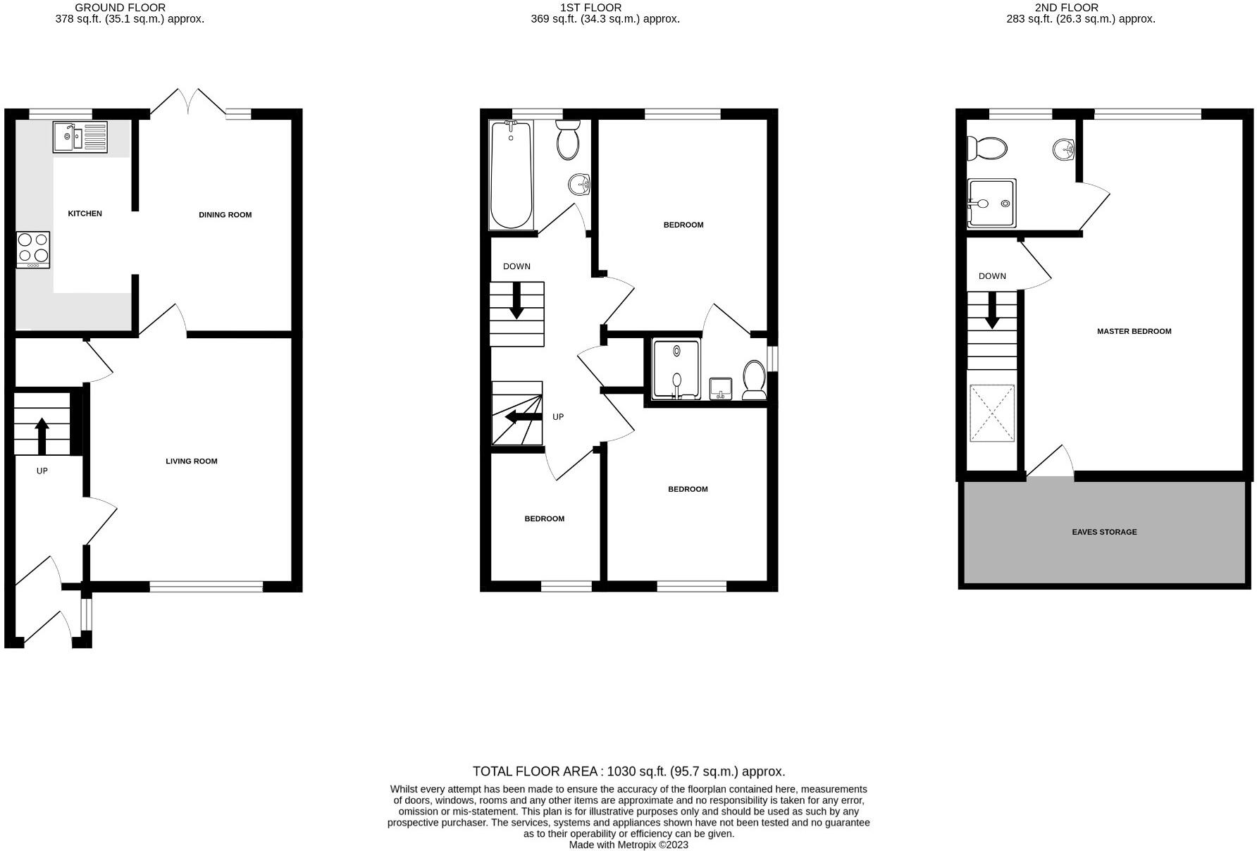
This four-bedroom semi-detached home on a cul-de-sac offers practical family living with useful updates and off-street parking. The house benefits from a refitted kitchen, three refitted bathrooms (including two en suites) and a generous master bedroom on the second floor, giving flexible sleeping arrangements and privacy.
The layout includes a living room, separate dining room opening to a south-facing rear garden, and a driveway for two to three cars. The plot is notably large for the development, with a paved patio, shingle beds and a timber shed providing low-maintenance outdoor space for children or pets.
Practical considerations are straightforward: the property is freehold and offered chain free, double glazed throughout, and constructed in the 1980s. Heating is by electric storage heaters and the EPC is rated D; incoming buyers should accept ongoing running costs associated with electric heating and the current energy rating.
Notable negatives are factual and important: storage heaters rather than gas central heating, an EPC rating of D, and a local crime level described as above average. The house is in a family-oriented terrace area near schools and local amenities, making it suited to families wanting move-in-ready bathrooms and kitchen with scope to modernise heating and energy performance over time.
3 bedroom terraced house for sale in Woodside Park, Bordon, Hampshire, GU35 — £315,000 • 3 bed • 1 bath • 936 ft²
4 bedroom detached house for sale in Forester Walk, Bordon, Hampshire, GU35 — £525,000 • 4 bed • 2 bath • 1329 ft²
3 bedroom detached house for sale in Royal Drive, Bordon, GU35 — £350,000 • 3 bed • 2 bath • 641 ft²
4 bedroom semi-detached house for sale in Church Fields, Headley, Hampshire, GU35 — £485,000 • 4 bed • 2 bath • 1233 ft²
3 bedroom semi-detached house for sale in Greenacres, Bordon, Hampshire, GU35 — £385,000 • 3 bed • 1 bath • 1140 ft²
4 bedroom semi-detached house for sale in 4 bedroom Semi-Detached House in Hindhead, GU26 — £547,300 • 4 bed • 2 bath • 871 ft²


































































































